Добавить в корзинуПозвонить
Найти в Дзене

ПЛЁС 110 м2 - проект классического особнячка на 3 спальни

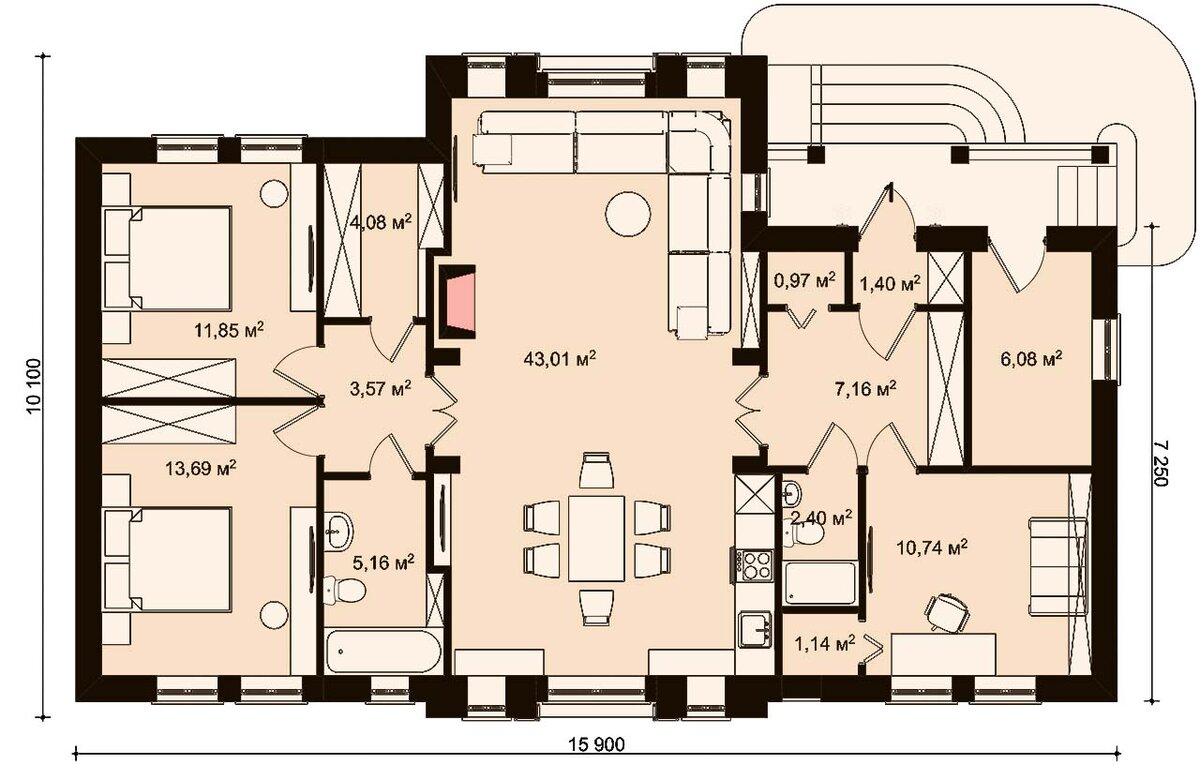
Проект красивого одноэтажного дома для создания усадьбы в русском стиле. Есть отдельная комната -кабинет при входе - удобно, если у кого-то из жильцов частный бизнес. Общая площадь дома 110 м2, жилая - 70 м2 Планировка Композиция плана - трёхчастная. Центральная высокая часть - совмещенное помещение кухни-столовой и гостиной. Левое крыло - жилое, 2 спальни, ванная и гардеробная. Правое крыло - входная и хозяйственная группа - крыльцо, холл, котельная с отдельной дверью с улицы, гостевая спальня или кабинет, небольшой санузел. Планировка позволяет удобно устроить в доме частную практику - кабинет рядом со входной дверью, и там можно принимать посетителей, не беспокоя остальных жильцов. В композиции плана, несмотря на скромные размеры дома, также соблюдены принципы классической архитектуры. Двери гостиной, ведущие в спальни и в прихожую, расположены друг напротив друга, и делают возможным создание имитации анфилады - цепочки последовательно расположенных друг за другом комнат. Такой при
Оглавление

Проект красивого одноэтажного дома для создания усадьбы в русском стиле. Есть отдельная комната -кабинет при входе - удобно, если у кого-то из жильцов частный бизнес.

Общая площадь дома 110 м2, жилая - 70 м2

Планировка

Композиция плана - трёхчастная. Центральная высокая часть - совмещенное помещение кухни-столовой и гостиной. Левое крыло - жилое, 2 спальни, ванная и гардеробная. Правое крыло - входная и хозяйственная группа - крыльцо, холл, котельная с отдельной дверью с улицы, гостевая спальня или кабинет, небольшой санузел.

-2

Планировка позволяет удобно устроить в доме частную практику - кабинет рядом со входной дверью, и там можно принимать посетителей, не беспокоя остальных жильцов.

В композиции плана, несмотря на скромные размеры дома, также соблюдены принципы классической архитектуры. Двери гостиной, ведущие в спальни и в прихожую, расположены друг напротив друга, и делают возможным создание имитации анфилады - цепочки последовательно расположенных друг за другом комнат.

Анфилада - классический планировочный приём.
Анфилада - классический планировочный приём.

Такой приём характерен для классической (особенно - дворцовой) архитектуры. Если в остеклении дверей использовать зеркальное стекло, либо устроить зеркала напротив дверей в гостиную, можно при помощи «зеркальной» перспективы создать видимость анфилады комнат, и этим визуально расширить пространство дома почти до бесконечности.

Архитектурный стиль

Дом выполнен в стилистике классических старо-московских особнячков. Композиция дома симметричная, с выступающей вперед более высокой центральной частью и двумя одинаковыми крыльями. Центральная часть украшена легкими пилястрами и арочным окном чердака. Боковые части декорированы скромнее. Колористическое решение также классическое - светлые стены с белыми деталями, тёмный цоколь, серая кровля.

Декор запроектирован так, чтобы его подбор не создал проблемы будущим жильцам - все детали простые и могут быть заменены аналогами из имеющихся в наличии у выбранного производителя.

Детали фасада несложные, могут использоваться типовые элементы фирм - изготовителей.
Детали фасада несложные, могут использоваться типовые элементы фирм - изготовителей.

Подобрать дополняющие постройки, посмотреть другие варианты классических домов, и почитать о принципах грамотного устройства классической усадьбы можно на странице сайта ИНВАПОЛИС конструктор усадеб

Конструктивные особенности

Фундаменты выбираются исходя из гидрогеологических условий на участке строительства.

Перекрытия - сборные из пустотных плит.

Наружные стены из поротерма-termo толщиной 380 мм, несущие колонны кирпичные.

Наружная отделка - штукатурка и фасадные детали из пенополиуретана. Часть декора (руст стен, тело пилястр, пояски) может быть выполнено из штукатурки. Балясины - пенополиуретан либо цементные.

Состав проекта

  • Проект дома полностью подготовлен к строительству и проведению необходимых согласований, разработан в двух разделах:
    - архитектурный АР (паспорт проекта дома)
    - строительно-конструктивный (СКР)
    - конструктивный (КЖ)
    Заказать документацию можно на страничке проекта дома на сайте бюро ИНВАПОЛИС.
  • Другие проекты одноэтажных домов ИНВАПОЛИС здесь
  • Если Вам интересны наши проекты, подписывайтесь на канал ИНВАПОЛИС-ДЗЕН , смотрите обзоры и подборки домов, задавайте вопросы авторам в комментариях.