Добавить в корзинуПозвонить
Найти в Дзене
Мечтаево

Каркасный замок для семьи: проект Гефестион

Если от дома вы ждете не только абсолютный комфорт, но и представительский внешний вид, то советуем вам обратить внимание на проект Гефестион. Этот дом можно построить что по каркасной, что по каменной технологии; неизменным останется только одно - его брутальный экстерьер. Внешний вид: Какой материал больше всего ассоциируется с брутальностью? Конечно, камень или кирпич. Так как дом строится по каркасной технологии, применить этот материал при возведении мы не могли, зато использовали в наружной отделке его имитацию - фиброцементную плитку Технониколь Хауберк в расцветке "Готический кирпич". Теперь обратите внимание на стропильную систему: здесь сложная вальмовая крыша с минимальными скатами. Это визуально делает ее более плоской, что является архитектурным трендом в современных загородных домах. Ну и куда же без контрастных элементов! Их в проекте целых три - это белоснежная водосточная система, пластиковые окна и окантовка фасада по цоколю и под крышей. Планировка. Параметры пр
Оглавление
Если от дома вы ждете не только абсолютный комфорт, но и представительский внешний вид, то советуем вам обратить внимание на проект Гефестион. Этот дом можно построить что по каркасной, что по каменной технологии; неизменным останется только одно - его брутальный экстерьер.

Внешний вид:

Какой материал больше всего ассоциируется с брутальностью? Конечно, камень или кирпич. Так как дом строится по каркасной технологии, применить этот материал при возведении мы не могли, зато использовали в наружной отделке его имитацию - фиброцементную плитку Технониколь Хауберк в расцветке "Готический кирпич".

Теперь обратите внимание на стропильную систему: здесь сложная вальмовая крыша с минимальными скатами. Это визуально делает ее более плоской, что является архитектурным трендом в современных загородных домах.

Ну и куда же без контрастных элементов! Их в проекте целых три - это белоснежная водосточная система, пластиковые окна и окантовка фасада по цоколю и под крышей.

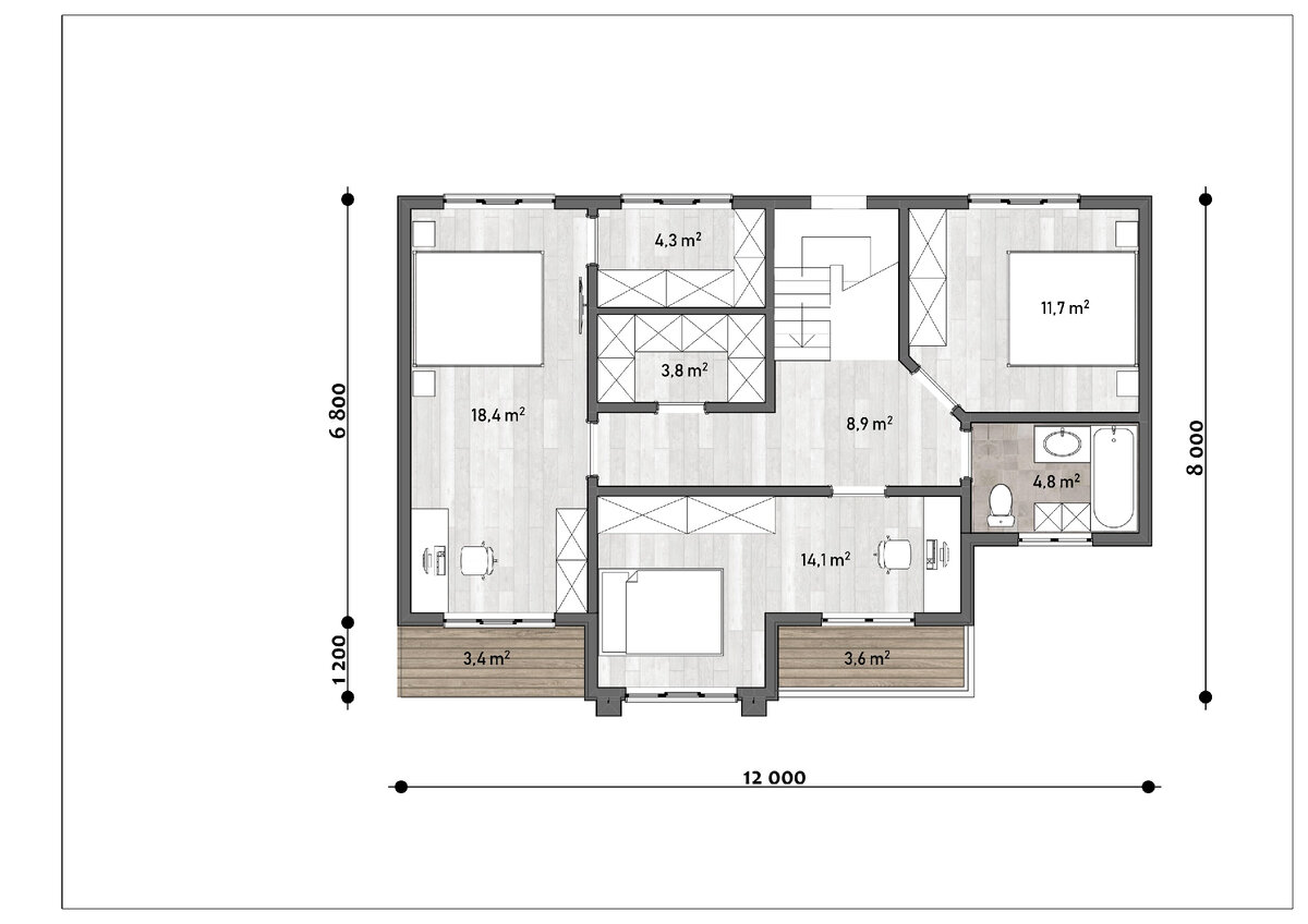
Планировка.

Параметры проекта:

Размер: 12x8 м.

Общая площадь: 144 м2

Начнем с первого этажа. Гостевая спальня, санузел, котельная, просторный холл с выходом на лестницу и гостевую зону. Зал в доме предусмотрен на 31,1 кв.м., здесь можно расположить и гостиную, и столовую. Это позволяет площадь помещения и второй выход из кухни в обеденную зону. И да, кухня отдельно. Как многие любят :)

Второй этаж - три спальни, две из которых с выходом на балкон. Также предусмотрена общая гардеробная и санузел.

Как обычно - пишите ваше мнение о проекте и задавайте вопросы о малоэтажном строительстве в комментариях! :)

И не забудьте посетить наш сайт, где размещено более трехсот типовых проектов для загородной жизни. Один из них может стать вашим ;)

🏡 Больше информации о проекте и подробная смета на сайте 🏡

📝 Каталог каркасных домов (от классики до авангарда) 📝

📲 Бесплатный расчет стоимости дома вашей мечты 📲

Подписывайтесь на наш дзен-канал! Ищите информацию о строительстве и не знаете, как выбрать технологию? Вам точно необходима консультация! Звоните 8-495-660-83-34!