Добавить в корзинуПозвонить
Найти в Дзене

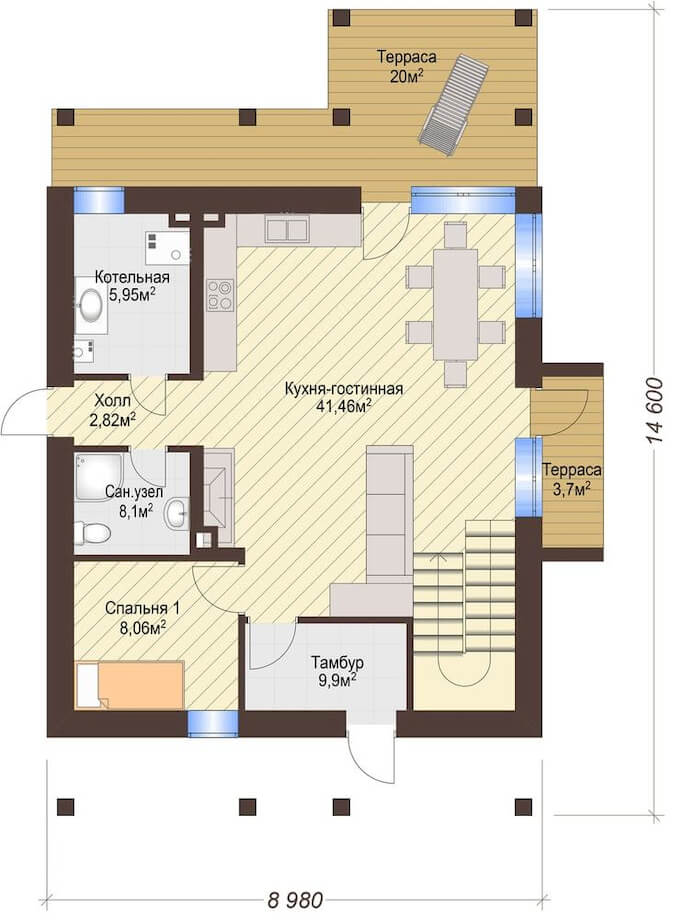
Проект дома с террасой 172 кв. м. под строительство

Компания Home Строй готова построить дом с террасой, площадью 172 кв. м. Габариты дома 15 х 9 метров. Строим в любом регионе России! О строительстве Мы готовы построить дом по данному проекту из любых материалов (кирпич, блок, дерево, каркасный). На строительство дома действует гарантия 5 лет. При заказе строительства проект дома в подарок! Стоимость дома зависит от выбранного материала, фундамента, крыши, вида облицовки фасада и внутренней отделки, а так же дополнительных работ. Примерную стоимость можно рассчитать на сайт https://home500.ru/projects/proekt-doma-k-2172/ О проекте дома В проект дома входит: 5 комнаты (4 спальни, кухня-гостиная), 2 террасы, котельная, 2 холла, 2 санузла, тамбур, гардеробная, 2 балкона. Площади комнат: - кухня-гостиная (41,46 кв. м) - спальни (8,06 кв. м, 15,6 кв. м, 15,6 кв. м, 14,18 кв. м) - 2 террасы (3,7 кв. м, 20 кв. м) - котельная (5,95 кв. м) - 2 холла (2,82 кв. м, 7,61 кв. м) - 2 санузла (6,09 кв. м, 8,1 кв. м) - тамбур (9,9 кв. м) - гардеробная
Оглавление

Компания Home Строй готова построить дом с террасой, площадью 172 кв. м. Габариты дома 15 х 9 метров. Строим в любом регионе России!

О строительстве

Мы готовы построить дом по данному проекту из любых материалов (кирпич, блок, дерево, каркасный). На строительство дома действует гарантия 5 лет. При заказе строительства проект дома в подарок!

Стоимость дома зависит от выбранного материала, фундамента, крыши, вида облицовки фасада и внутренней отделки, а так же дополнительных работ. Примерную стоимость можно рассчитать на сайт https://home500.ru/projects/proekt-doma-k-2172/

О проекте дома

В проект дома входит: 5 комнаты (4 спальни, кухня-гостиная), 2 террасы, котельная, 2 холла, 2 санузла, тамбур, гардеробная, 2 балкона.

Площади комнат:

- кухня-гостиная (41,46 кв. м)

- спальни (8,06 кв. м, 15,6 кв. м, 15,6 кв. м, 14,18 кв. м)

- 2 террасы (3,7 кв. м, 20 кв. м)

- котельная (5,95 кв. м)

- 2 холла (2,82 кв. м, 7,61 кв. м)

- 2 санузла (6,09 кв. м, 8,1 кв. м)

- тамбур (9,9 кв. м)

- гардеробная (3,8 кв. м)

- 2 балкона (4,44 кв. м, 14,3 кв. м)

Планировки

-2
-3

Проект дома

Проект этого дома: https://home500.ru/projects/proekt-doma-k-2172/

Все проекты домов: https://home500.ru/projects/

Следите за нами

Наш сайт: https://home500.ru/

Наш Instagram: https://www.instagram.com/home500.ru/

Наш VK: https://vk.com/home500ru