Найти в Дзене

Дилемма - оставить чердак чисто под кладовую или переделать утепление?

При строительстве дома у нас получился очень большой чердак. А благодаря конструкции комнаты, расположенной над верандой, - высота межкомнатной стены составляет 3,20 м - мы сделали лаз/проем на него прямо из комнаты, над дверью. В планах было разделить длину чердака на две части. ✔ В одной из них хотели организовать местечко для уединения - сделать небольшой оконный проем, постелить мат или матрац, сделать приглушенное освещение, смонтировать полочки для книг, при необходимости повесить маленький телевизор. ✔ Вторую половину хотели сделать чисто кладовой. На этот раз мы приехали с Настей не только проверить дом, но и сделать замеры чердака, чтобы составить список материалов, необходимых для его облагораживания/отделки. Каково же было мое удивление, разочарование, когда я увидела, что потолок чердака опущен! Я все это время была уверена, что потолка, как такового, на чердаке нет, что крыша утеплена под самый конек. А на деле сейчас высота чердака всего 0,73 м... Опять дилемма - оставит

При строительстве дома у нас получился очень большой чердак. А благодаря конструкции комнаты, расположенной над верандой, - высота межкомнатной стены составляет 3,20 м - мы сделали лаз/проем на него прямо из комнаты, над дверью.

В планах было разделить длину чердака на две части.

-2
✔ В одной из них хотели организовать местечко для уединения - сделать небольшой оконный проем, постелить мат или матрац, сделать приглушенное освещение, смонтировать полочки для книг, при необходимости повесить маленький телевизор.
✔ Вторую половину хотели сделать чисто кладовой.

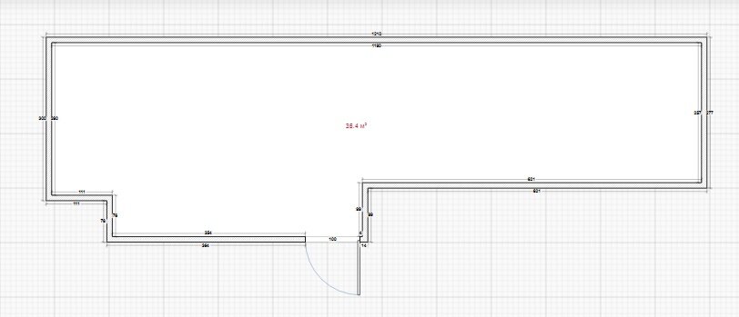
На этот раз мы приехали с Настей не только проверить дом, но и сделать замеры чердака, чтобы составить список материалов, необходимых для его облагораживания/отделки.

Каково же было мое удивление, разочарование, когда я увидела, что потолок чердака опущен! Я все это время была уверена, что потолка, как такового, на чердаке нет, что крыша утеплена под самый конек. А на деле сейчас высота чердака всего 0,73 м...

Опять дилемма - оставить чердак чисто под кладовую или переделать утепление?