Найти в Дзене
ЭТО ВАШ ИНТЕРЬЕР

Стильный ремонт старой квартиры с низкими потолками для пожилой пары. Фото до и после

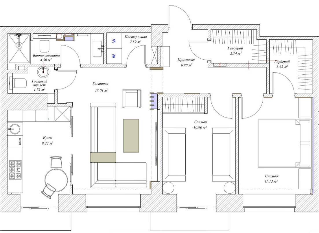
Данную квартиру наши герои приобрели недавно, чтобы наконец-то "пожить для себя". Так как квартира была не в лучшем виде, то они сразу же решили её полностью переделать под себя. Главная проблема этой квартиры - низкие потолки, всего 2,5 метра (после загородного дома, для хозяев высота потолков казалось слишком низкой). Поэтому дизайнер сразу же решил любыми средствами визуально их увеличить. Решили добавить высокие деревянные панели, большие зеркала и крупноформатный керамогранит. Проект Было решено сделать небольшую перепланировку, в ходе которой появились дополнительные две гардеробные и одна хозяйственная комната. Этого удалось достичь за счет площади коридоров. Вход на кухню теперь находился в гостиной, а жилые помещения поделили на гостиную и 2 спальни. Прихожая Владельцам очень нравятся традиционные фактуры, поэтому на пол положили паркет. Некоторую часть стен оформили крупным керамогранитом, из-за этого получилось хороший контраст теплых оттенков и холодных. Гостиная Так как
Оглавление

Данную квартиру наши герои приобрели недавно, чтобы наконец-то "пожить для себя". Так как квартира была не в лучшем виде, то они сразу же решили её полностью переделать под себя. Главная проблема этой квартиры - низкие потолки, всего 2,5 метра (после загородного дома, для хозяев высота потолков казалось слишком низкой). Поэтому дизайнер сразу же решил любыми средствами визуально их увеличить. Решили добавить высокие деревянные панели, большие зеркала и крупноформатный керамогранит.

Проект

  • Расположение квартиры: г. Москва
  • Площадь квартиры: 70 кв. метров
  • Жильцы: пожилая семейная пара

Было решено сделать небольшую перепланировку, в ходе которой появились дополнительные две гардеробные и одна хозяйственная комната. Этого удалось достичь за счет площади коридоров. Вход на кухню теперь находился в гостиной, а жилые помещения поделили на гостиную и 2 спальни.

Прихожая

Владельцам очень нравятся традиционные фактуры, поэтому на пол положили паркет.

-2

Некоторую часть стен оформили крупным керамогранитом, из-за этого получилось хороший контраст теплых оттенков и холодных.

-3

Гостиная

Так как у супругов имеется загородный дом, то они попросили добавить в новый интерьер побольше древесных фактур, желательно в темных цветовых гаммах. Так же супруги являются приверженцами стиля кантри. Именно из-за этого, в оформлении пространства появились деревянные панели и рейки из дуба.

-4

Чтобы пространство выглядело более просторным, было решено стены сделать в белом цвете. Так же, от штор решили отказаться (это была идея владельцев, так как они долго жили за границей и им без штор стало привычнее).

По потолку шла конструктивная балка, которая плавно переходила в вертикальный пилон. Его было решено задекорировать деревянными панелями. Балку же задекорировали под имитацию бетона, которая так же дублировалась внизу - в виде бетонной консоли.

-6

Кухня

Кухня была газифицированная, поэтому при перепланировке обязательным условиями была перегородка, которая разделяла гостиную и кухню. Поэтому здесь установили большую раздвижную дверь со стеклянными вставками.

-7

По инициативы заказчиков, кухонный гарнитур был выбран в темно-синей цветовой гамме, из массива дуба. Фартук выполнен мозаикой. Так же здесь разместилась небольшая столовая зона.

-8
-9

Спальня

Весь интерьер спальни выполнен в довольно теплых, и местами темных тонах. Стену за изголовьем кровати декорировали гипсокартоном, и установили между полотнами подсветку.

-10

Так же из спальни ведут две двери: одна в гардеробную, другая в коридор. По инициативе хозяев, двери и вся стена оформлены в темном дереве.

-12

Санузел

Здесь решили добавить побольше деревянных фактур.

-13

Вместо классической ванны, владельцы принципиально хотели себе душевую кабину. На полу и на стенах в душевой положили керамогранит.

-14

Гостевой туалет

Гостевой санузел отличается светлыми и пастельными тонами от всего интерьера квартиры. Он получился более нежным и светлым.

-15

Здесь расположился подвесной унитаз и большая раковина с зеркалом.

-16

К сожалению, фотографий второй спальни нет, но она её оформили в той же цветовой гамме, что и гостиную.

Если вам понравилась данная статья, то не забудьте поставить лайк и подписаться, чтобы не пропустить новый материал!