Добавить в корзинуПозвонить
Найти в Дзене
SV-GARAGE

Гараж с нуля. Как разработать дизайн- проект?

В прошлой статье мы рассказали, как создать уютное пространство в гараже с нуля общими словами. Начиная с этой статьи, мы будем рассказывать подробнее о том, как выглядит этот процесс. Многоступенчатый процесс создания гаража: Мы рассказали вам обо всем процессе начала создания гаража. Мы думаем, что большинство из этих пунктов вам понятно, но, если это не так - напишите нам об этом в комментариях и мы обязательно напишем статью на данную тему. Как вы видите, это очень сложный процесс, который отнимает много времени и сил, а также требует профессионального вмешательства. Мы можем вам с этим помочь. Наша компания «SV GARAGE» занимается: созданием гаражей с нуля, обустройством гаражей, переоборудованием гаражей, а также может осуществить вашу любую мечту, связанную с гаражом. Подробнее о нас вы можете узнать, перейдя по ссылке. Но вернёмся к статье. Мы остановимся на пунктах, которые требуют профессионального внимания. Проектирование Существует 4 уровня проектирования гаража: 1. Чертёж

В прошлой статье мы рассказали, как создать уютное пространство в гараже с нуля общими словами. Начиная с этой статьи, мы будем рассказывать подробнее о том, как выглядит этот процесс.

Многоступенчатый процесс создания гаража:

  • Определение минимально необходимого размера площади гаража. Например, вам необходимо чтобы в гараже помещалось 2 автомобиля и между ними было достаточно места для перемещения и при этом достаточно места для хранения важных и нужных вещей. Высота потолков также играет важную роль, чтобы не теснило пространство. Также возможное размещение подъёмника для техники (ссылка на лендинг по подъёмникам) или потолочных антресолей.
  • Выяснение потребностей (хобби). Например, рыбаку в гараже нужно место для хранения удочек, рыболовных снастей, моторной лодки и т.д.
  • Зонирование. В этом пункте мы грамотно распределяем вышеперечисленные потребности, а также где будет располагаться рабочая зона, зона отдыха, место для игр детей.
  • Логистика. Под этим подразумевается перемещение ящиков, инструментов и предметов интерьера в гараже. Например, вы рыбак и купили удочку. Пока вы несете ее в другой конец гаража, держа в мыслях как не поцарапать автомобиль, когда вы обходите его, нужно заранее спланировать место для хранения всех своих рыбацких принадлежностей и других нужных и важных вещей. Желательно, как можно дальше от машины и как можно ближе к входу/выходу, чтобы не тащиться через весь гараж.
  • Проектирование. Состоит из нескольких уровней и каждый из них по-своему особенный и очень важный. О них мы напишем подробнее дальше.
  • Выбор строительных материалов. Когда вы все спланировали и спроектировали, чтобы ваш гаража служил вам как можно больше, а не развалился через год, очень важно подходить ответственно к выбору строительных материалов и не экономить на них, отдавая приоритет в пользу качества.
  • Процесс строительства. Если ваш гараж строят специалисты, очень важно контролировать процесс строительства гаража лично, отслеживая соблюдение строительных норм, даже если у вас есть прораб.

Мы рассказали вам обо всем процессе начала создания гаража. Мы думаем, что большинство из этих пунктов вам понятно, но, если это не так - напишите нам об этом в комментариях и мы обязательно напишем статью на данную тему.

Как вы видите, это очень сложный процесс, который отнимает много времени и сил, а также требует профессионального вмешательства. Мы можем вам с этим помочь.

Наша компания «SV GARAGE» занимается: созданием гаражей с нуля, обустройством гаражей, переоборудованием гаражей, а также может осуществить вашу любую мечту, связанную с гаражом. Подробнее о нас вы можете узнать, перейдя по ссылке. Но вернёмся к статье.

Мы остановимся на пунктах, которые требуют профессионального внимания.

Проектирование

Существует 4 уровня проектирования гаража:

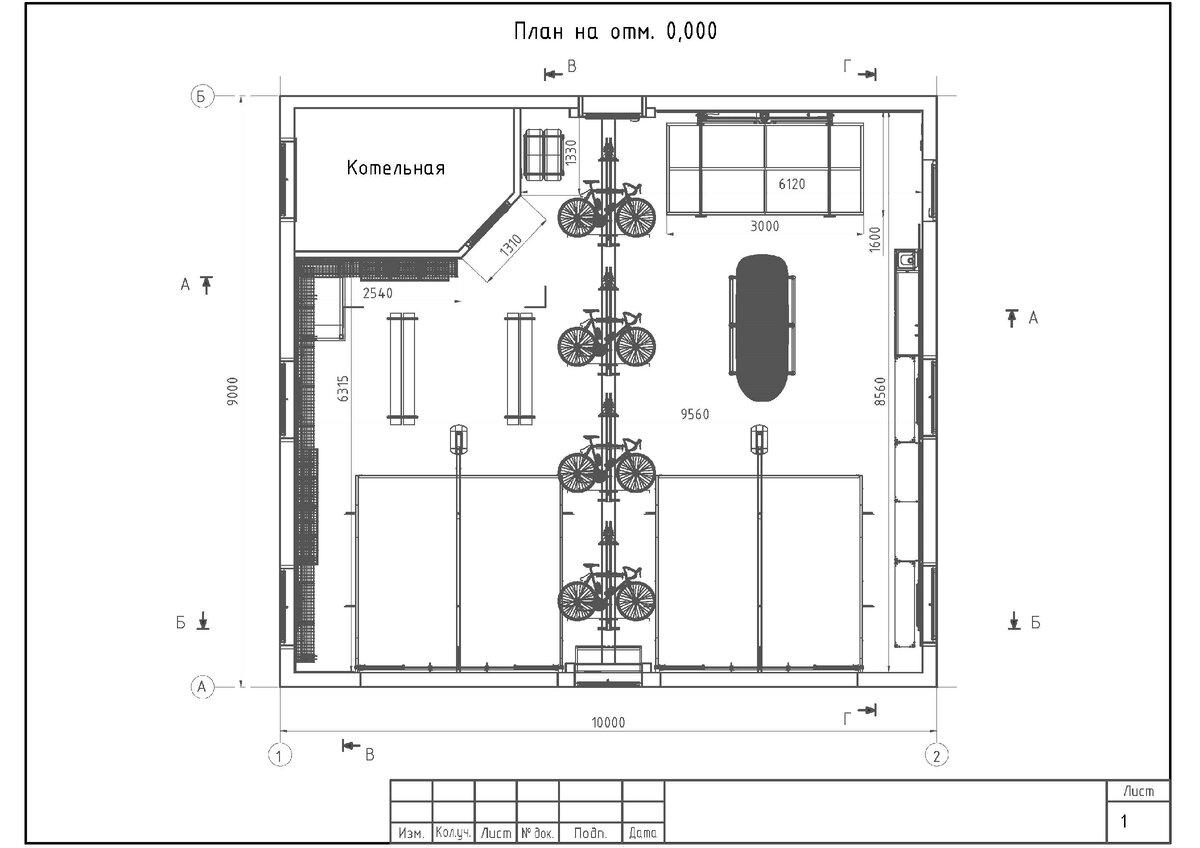
1. Чертёж

Дизайнеры-проектировщики составляют несколько вариантов того, как в будущем будет выглядеть гараж и его составляющие. А именно: размеры гаража (высота потолков, длина и ширина всех стен), расположение мебели, подъёмников, ящиков и т.д. Далее, один из вариантов, одобренный клиентом, мы разрабатываем до мелких деталей.

-2

2. 3D моделирование

Объёмная модель будущего гаража с вашими индивидуальными размерами. Дает полное понимание, как будет выглядеть ваш гараж и объекты в нём.
*Включает в себя 1 уровень (чертёж).

-3
-4

3. 3D моделирование в цвете

Та же объёмная модель гаража, только в цвете. Помогает лучше понять, как будет выглядеть гараж в жизни во всей его красоте.
*Включает в себя 1 уровень (чертёж).

-5
-6

4. Виртуальная трехмерная визуализация

Позволит вам прогуляться по вашему готовому гаражу, ощутить на себе в полной мере всё его пространство и объём, является лучшим выбором при проектировании. Так как данный уровень подразумевает использование очков виртуальной реальности, к сожалению, в данной статье мы физически не можем это продемонстрировать.
*Включает в себя 1 уровень (чертёж).

Сегодня мы рассказали вам о многоступенчатом процессе, поделились советами создания гаража, подробно рассказали о проектировании.

Но проектирование – это лишь малая часть строительства гаража, также важен сам процесс обустройства гаража, о котором мы расскажем в следующих статьях.

Мало построить большой и красивый гараж – важно грамотно обустроить его изнутри.