Найти в Дзене
ЭТО ВАШ ИНТЕРЬЕР

Стильный ремонт квартиры площадью 40 кв. метров для молодой девушки. Фото до и после

Данная квартира находится в одном из бывших доходных домов в Москве, на Старом Арбате. И здесь ремонт требовался практически капитальный. Сама квартира была приобретена для старшей дочери владелицы квартиры, которая является творческой и целеустремленной девушкой. Проект: Мокрые зоны квартиры оставили на своих местах, так как законным способом объединить санузел было невозможно. Решили разобрать одну из стен, которая разделяла квартиру. Полукруглая стена в прихожей - это часть архитектуры самого дома, поэтому ее решили не трогать, а просто выровняли и покрасили. Так как возвели перегородку между коридором и комнатной, теперь здесь появилось две ниши для шкафов. Со стороны прихожей разместился встроенный шкаф, а со стороны спальни появилась небольшая гардеробная. С самого начала заказчица сказала, что предпочитает скандинавский стиль. Чтобы в интерьере преобладали светлые оттенки и естественные цвета. Напольное покрытие решили сделать из инженерной доски светлого оттенка. Вся цветовая

Данная квартира находится в одном из бывших доходных домов в Москве, на Старом Арбате. И здесь ремонт требовался практически капитальный. Сама квартира была приобретена для старшей дочери владелицы квартиры, которая является творческой и целеустремленной девушкой.

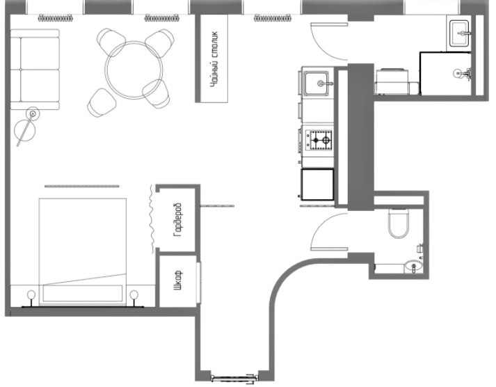
План квартиры ДО
План квартиры ДО

Проект:

  • Местоположение: г. Москва, Старый Арбат
  • Площадь квартиры: 40 кв. Метра
  • Владелец: молодая девушка
План квартиры ПОСЛЕ
План квартиры ПОСЛЕ

Мокрые зоны квартиры оставили на своих местах, так как законным способом объединить санузел было невозможно. Решили разобрать одну из стен, которая разделяла квартиру.

Полукруглая стена в прихожей - это часть архитектуры самого дома, поэтому ее решили не трогать, а просто выровняли и покрасили. Так как возвели перегородку между коридором и комнатной, теперь здесь появилось две ниши для шкафов. Со стороны прихожей разместился встроенный шкаф, а со стороны спальни появилась небольшая гардеробная.

-4

С самого начала заказчица сказала, что предпочитает скандинавский стиль. Чтобы в интерьере преобладали светлые оттенки и естественные цвета.

Напольное покрытие решили сделать из инженерной доски светлого оттенка. Вся цветовая гамма квартиры в светлых тонах. Но чтобы интерьер не был скучным, его разбавили яркими цветовыми акцентами, например, желтый диван и зеленый холодильник.

Так как в квартире есть газ, то кухня должна быть изолирована, и должен быть доступ к коммуникациям. Стояк был спрятан за люком, за фартуком под вытяжкой.

-7
-8

Там где раньше стоял холодильник была перегородка, из-за которой в прихожей было довольно темно и мрачно. Теперь же перегородка осталась, но её было решено сделать прозрачной, чтобы свет проходил в наш коридор.

-9

Холодильник было решено поставить в одну линию с кухонным гарнитуром. Сам гарнитур решили сделать в спокойных серых тонах. И чтобы кухня не казалась громоздкой, решили отказаться от верхнего яруса.

Саму кухню и комнату зонирует небольшая перегородка, так как когда ее хотел демонтировать, то нашли несущие бруски. У этой перегородки теперь появился небольшой чайный столик, на нем разместился чайник и кофемашина. Также здесь есть дополнительное место хранения. На саму перегородку повесили большое зеркало, которое увеличивает пространство и дает больше света.

-11

С другой стороны перегородки повесили телевизор. Так же, там разместилась столовая зона и диван.

-12

Чтобы зонировать спальню от гостиной, было решено возвести небольшую стеклянную перегородку.

-13

Ванная комната была, конечно, в ужасном состоянии, но зато здесь имелось окно и потолки в 3,5 метра. Стандартную ванну решили заменить на душевую кабинку. Поменяли всю плитку, на полу установили "теплый пол". Шторы убрали, а на само окно наклеили специальную пленку с односторонней видимостью. Так же здесь появился небольшой туалетный столик.

-14

В санузле тоже полностью поменяли всю плитку и коммуникации. Так же здесь добавили небольшую столешницу с раковиной. Посередине стены было решено поклеить обои, в которые заказчица влюбилась с первого взгляда.

-17

Если вам понравилась данная статья, то не забудьте поставить лайк и подписаться, чтобы не пропустить новый материал!