Добавить в корзинуПозвонить
Найти в Дзене
Обо всём и не о чем)

Перепланировка трех комнатной квартиры в 1605-АМ и ремонт

Расскажу как и на чём сэкономили и сколько обошёлся ремонт и квартира Продав двушку в таком же доме ( 1605-ам) мы купили типовую трёшку, специально без ремонта что-бы сделать так как хотим. Квартира обошлась 8 300 000р + услуги риэлтора отдельно ( 23 апреля 2020 г, Москва улица маршала федоренко). К сведению двушку на этой улице мы продали с ремонтом и частично с мебелью за 7 950 000р в соседнем доме в этой квартире кухня 6.6 метров, ванна 1.5 метра и одна проходная комната В квартире ремонт не делался очень давно из за этого она была на порядок меньше рыночной, дальше фото что мы купили Немного истории: идея продажи и покупки квартиры была что-бы сделать гостиную комнату, поэтому купили эту квартиру .Да без ремонта но зато площадь больше, забегая вперед скажу что в та квартира продалась почти со всем что было в ней. Итак начались де монтажные работы, хотелось сделать по быстрее но через неделю объявили первый карантин. Паспорт с пропиской получил 16 Марта 2020 года. а 23 м
Оглавление

Расскажу как и на чём сэкономили и сколько обошёлся ремонт и квартира

Продав двушку в таком же доме ( 1605-ам) мы купили типовую трёшку, специально без ремонта что-бы сделать так как хотим.

Квартира обошлась 8 300 000р + услуги риэлтора отдельно ( 23 апреля 2020 г, Москва улица маршала федоренко). К сведению двушку на этой улице мы продали с ремонтом и частично с мебелью за 7 950 000р в соседнем доме

типовая трёхкомнатная квартира в 1605-ам
типовая трёхкомнатная квартира в 1605-ам

в этой квартире кухня 6.6 метров, ванна 1.5 метра и одна проходная комната

В квартире ремонт не делался очень давно из за этого она была на порядок меньше рыночной, дальше фото что мы купили

Ванна в ярко розовом цвете и то что было под машинкой у предыдущих жильцов
Ванна в ярко розовом цвете и то что было под машинкой у предыдущих жильцов
в проходной комнате был приклеен ковролин на линолиум
в проходной комнате был приклеен ковролин на линолиум
-4
-5
-6
-7
-8
-9
-10

Немного истории: идея продажи и покупки квартиры была что-бы сделать гостиную комнату, поэтому купили эту квартиру .Да без ремонта но зато площадь больше, забегая вперед скажу что в та квартира продалась почти со всем что было в ней.

Итак начались де монтажные работы, хотелось сделать по быстрее но через неделю объявили первый карантин.

Паспорт с пропиской получил 16 Марта 2020 года. а 23 марта всем объявили карантин. Шуметь нельзя ( соответственно штробить тоже и т.д) ну ППЦ думаю продлится это непонятно сколько. Но это меня не остановило и начали рабочие де монтажные работы в этот момент познакомился с многими соседями естественно начали приходить возмущаться но пошли на встречу и попросили не круглые сутки долбить/штробить. из-за чего ремонт затянулся

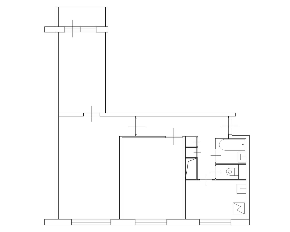
Решили что сделаем перепланировку, а конкретно из первой комнаты сделаем проход на кухню, ванну с туалетом объединим прихватив немного коридора, и вторую комнату сделаем не проходной + балкон присоединить к комнате. Почти то что нам надо мы нашли на MOS.Ru в типовых перепланировках https://www.mos.ru/mgi/function/pereustroistvo-i-pereplanirovka/katalog-tipovykh-proektnykh-reshenii-pereplanirovki-kvartir-v-zhilykh-domakh-massovykh-serii/, отличие было в том что проём планировали сделать ближе к окну но в МФЦ сказали не получится и потом когда пришли из то мосжилинспекции осматривать помещение сказали что близко к окну не получится ни кто не подпишет такое так как несущая конструкция дома.

Итак подали заявление в МФЦ через пару месяцев получили разрешение с ТЗ как и что надо делать ( там достаточно много было про укрепление проёма)

перепланировка 3-комнатной квартиры (объединение ванной и вход в кухню из гостинной)
перепланировка 3-комнатной квартиры (объединение ванной и вход в кухню из гостинной)

Как что где будет располагаться что-то придумали с женой сами а что-то взяли из интернета

Первым делом сломали всю ванну + болконый блок и очистили полностью квартиру до бетона

2 рабочих ( демонтажника) 2 дня работы и 1700р каждому в сутки

Возвели перегородки из пазогребневых блоков и начались штукатурные работы

Рабочих посоветовали знакомые. которые брали не по квадратным метрам а по выход в сутки ( 2000р стоил один рабочий ) это за штукатурку, шпатлёвку, возведение стен, стяжка, частично электрика.

-12
-13

Что бы выровнить весь коридор в некоторых местах на сетку штукатурки было до 6-7 см, 5 стен в квартире ( в комнатах ) оставили не штукатуренными так как они более менее были ровные.

Выпилили проём

-14

укрепили швелером П-образным и укрепили арматурой на сварку

стоимость с материалом 28тр

Параллельно другая бригада растягивала всю электрику и штробили где требовалось. в каждую комнату завели интернет кабель и антенну под телевизор и компьютер в детской и рабочее место на балконе

Получился щиток на 22 автомата + слаботочный щиток с роутером и антенной

Вводной кабель 6 квадратов автомат на него 40, на плиту 4 квадрата , а всё остальное 2,5 квадрата

Около двери получилась большая куча проводов нам пришлось удлинять входную арку над дверью что-бы спрятать все провода

-15

до натяжного потолка это было вот так и это только свет и слаботочка

Начались работы в ванной комнате, хотели плитку под мрамор и дерево + полочки над стиральной машиной и боллер в стояке на тот случай когда отключают воду летом

Заменили все трубы и потавили гребёнку на каждый кран + два дополнительных на боллер вход/выход

-16

началась облицовка плиткой половина ванной плитка чёрная мрамор а вторая под дерево , углы решили делать под 45. Под самой ванной сделали скрытый люк и облицевали все мозайкой, сама ванна 170х110

-17
-18
-19
-20
-21
-22
-23
-24
-25
-26
-27
-28
-29

что сделали: по ванной всё запенили чтобы не шумела от воды да и как то понадёжнее так ( ушло более 10 балонов пены), полотенце сущитель 85х50 водяной, гигиенический душ чаще он правда используется вместо ёршика, зеркало 100х60 с подствекой, раковина 110 с двумя ящиками, кран в ванной и душевая стойка отдельно.

Получилось очень круто

Стоимость материалов и работ :

плитка 60тр ( на складской базе улица вагоноремонтная)

сантехника 130тр (раковина, краны, ванна, туалет, боллер, раковина, трубы)

За работу взяли 80тр, + с рабочими их Жека поменяли трубы это ещё 22 тр, + заменил счётчики 5тр

Далее все стены в квартире кроме детской было решено покрасить предварительно наклеив обои под покраску. в серый и серо/голубой

Между туалетом и комнатой стена из панно зеркал а в гостиной за телевизором декоративные рейки

пока не дописана статья но опубликую потом доделаю

-30
-31
-32
-33
-34