Добавить в корзинуПозвонить
Найти в Дзене
ЭТО ВАШ ИНТЕРЬЕР

До и После: полная переделка квартиры в центре Алма-Аты, для женщины в возрасте

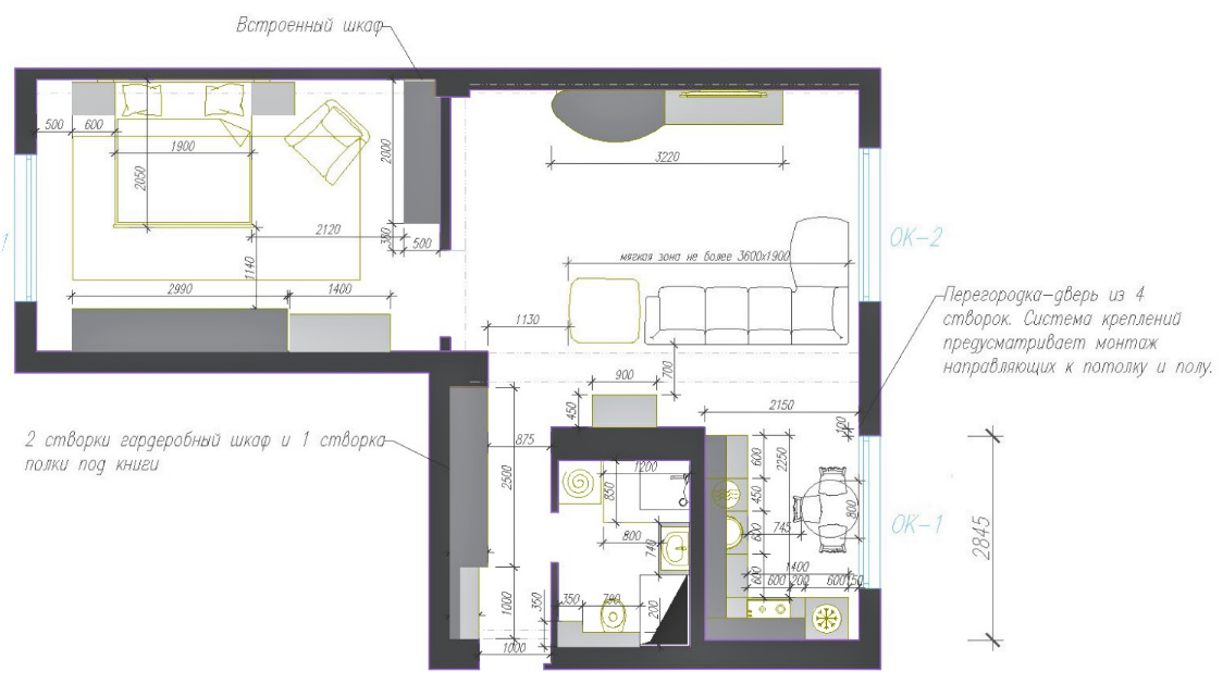
Данная квартира находится на одном из центральных проспектов города Алма-Аты, в Казахстане. Владелица квартиры женщина в возрасте, которая захотела сделать интерьер более светлым, просторным и воздушным. Именно поэтому основные цвета в дизайн-проекте светлые, и вместо распашных темных дверей, появилась зеркальная белая раздвижная дверь. Проект Прихожая Одним из пожеланий хозяйки было сделать больше зон для хранения, без перепланировки. Поэтому в прихожей полностью заменили старую отделку и старые шкафы из 90-х. Их заменили на новые светлые шкафы, с зеркальными вставками в дверях. Так же у входа расположили мягкую кушетку, а под ней открытая секция под обувь. А над кушеткой сделали небольшие антресольные шкафы. Напольное покрытие выложено плиткой. Гостиная Весь проект начался с одной главной детали гостиной - это большая раздвижная стеклянная дверь. Данную дверь очень хотела сама владелица квартиры, так как предыдущие распашные её не устраивали по многим причинам, начиная от того, что о
Оглавление

Данная квартира находится на одном из центральных проспектов города Алма-Аты, в Казахстане. Владелица квартиры женщина в возрасте, которая захотела сделать интерьер более светлым, просторным и воздушным. Именно поэтому основные цвета в дизайн-проекте светлые, и вместо распашных темных дверей, появилась зеркальная белая раздвижная дверь.

Проект

  • Местонахождение: Казахстан, г. Алма-Аты
  • Площадь квартиры: 64 кв. метров
  • Владельцы: Женщина в возрасте

Прихожая

Одним из пожеланий хозяйки было сделать больше зон для хранения, без перепланировки. Поэтому в прихожей полностью заменили старую отделку и старые шкафы из 90-х. Их заменили на новые светлые шкафы, с зеркальными вставками в дверях. Так же у входа расположили мягкую кушетку, а под ней открытая секция под обувь. А над кушеткой сделали небольшие антресольные шкафы. Напольное покрытие выложено плиткой.

После
После

Гостиная

Весь проект начался с одной главной детали гостиной - это большая раздвижная стеклянная дверь. Данную дверь очень хотела сама владелица квартиры, так как предыдущие распашные её не устраивали по многим причинам, начиная от того, что открыть полностью одну дверцу было невозможно и заканчивая мрачным цветом.

Все стены в квартире выкрашены в один светлый тон. Посередине комнаты расположился большой угловой диван, напротив которого сделали телевизионную зону. За диваном в стене установили биокамин, о котором давно мечтала хозяйка квартиры.

Так как тумба под телевизор была очень качественная и дорогая, ее решили вписать в уже имеющийся интерьер. И на фоне белых стен с молдингами, она стала смотреться совсем иначе. Единственное, секции стенки решили поменять местами.

-5

Кухня

Гостиную и кухню разделили задвигающейся стеклянной перегородкой. Благодаря стеклу, свет в гостиную проходит очень хорошо. Весь кухонный гарнитур было решено заменить. Выбрали максимально светлые тона, благодаря чему, кухня стала выглядеть намного просторнее и свежее.

До
До

Верхний ярус гарнитура, по просьбе хозяйки, сделали максимально до потолка, чтобы было как можно больше места для хранения. На полу выложили плитку под мрамор.

После
После

Фартук сделан из керамогранита. И из-за того, что фартук монтировали после того, как установили кухонный гарнитур, удалось избежать бортика на столешнице.

-8

Спальня

Если присмотреться, то на самом деле, здесь почти вся мебель осталась от старого интерьера. Просто на новом классическом белом фоне, вся мебель смотрится намного солиднее и очень в тему. Даже люстра, которую вы видите на фото, раньше висела в гостиной.

До
До

Так же здесь расположили большой зеркальный гардеробный шкаф и встроенный шкаф для бытовых нужд хозяйки (это тот шкаф, который находится справа от входа с золотым квадратным орнаментом на фасаде). Одна из секций шкафа прячет в себе гладильную доску (с выкатным механизмом).

После
После

Сперва здесь должны были быть стильные дизайнерские обои, но к сожалению, их испортили строители. А так как ждать эти обои надо было около 1,5 месяца, было решено сделать стены так же, как и в гостиной (хозяйка очень хотела побыстрее въехать в новый интерьер, и не захотела ждать поставку обоев).

-11

Ванная комната

Раньше, здесь находилась огромная громоздкая ванна-джакузи, которая занимала почти всю ванную комнату.

До
До

Но хозяйка ею не пользовалась и попросила заменить на более практичный вариант - душевую кабинку. Так и сделали, а рядом с душевой появилось место для размещения стиральной машинки и сушильной. Разместили их друг на друге, в виде колонны.

После
После

Если вам понравилась данная статья, то не забудьте поставить лайк и подписаться, чтобы не пропустить новый материал!