Добавить в корзинуПозвонить
Найти в Дзене
Филдс

Квартира с необычным зонированием: как дизайнер оформила евродвушку 50 м² для студента в Петербурге

Дизайнер Ирина Картун оформила евродвушку 50 м² для молодого человека, который учится в вузе. В интерьере превалируют природные цвета, фактуры дерева и камня. «Изюминкой» проекта стали скруглённые панели из шпона. Планировка Гостиная Гостиную оформили в светлых тонах. Шпонированная панель в углу скрывает выступ несущей колонны. По цвету она перекликаются со стеклопакетами, подоконником и откосами. Напротив дивана обустроили ТВ-зону. Подвесная тумба под телевизором помогает визуально облегчить пространство. Кухня На пол в кухне уложили тёмный керамогранит, им же оформили зону фартука. Потолок немного опустили, чтобы встроить светильники. Гарнитур изготовили за заказ в «Кухни Maria». Секцию с навесными шкафами пустили только по одной стене, но зато довели до потолка. Спальня В спальне вновь появляется вогнутая шпонированная панель. Она помогает отгородить постель от рабочей зоны. Прихожая В прихожей предусмотрели ещё один шкаф, его корпус и фасады отделали шпоном Manhattan, как и
Оглавление

Дизайнер Ирина Картун оформила евродвушку 50 м² для молодого человека, который учится в вузе. В интерьере превалируют природные цвета, фактуры дерева и камня. «Изюминкой» проекта стали скруглённые панели из шпона.

  • Общая площадь: 50 м²
  • Место: Санкт-Петербург
  • Количество комнат: евродвушка
  • Бюджет: 12 млн рублей
  • Кто здесь живет: молодой человек
  • Дизайнер: Ирина Картун
  • Фото: Иван Сорокин

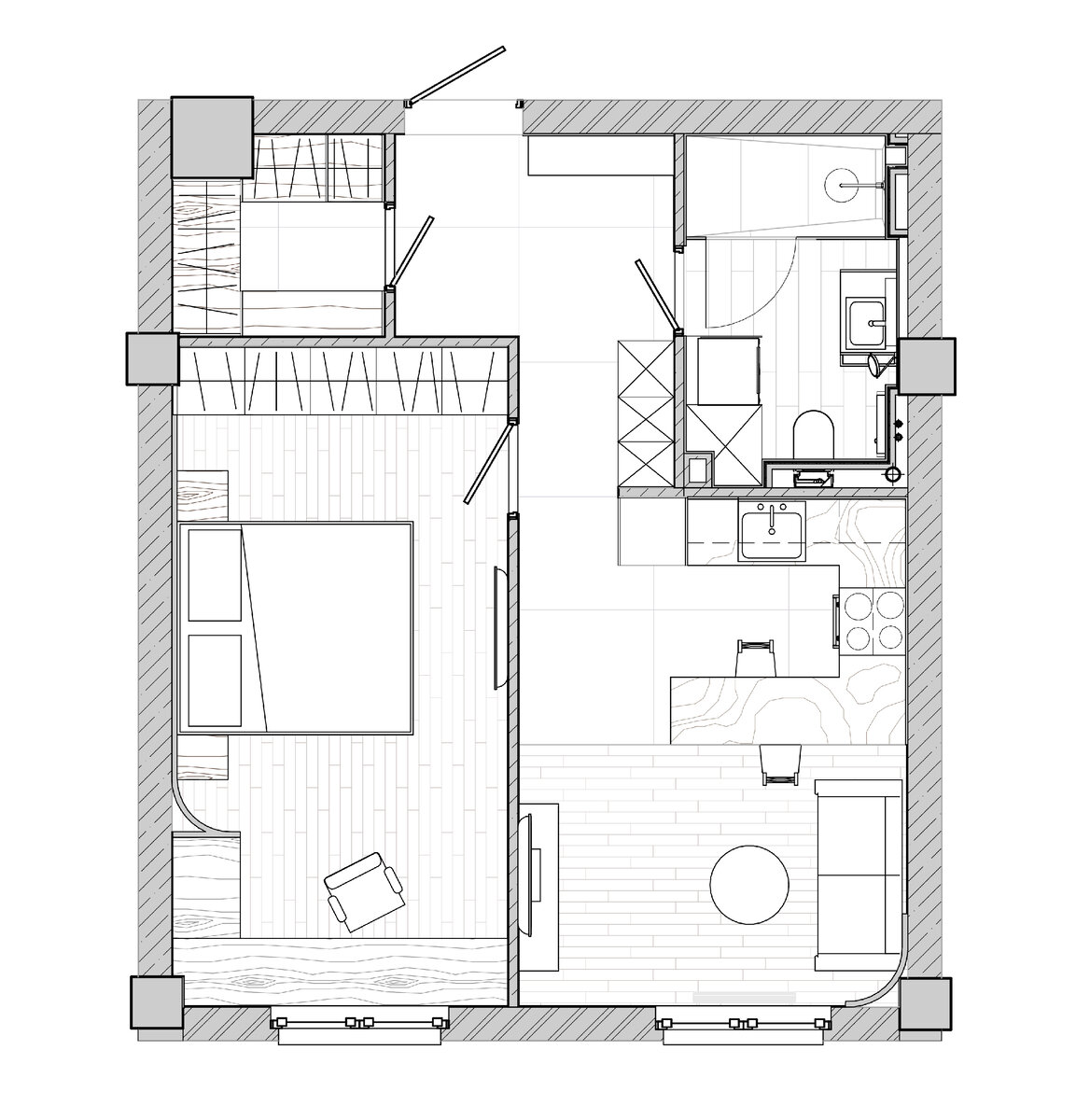
Планировка

Исходная планировка заказчика устраивала. Чтобы оптимизировать пространство, поменяли только расположение дверей в прихожей. Несмотря на наличие отдельной гардеробной, требовалось организовать дополнительные места для хранения. Эту задачу решают встроенные шкафы.
Исходная планировка заказчика устраивала. Чтобы оптимизировать пространство, поменяли только расположение дверей в прихожей. Несмотря на наличие отдельной гардеробной, требовалось организовать дополнительные места для хранения. Эту задачу решают встроенные шкафы.

Гостиная

Гостиную оформили в светлых тонах. Шпонированная панель в углу скрывает выступ несущей колонны. По цвету она перекликаются со стеклопакетами, подоконником и откосами. Напротив дивана обустроили ТВ-зону. Подвесная тумба под телевизором помогает визуально облегчить пространство.

Кухня

На пол в кухне уложили тёмный керамогранит, им же оформили зону фартука. Потолок немного опустили, чтобы встроить светильники. Гарнитур изготовили за заказ в «Кухни Maria». Секцию с навесными шкафами пустили только по одной стене, но зато довели до потолка.

Спальня

В спальне вновь появляется вогнутая шпонированная панель. Она помогает отгородить постель от рабочей зоны.

Прихожая

В прихожей предусмотрели ещё один шкаф, его корпус и фасады отделали шпоном Manhattan, как и пенал в кухне. Высокие межкомнатные двери 2,8 м визуально приподнимают потолок. Входную дверь тоже дополнили шпоном сверху.

Санузел

Стилистика санузла схожа с оформлением других комнат. В отделке скомбинировали два вида керамогранита — под дерево и под мрамор. Раковину подбирали в тон зелёным фасадам тумбы. Несмотря на небольшие размеры помещения, удалось обустроить хозблок со стиральной машиной.

Подпишись на канал Филдс, чтобы первым видеть новые публикации. Интересные мнения в комментариях приветствуются. Если материал понравился — ставь лайк!

Facebook, Instagram, Вконтакте