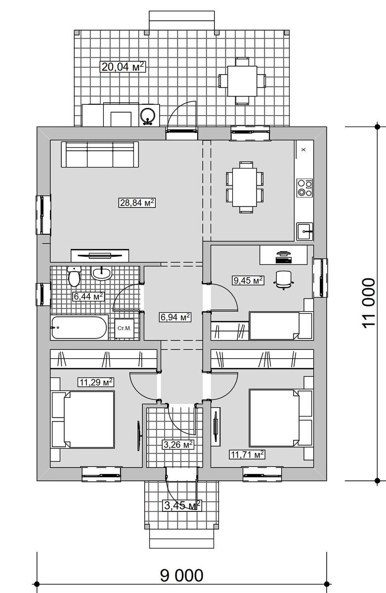
Добрый день! Спешу поделиться эскизом дома с весьма простой и жизнеспособной планировкой. Дом для взрослой пары, отсюда одно из пожеланий - 2 спальни сопоставимой площади + кабинет. И так, в доме 3 изолированных комнаты, совмещенный санузел и кухня-гостиная с выходом на террасу. Технического помещения нет и инженерное оборудование разместится в ванной и в кухне. Терраса и крыльцо дома выполнены в единой стилистике. Цветовое решение дома - фактически 2 цвета: белый и серый. Акцент на вход в дом - красная дверь. Еще из особенностей фасадов - окна с заниженными подоконниками и фальш-перемычки окон из декоративного камня. Крыша максимально простая, 2-х скатная и с небольшим свесом в 40 см. Уклон - 23 градуса. Конструктивно дом очень прост. Материал стен - газобетон с утеплением и штукатуркой, перегородки - также газобетон. Остальное - все обычно: жб перемычки, армопояс и тд. Небольшая терраса с мангалом логически разделена на две функциональных зоны: зона самого мангала и зона, где разм
