Добавить в корзинуПозвонить
Найти в Дзене
Добрый архитектор

Проект в стиле минимализм с элементами барнхаус

Встречайте новый проект! Начало строительства уже через две недели) Буду по возможности оперативно освещать процесс и выкладывать репортажные материалы. Проект выполнен в стиле минимализм с элементами барнхаус. Основные ТЭП: - площадь 1 этажа - 92,15 м2 - площадь 2 этажа - 76,09 м2 - общая площадь - 168,24 м2 - количество спальных комнат — 4 - на 1 этаже размещены: спальня родителей + проходная гардеробная хозяев, холл-прихожая, кухня-столовая-гостиная, банный узел с сауной, котельная, гостевой санузел, крытая терраса. - на 2 этаже: три спальных комнаты, лестничный холл, санузел, холл-кабинет (или спальная комната)с каминной зоной и выходом на эксплуатируемую зеленую кровлю. Конструктив: - фундаменты - монолитная лента по сваям, полы по грунту с термоотсечкой и системой теплый пол. - несущие стены 1 и 2 этажей - газосиликатный блок 300 мм. М500 с утеплением 150 мм. - перекрытие - монолитная ЖБ плита 200 мм. - материалы кровли - СИП-панели 150 мм. по силовому каркасу. - витражи - алюм

Встречайте новый проект! Начало строительства уже через две недели)

Больше фото и планировки в конце публикации
Больше фото и планировки в конце публикации

Буду по возможности оперативно освещать процесс и выкладывать репортажные материалы.

Проект выполнен в стиле минимализм с элементами барнхаус.

Основные ТЭП:

- площадь 1 этажа - 92,15 м2

- площадь 2 этажа - 76,09 м2

- общая площадь - 168,24 м2

- количество спальных комнат — 4

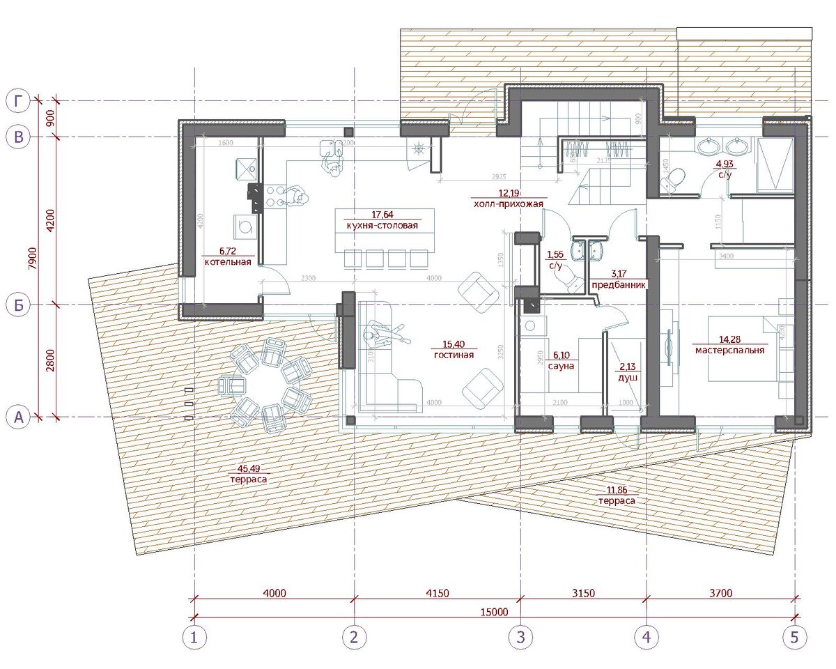
- на 1 этаже размещены: спальня родителей + проходная гардеробная хозяев, холл-прихожая, кухня-столовая-гостиная, банный узел с сауной, котельная, гостевой санузел, крытая терраса.

- на 2 этаже: три спальных комнаты, лестничный холл, санузел, холл-кабинет (или спальная комната)с каминной зоной и выходом на эксплуатируемую зеленую кровлю.

План 1 этажа
План 1 этажа
План 2 этажа
План 2 этажа

Конструктив:

- фундаменты - монолитная лента по сваям, полы по грунту с термоотсечкой и системой теплый пол.

- несущие стены 1 и 2 этажей - газосиликатный блок 300 мм. М500 с утеплением 150 мм.

- перекрытие - монолитная ЖБ плита 200 мм.

- материалы кровли - СИП-панели 150 мм. по силовому каркасу.

- витражи - алюминиевая система «АЛЮТЕХ».

- отделка фасадов - система «мокрый фасад» Ceresit, цементно-песчаная черепица Braas, фасадная доска из термодерева.

-4
-5
-6
-7
-8
-9
-10
-11
-12

Инженерное оснащение:

- отопление — газовый конденсационный одноконтурный котел, система «теплый пол», внутрипольные конвекторы с принудительной конвекцией от системы вентиляции, система «водяная теплая стена». Тепловой аккумулятор на 1,5 м3, Резервный источник отопления — электрокотел.

- вентиляция — модульная приточно-вытяжная установка с зональным распределением, датчиком СО2 и автоматическим регулированием притока-вытяжки в соответствии с меняющимися параметрами.

- Электроснабжение — трехфазное питание по I и II категории через стабилизатор напряжения и ИБП.

- Водоснабжение — из скважины на участке. Система водоочистки с аэрацией.

- Канализация хозбытовая — две раздельные системы локальной биоочистки для фекальной линии и хим-хозбытовой.

- Наружное освещение — светодиодные ленты и софиты с «теплым светом» системой автоматического включения в режимах «охрана» и «датчик освещенности».

- Система наружного видеонаблюдения.

- Система доступа «электронный дворецкий»

Общий бюджет строительства под ключ, включая инженерные системы — 10 млн.руб.