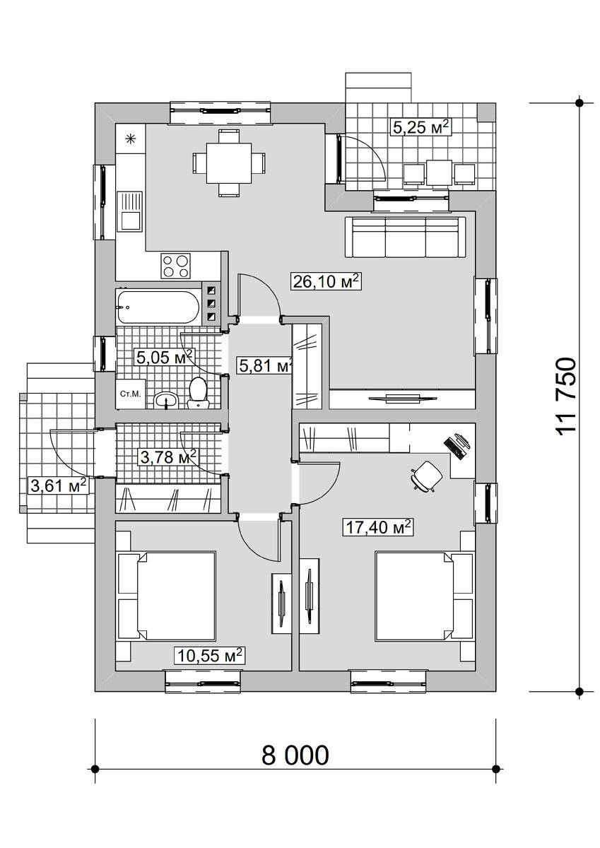
Привет! Основная задача, которую будет решать этот дом - смена городской 2-х комнатной квартиры на загородное жилье. Заказчики - молодая семья из 3-х человек без опыта проживания в частном доме. Главное - бюджет, надежность, функциональность. Ширина дома 8 метров, что позволяет разместить его на узком участке, как в данном случае. Дом относительно узки и немного вытянут в глубь участка. Вход в дом с бокового фасада. Крыльцо с выходом на 2 стороны. Планировочное решение в духе современных тенденций. Кухня-гостиная с выходом на небольшую террасу, совмещенный санузел, тамбур, детская комната и комната родителей 17,4 кв.м. где важно было разместить и полноценное рабочее место. У дома обычная двускатная крыша с небольшим свесом. Окна с заниженными подоконниками, кроме окна на кухне, оно на уровне столешницы и окно санузла. Конструктивно все просто, надежно и экономично. Стены - газоблок+кирпич, перегородки - также газобетон. Основная функция террасы - собраться с мыслями и выпить чашку к
