Найти в Дзене

Апартаменты в стиле американской неоклассики.

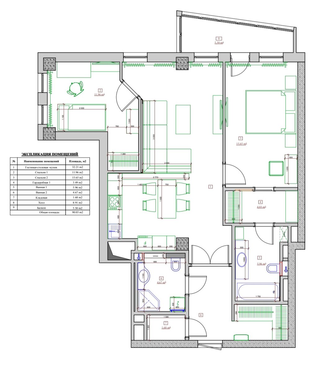
Апартаменты в новом жилом комплексе задумывались ,как сложное в эстетическом плане пространство с эклектичной стилистикой дизайна. Много внимание уделено контрастным элементам отделки интерьера в арт-деко, которые задают акценты и позволяют развернуть красивые цветовые сочетания ,построенные на широкой палитре фактур и цветов- от белого, до серебрито- серого и контрастного черного. В интерьере много дерева ,фактура ореха , латунные вставки и черный полированный камень — эти сочетания всегда ассоциируются с респектабельностью и подчеркивают высокий статус объекта . Планировка подчеркнуто выверенная , гардеробные и общий санузел расположены возле входной зоны - ближе к окнам скомпонованы пространства детской комнаты ,гостиная и спальня.Из спальни можно попасть в ванную комнату через гардеробную ,отдельный санузел расположен в холле. Пространства коридоров сведены к нулю.​ Кухня в современной стилистике ,с лаковыми фасадами и шкафами в шпоне американского ореха ,расположена в нише и зон

Апартаменты в новом жилом комплексе задумывались ,как сложное в эстетическом плане пространство с эклектичной стилистикой дизайна.

План с мебелью
План с мебелью

Много внимание уделено контрастным элементам отделки интерьера в арт-деко, которые задают акценты и позволяют развернуть красивые цветовые сочетания ,построенные на широкой палитре фактур и цветов- от белого, до серебрито- серого и контрастного черного. В интерьере много дерева ,фактура ореха , латунные вставки и черный полированный камень — эти сочетания всегда ассоциируются с респектабельностью и подчеркивают высокий статус объекта .

-2

Планировка подчеркнуто выверенная , гардеробные и общий санузел расположены возле входной зоны - ближе к окнам скомпонованы пространства детской комнаты ,гостиная и спальня.Из спальни можно попасть в ванную комнату через гардеробную ,отдельный санузел расположен в холле. Пространства коридоров сведены к нулю.​ Кухня в современной стилистике ,с лаковыми фасадами и шкафами в шпоне американского ореха ,расположена в нише и зонировна барной стойкой из искусственного камня.

-3

На фартуке кухне использована плитка из новой коллекции в стиле арт-деко ,золотые геометрические​ элементы служат изящным акцентом интерьера.

Контрастные черно- белые сочетания белого и серного полированного мрамора смягчены

цветными включениями текстильных элементов — подушек и штор. Черно -белые фотографии всегда актуальны -придают верную , интеллигентную интонацию пространству гостиной.

-4

Большое внимание уделено светильникам , люстры выбраны очень смелых очертаний - их стройные ,удлиненные пропорции задают вертикали искрящегося стекла ,

служат главными акцентами пространства.

Шкафы выполнены под заказ -многие геометрические моменты отделки можно проследить и в других частях помещения -это и завершающие элементы дверей и карнизы, книжные полки​ закрыты тонированным стеклом в латунных рамах .на нижней полке под экраном телевизора применена кожаная отделка с прострочками ромбом.

-5

Обозначен комплексный подход к проектирование всей визуальной среды.

Двери -отличаются интересным смелым радиальным декором и патинированными широкими порталами. На полах применен контрастный мрамор и широкая инженерная доска с фактурой ореха.

Спальня решены в темный тонах с благородными оттенками латуни и прокрашенного​ в массе стекла на светильниках . Отделка стены мягкими панелями с раскладками — придает спальне уют и законченность ,прекрасно корелирует с элементами мебели и темным деревом.

Ковер выбран с монохромным строгим рисунком . Полукруглые подборы штор смягчают геометрию интерьера и придают мягкость. Весь дизайн спальни построен на сближенных тонах

текстили , замши​ и тонких шерстяных тканей.

Дизайн пространства со смелыми ,эстетически выверенными декоративными находками

получился замоминающимся и ярким ,полностью соответствующим высокому статусу объекта.

-6