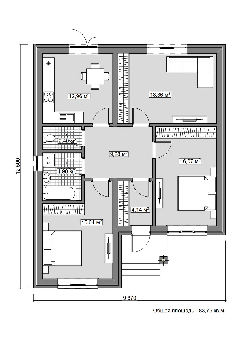
Всем привет! Делюсь эскизом одноэтажного домика для небольшой семьи. Основные пожелания заказчика: 2 большие спальни, изолированная кухня с выходом на задний двор, изолированная гостиная, раздельный санузел. В общем, в доме соблюдены все традиционные ценности национального быта: все в отдельных помещениях. Каждому по комнате. От технического помещения отказались, так как инженерное оборудование разместится на кухне. Гардеробной в отдельном помещении тоже нет, однако площадь спален позволит разместить системы хранения непосредственно в них. Такое планировочное решение выгодно отразилось на главном фасаде дома, в которое вполне удачно вписалось и крыльцо. Еще из особенностей - большие окна в спальнях с заниженными подоконниками и многоскатная крыша. Такой дом отлично подойдет для взрослой пары...детей вырастили, теперь можно пожить и для себя, как говорится))) В спальнях такой площади с комфортом можно разместить и рабочий стол и большую кровать, и вместительный гардероб. У каждого с
