Добавить в корзинуПозвонить
Найти в Дзене
Мечтаево

Выбираем стиль для загородного дома (часть вторая) - хай-тек и классика.

Недавно мы рассказывали о наших домах, спроектированных в различных архитектурных стилях. Так как нам не хватает одной статьи, чтобы раскрыть эту тему, мы решили сделать вторую часть, где мы освятим новые стили для загородных домов. Ну что, начнем? Каркасный дом в стиле хай-тек Хай-тек появился в конце 20 века и стал лидирующим модернистским направлением во всех видах искусства и архитектуры того времени. Его характерными чертами являются геометризм, широкое использование стекла и металла, монолитность внешнего облика и прагматизм. Наши архитекторы решили воплотить основные черты хай-тека в проекте "Магистр", где сочетаются каноны этого стиля и современное представление об идеальном доме. Параметры проекта: Размер: 13,5x18,4 м. Общая площадь: 234 м2 Кол-во этажей: 2 шт. Проект можно построить по любой технологии: каркасной, каменной или комбинированной. В любом исполнении этот дом будет выглядеть ярко благодаря панорамным окнам, отделке белоснежной штукатуркой, деревянной облицовке и
Оглавление
Недавно мы рассказывали о наших домах, спроектированных в различных архитектурных стилях. Так как нам не хватает одной статьи, чтобы раскрыть эту тему, мы решили сделать вторую часть, где мы освятим новые стили для загородных домов. Ну что, начнем?

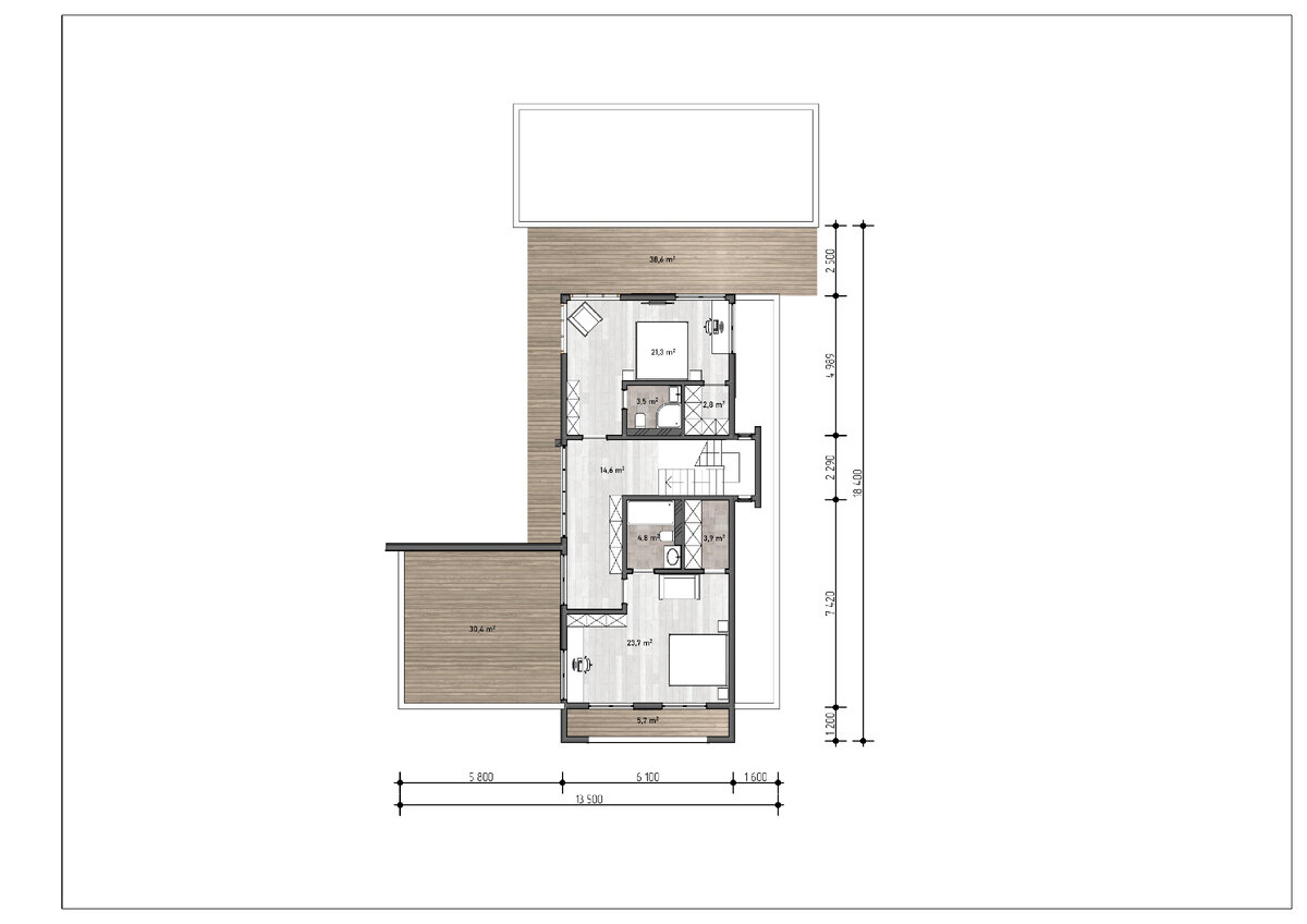
Каркасный дом в стиле хай-тек

Хай-тек появился в конце 20 века и стал лидирующим модернистским направлением во всех видах искусства и архитектуры того времени. Его характерными чертами являются геометризм, широкое использование стекла и металла, монолитность внешнего облика и прагматизм.

Наши архитекторы решили воплотить основные черты хай-тека в проекте "Магистр", где сочетаются каноны этого стиля и современное представление об идеальном доме.

Параметры проекта:

Размер: 13,5x18,4 м.

Общая площадь: 234 м2

Кол-во этажей: 2 шт.

Проект можно построить по любой технологии: каркасной, каменной или комбинированной. В любом исполнении этот дом будет выглядеть ярко благодаря панорамным окнам, отделке белоснежной штукатуркой, деревянной облицовке и темным цветовым акцентам.

Планировка дома предусматривает светский образ жизни: с приемом гостей, шумными вечеринками и барбекю на выходных. Для этого на первом этаже есть большая кухня-гостиная, гостевая спальня, два санузла и большие террасы.

Второй этаж - две мастер-спальни с гардеробной и санузлом. Из каждой спальни есть выход на балкон, где также возможно оборудовать зону отдыха.

Отдельное внимание в проекте было уделено зонам для хранения - здесь они есть на каждом этаже.

Каркасный дом в классическом стиле

А закончить эту подборку хотелось бы классическим стилем, который актуален в любое время. Простые формы, базовые акценты, универсальность и стильное оформление - все это о классическом проекте "Санрайз".

Облик проекта выполнен во всех оттенках серого. За основной цвет фасада отвечает светлая штукатурка, на фоне которой выгодно выделяются элементы из декоративного серого кирпича. Чтобы дом не выглядел просто, архитекторы усложнили стропильную систему, которая теперь держит витиеватую крышу из металлочерепицы цвета мокрого асфальта.

Параметры проекта.

Размер: 10,8x11,5 м.

Общая площадь: 178.5 м2

Кол-во этажей: 2 шт.

Планировка дома базовая: первый этаж с огромной кухней-гостиной, жилой комнатой, которую можно использовать, как спальню или кабинет, и санузел. Второй этаж - четыре спальни и санузел.

Также в проекте предусмотрена компактная терраса.

Мы обязательно расскажем о новых проектах и стилях, к которым они относятся. Если вам интересны такие подборки - обязательно пишите в комментариях.

И расскажите, какой проект вам понравился больше :)

📝 Каталог каркасных домов (от классики до авангарда) 📝

📲 Бесплатный расчет стоимости дома вашей мечты 📲

Подписывайтесь на наш дзен-канал! Ищите информацию о строительстве и не знаете, как выбрать технологию? Вам точно необходима консультация! Звоните 8-495-660-83-34!