Найти в Дзене
Филдс

Не просто скандинавский стиль, а настоящий норвежский нордик: дизайнер оформила типовую двушку 60 м² для молодой семьи

Дизайнер Юлия Карпухина оформила двухкомнатную квартиру 60 м² для молодой семьи с ребёнком. Интерьер выполнили в стиле норвежский нордик, это ответвление сканди. В отличие от белоснежного скандинавского стиля, он предполагает более насыщенные цвета. Планировка Гостиная В отделке гостиной скомбинировали краску и 3D-панели из колотого дерева, на пол уложили инженерную доску из дуба. Серая стена с молдингами перекликается с велюровым диваном напротив. Стеклопакеты и радиатор также поддерживают общую цветовую палитру. Спальня Спальню отгородили стеклянными перегородками со шторой. Стену в изголовье оформили теми же панелями из колотого дерева, что и в гостиной. На смежной стене — обои с рисунком гор. Кухня Кухонный гарнитур расположили Г-образно. В фасадах сочетали фактуры дерева, бетона и белый глянец. Антресоли под потолком позволили увеличить объём мест для хранения. Детская Детская предназначается для ребёнка-дошкольника. Сдержанные тона в отделке позволят легко адаптировать инт
Оглавление

Дизайнер Юлия Карпухина оформила двухкомнатную квартиру 60 м² для молодой семьи с ребёнком. Интерьер выполнили в стиле норвежский нордик, это ответвление сканди. В отличие от белоснежного скандинавского стиля, он предполагает более насыщенные цвета.

  • Общая площадь: 60 м²
  • Тип дома: ИП46М
  • Высота потолка: 2,61 м
  • Количество комнат: 2
  • Бюджет: 5,1 млн рублей
  • Кто здесь живет: семья с ребёнком
  • Дизайнер: Юлия Карпухина
  • Фото: Евгений Гнесин
  • Стилист: Евгения Мельникова

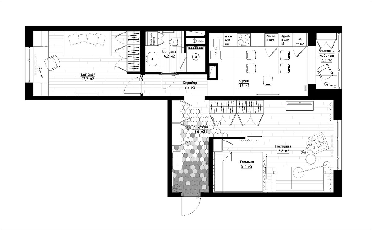
Планировка

В типовой двушке требовалось обустроить несколько функциональных зон: гостиную, спальню, детскую и рабочий кабинет. Решили поставленную задачу посредством перепланировки. Место для спальни удалось выделить в гостиной: для этого пожертвовали кладовой и частью прихожей, вторую комнату отвели под детскую. Лоджию утеплили и присоединили к кухне, чтобы организовать рабочее место.
В типовой двушке требовалось обустроить несколько функциональных зон: гостиную, спальню, детскую и рабочий кабинет. Решили поставленную задачу посредством перепланировки. Место для спальни удалось выделить в гостиной: для этого пожертвовали кладовой и частью прихожей, вторую комнату отвели под детскую. Лоджию утеплили и присоединили к кухне, чтобы организовать рабочее место.

Гостиная

В отделке гостиной скомбинировали краску и 3D-панели из колотого дерева, на пол уложили инженерную доску из дуба. Серая стена с молдингами перекликается с велюровым диваном напротив. Стеклопакеты и радиатор также поддерживают общую цветовую палитру.

Спальня

Спальню отгородили стеклянными перегородками со шторой. Стену в изголовье оформили теми же панелями из колотого дерева, что и в гостиной. На смежной стене — обои с рисунком гор.

Кухня

Кухонный гарнитур расположили Г-образно. В фасадах сочетали фактуры дерева, бетона и белый глянец. Антресоли под потолком позволили увеличить объём мест для хранения.

Детская

Детская предназначается для ребёнка-дошкольника. Сдержанные тона в отделке позволят легко адаптировать интерьер по мере взросления мальчика. Одну стену оклеили обоями с изображением горных пиков, они схожи с полотнами в родительской спальне.

Прихожая

«Грязную» зону в прихожей выделили плиткой-гексагон. Стык с инженерной доской удалось оформить без порожка. На входе в гостиную разместили пару вместительных шкафов, их зеркальные фасады визуально увеличивают пространство и отражают больше света в прихожую.

Санузел

Изначально раздельный санузел объединили. Для отделки использовали керамогранит, имитирующий природные фактуры — дерево и камень. Особенно выделяется зона душевой, оформленная под мрамор. Чёрная сантехника, светильники и аксессуары придают контрастности. Тумба под раковину скрывает стиральную машину.

Подпишись на канал Филдс, чтобы первым видеть новые публикации. Интересные мнения в комментариях приветствуются. Если материал понравился — ставь лайк!

Facebook, Instagram, Вконтакте