Найти в Дзене
Проектная мастерская №16

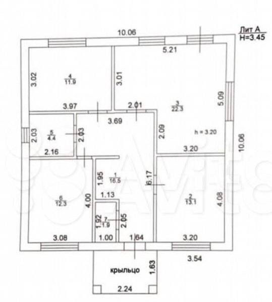
Два варианта планировки небольшого одноэтажного дома на 84кв.м.

Посетителям канала Проектной мастерской №16 желаем доброго времени года и удачного прощания с январем 22 года! Сегодня вашему вниманию представляем планировку одноэтажного дома площадью 84кв.м. в двух вариантах, где отсутствие второго санузла компенсируется площадью спален. Можете посмотреть, как этот дом выглядит снаружи В доме имеются три спальных комнаты, совмещенные гостиная и кухня, небольшая кладовая при входе и ниша для гардеробного шкафа, санузел. Так же можете посмотреть пару фото изнутри дома ПМ№16 - индивидуальный подход к каждому клиенту Мы строим свою работу на индивидуальном подходе к каждому клиенту. Специалисты ПМ №16 учтут все особенности местности, ваши личные пожелания и предложения и адаптируют разработку к существующим условиям. При необходимости мы сможем внести изменения в проект по ходу строительства. ПМ №16 имеет все ресурсы не только для создания проекта, но и для воплощения его в жизнь. При необходимости, мы сопроводим проект и на стадии организации строитель

Посетителям канала Проектной мастерской №16 желаем доброго времени года и удачного прощания с январем 22 года!

Сегодня вашему вниманию представляем планировку одноэтажного дома площадью 84кв.м. в двух вариантах, где отсутствие второго санузла компенсируется площадью спален.

Можете посмотреть, как этот дом выглядит снаружи

В доме имеются три спальных комнаты, совмещенные гостиная и кухня, небольшая кладовая при входе и ниша для гардеробного шкафа, санузел.

Так же можете посмотреть пару фото изнутри дома

ПМ№16 - индивидуальный подход к каждому клиенту

Мы строим свою работу на индивидуальном подходе к каждому клиенту. Специалисты ПМ №16 учтут все особенности местности, ваши личные пожелания и предложения и адаптируют разработку к существующим условиям. При необходимости мы сможем внести изменения в проект по ходу строительства.

ПМ №16 имеет все ресурсы не только для создания проекта, но и для воплощения его в жизнь. При необходимости, мы сопроводим проект и на стадии организации строительства. Также мы всегда можем рекомендовать строительные компании, дизайнеров интерьера и ландшафта, а также других специалистов по обеспечению комфорта и безопасности вашего дома.

Официальный сайт Проектной мастерской №16

Канал Проектной мастерской №16 на Дзене

Канал Проектной мастерской №16 на Ютюбе

Страница Проектной мастерской №16 во Вконтакте

Страница Проектной мастерской №16 в Инстаграме

Страница Проектной мастерской №16 на Яндекс-бизнесе

Страница Проектной мастерской №16 на сайтах Вконтакте