Добавить в корзинуПозвонить
Найти в Дзене
Проектная мастерская №16

Еще одна планировка одноэтажного дома, которая всем понравится - здесь гостиная и кухня разделены откатными дверьми

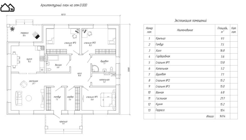
Одноэтажный дом площадью 149кв.м. , где 130кв.м. дом и еще 20 - это крыльцо и терраса.
Стоимость проекта - 22500р.
Стоимость строительства в черновом варианте - 4.17млн.р.
Стоимость строительства в предчистовом варианте - 5.22млн.р. Архитектурное решение
Фасад дома выполнен керамическим лицевым кирпичом 1.4НФ, солома-шоколад. Входная группа дома встречает крыльцом под навесом на двух кирпичных столбах, которое при желании можно уменьшить с целью сокращения общей площади дома. Далее переходим в тамбур - прихожую, где одновременно смогут переодеться все члены семьи. И далее переходим в просторный холл, через который осуществляется функциональная связь помещений в доме. Рядом с тамбуром расположилась гардеробная, далее идеть дверь в хозяйскую спальню, напротив которой находятся две детские комнаты. Между ними расположились ванная и душевая комнаты и помещение котельной. В левом крыле здания расположились гостиная и кухня. Они разделены откатными дверьми, так чтобы были решены задачи при

Одноэтажный дом площадью 149кв.м. , где 130кв.м. дом и еще 20 - это крыльцо и терраса.

Стоимость проекта - 22500р.
Стоимость строительства в черновом варианте - 4.17млн.р.
Стоимость строительства в предчистовом варианте - 5.22млн.р.

Архитектурное решение
Фасад дома выполнен керамическим лицевым кирпичом 1.4НФ, солома-шоколад. Входная группа дома встречает крыльцом под навесом на двух кирпичных столбах, которое при желании можно уменьшить с целью сокращения общей площади дома. Далее переходим в тамбур - прихожую, где одновременно смогут переодеться все члены семьи. И далее переходим в просторный холл, через который осуществляется функциональная связь помещений в доме. Рядом с тамбуром расположилась гардеробная, далее идеть дверь в хозяйскую спальню, напротив которой находятся две детские комнаты. Между ними расположились ванная и душевая комнаты и помещение котельной. В левом крыле здания расположились гостиная и кухня. Они разделены откатными дверьми, так чтобы были решены задачи при необходимости иметь общий объем и избежать распространение запахов из кухни. Из кухни имеется выход на террасу.

Конструктивное решение
Фундамент дома - железобетонный монолитный ленточный на коротких сваях. Стены дома выполнены по двухслойной системе с наружным слоем из керамического лицевого кирпича 1.4НФ,  внутренним слоем из газоблока D400 толщиной 400мм. Общая толщина наружной стены - 550мм. Полы выполнены по ж/б плитам перекрытия. Чердачное перекрытие - по деревянным балкам. Крыша - металлочерепица по деревянной стропильной системе. Возможны другие варианты конструктивных решений по согласованию с заказчиком.

Понравилась планировка - добавь в избранное. Хочешь заказать проект? Пиши на ватсап +79047122103

Другие варианты планировок жду вас на наших страницах в Сети:

Официальный сайт Проектной мастерской №16

Канал Проектной мастерской №16 на Дзене

Канал Проектной мастерской №16 на Ютюбе

Страница Проектной мастерской №16 во Вконтакте

Страница Проектной мастерской №16 в Инстаграме

Страница Проектной мастерской №16 на Яндекс-бизнесе

Страница Проектной мастерской №16 на сайтах Вконтакте