Найти в Дзене
ArchDesign-live

Мансардный дом 88 кв.м.

Привет всем! Сегодня рассмотрим очень компактный и довольно вместительный мансардный дом. Преимущество этого дома - это очень небольшое пятно застройки в 60 кв.м. Подобный дом отлично разместится на небольшом участке с соблюдением нормативных отступов, разумеется... Рассмотрим планировочное решение: На первом этаже располагается кухня-гостиная с выходом на террасу, комната для гостей, совмещенный санузел, тамбур и холл. На втором - 3 спальни, ванная комната и холл. На главном фасаде расположилось крыльцо, справа - навес для автомобиля. Задний фасад дома дополняет терраса площадью 14 кв.м., вход на которую осуществляется из кухни-гостиной. Для освещения лестничной клетки и холла 2-го этажа предлагается установить мансардное окно. Конструктивно дом очень прост. В данном случае стены и перегородки из газобетонных блоков, а межэтажное перекрытие - монолитная железобетонная плита. Инженерное оборудование будет расположено на кухне. Вот таким образом, застраивая всего 66 кв.м., можно получ

Привет всем!

Сегодня рассмотрим очень компактный и довольно вместительный мансардный дом.

Преимущество этого дома - это очень небольшое пятно застройки в 60 кв.м. Подобный дом отлично разместится на небольшом участке с соблюдением нормативных отступов, разумеется...

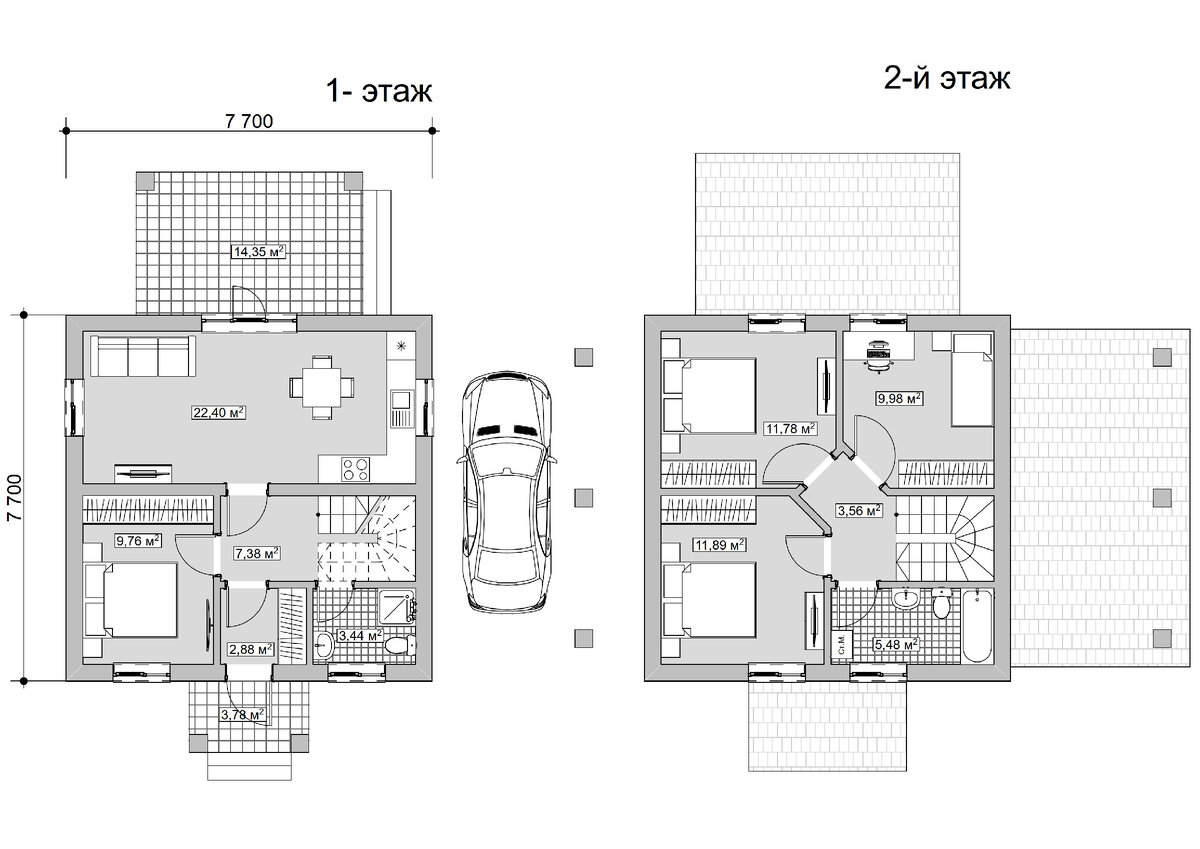
Рассмотрим планировочное решение:

Общая площадь помещений дома- 88 кв.м.
Общая площадь помещений дома- 88 кв.м.

На первом этаже располагается кухня-гостиная с выходом на террасу, комната для гостей, совмещенный санузел, тамбур и холл.

На втором - 3 спальни, ванная комната и холл.

Дом 88 кв.м.
Дом 88 кв.м.

На главном фасаде расположилось крыльцо, справа - навес для автомобиля.

Дом 88 кв.м.
Дом 88 кв.м.

Задний фасад дома дополняет терраса площадью 14 кв.м., вход на которую осуществляется из кухни-гостиной.

Дом 88 кв.м.
Дом 88 кв.м.

Для освещения лестничной клетки и холла 2-го этажа предлагается установить мансардное окно.

Конструктивно дом очень прост. В данном случае стены и перегородки из газобетонных блоков, а межэтажное перекрытие - монолитная железобетонная плита.

Инженерное оборудование будет расположено на кухне.

Вот таким образом, застраивая всего 66 кв.м., можно получить 88 кв.м. полезной площади дома.

Если понравилось, ставьте лайк и подписывайтесь!

Переходите ко мне на канал в Яндекс Дзен, и оценивайте другие мои проекты.

Возможно, вам что-то и пригодится.

Всех благодарю за внимание!