Найти в Дзене

Квартира в классическом дизайне - жк"Адмирал"

Квартира выполнена в традиционно-классических решениях, в достаточно сдержанной стилистике — с преобладанием светло-бежевых и оливковых тонов. Главными отправными точками при создании данного интерьера , было желание получить максимально уютный и одновременно изящный интерьер ,с традиционными для франции белыми балконными дверями и изящными потолками. Интересным дополнением является присоединение к площади гостиной пространства достаточно обширного балкона -выполненного в общей стилистике квартиры, с мраморными полами ,с темными квадратами и оригинальными римскими шторами.

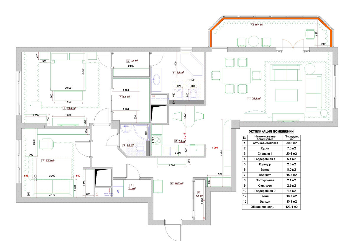
План
План

С размещением мебели.

Продуманное планировочное решение квартиры замечательно использует все пространственные ресурсы. На месте кухни обустроен просторный кабинет, имеется два санузла и кладовая. В отделочных материалах основой являются светлые оттенки дубового художественного паркета с декоративными вставками и изящные светлые обои.

Кабинет
Кабинет
Кабинет.
Кабинет.

Тона мебели максимально высветлены -тонкие сближенные цветовые переходы — гармонично собраны в единую благородную композицию , полную спокойного уюта и гармонично- сдержанную. Вновь образованные проемы на балкон( осуществлен вынос подоконной зоны ) обрамлены ампирными пилястрами-багетами, могие элементы декора соответствуют эпохе Наполеона 3. С достаточно эклектичными но декоративно выдержанными решениями. Хорошая освещенность гостиной -было желанием хозяйки дома -тем более , что по изначальной планировки квартиры, гостиная должна была находится на месте спальне, где солнечного света было явно​ недостаточно.

Благодаря присоединенной лоджии удалось максимально наполнить светом постранство гостиной -выделить обеденную зону , а кухня распололожилась в непосредственной близости от столовой на территории избыточно просторного холла.

Спальное помещение вынесено в отдельную зону квартиры и через помещение гладильной сообщается с ванной комнатой. В декорировании спальни активно применяются молдинги -с разнообразной комбинациями декоров -вставками обоев и зонами прокрасов финишными красками. Небольшой балдахин служит скорее мягкой драпировкой стены -создающий уютную​ зону.​ Палевые и бежевые оттенки мягко оттеняют молочно белое изголовье кровати

с приставной банкеткой. В полах променен модульный- нарочито состаренный паркет.

Спальня
Спальня

Помещение кабинета полностью выполнено в фактуре ореха с заказными элементами под размеры ниш​ и карнизом аналогичного​ тона​ в потолке. Кроме уютной зоны дивана -обрамленного книжными полками , нашлось место и для шкафа для одежды.

В прихожей выстроена композиция с лаконичными ступенчатыми потолками и прямоугольной композицией в полу.

Гармоничная, хорошо композиционно продуманная квартира -подчеркнута элегантна и строга в декоративных, традиционно-классических решениях.

Гостиная
Гостиная
Гостиной.
Гостиной.
Холл.
Холл.