Добавить в корзинуПозвонить
Найти в Дзене

3 проекта одноэтажных домов с 3 спальнями (одна из которых - мастер-спальня)

Предлагаем Вам подборку проектов одноэтажных домов с 3 спальнями, одна из которых является мастер-спальней. Главная спальня, как правило, принадлежит старшим членам семьи, включает в себя собственную гардеробную и санузел с ванной и является своеобразной мини-квартирой внутри дома, обеспечивая хозяевам дома индивидуальное пространство для уединения. Строительство одноэтажных домов ведется из газобетона. Проекты имеют прямое (на изображениях ниже) и зеркальное отображение. ⬆⬆ Проект одноэтажного дома 336А «Витамин», 137 м2 Гостевое пространство в этом компактном доме объемное и очень светлое. Кухня удобная и имеет вход в тех.помещение. Уютная зона домашнего кинотеатра расположена напротив углового камина. Мастер-спальня - наибольшая из трех приватных комнат (общая площадь ее помещений более 28 м2). ⬆⬆ Проект одноэтажного дома 639А «Покровка», 150 м2 В этом рациональном проекте зона совместного прибывания отделена от приватной части. Спальни объединены вокруг просторного холла. Окна ма
Оглавление

Предлагаем Вам подборку проектов одноэтажных домов с 3 спальнями, одна из которых является мастер-спальней. Главная спальня, как правило, принадлежит старшим членам семьи, включает в себя собственную гардеробную и санузел с ванной и является своеобразной мини-квартирой внутри дома, обеспечивая хозяевам дома индивидуальное пространство для уединения.

Строительство одноэтажных домов ведется из газобетона. Проекты имеют прямое (на изображениях ниже) и зеркальное отображение.

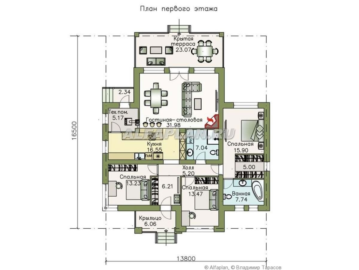
⬆⬆ Проект одноэтажного дома 336А «Витамин», 137 м2

Гостевое пространство в этом компактном доме объемное и очень светлое. Кухня удобная и имеет вход в тех.помещение. Уютная зона домашнего кинотеатра расположена напротив углового камина. Мастер-спальня - наибольшая из трех приватных комнат (общая площадь ее помещений более 28 м2).

⬆⬆ Проект одноэтажного дома 639А «Покровка», 150 м2

В этом рациональном проекте зона совместного прибывания отделена от приватной части. Спальни объединены вокруг просторного холла. Окна мастер-спальни выходят на главный фасад. Две равновеликие детские спальни являются смежными и расположены напротив. В приватной зоне предусмотрена также постирочная.

⬆⬆ Проект одноэтажного дома 667А «Ангара», 183 м2

Стильный современный коттедж с просторной гостиной с панорамным остеклением, вокруг которой расположены спальные комнаты. Кроме просторной мастер-спальни с вместительным гардеробом и ванной комнатой с джакузи, в доме еще две жилых комнаты (кабинет также может выполнять роль спальни). Этот вариант с отдаленной родительской спальней больше подойдет для семьи со взрослыми детьми.

В отделке фасадов домов применены материалы различных фактур: кирпич, штукатурка, дерево, искусственный камень. Кровля - битумная или натуральная черепица.

Подробности и заказ проектов по ссылкам:

336А «Витамин», 639А «Покровка», 667А «Ангара».

Все варианты одноэтажных домов из нашего каталога Вы найдете здесь.

Поделитесь мнением о наших проектах домов и расскажите о них друзьям. Подписывайтесь на наш канал Яндекс ДЗЕН. У нас – только уникальные авторские проекты домов. Еще больше интересных постов в нашем Telegram, VK, FB.

«ОДИН-в-ОДИН» - более 200 проектов с фото реализованных строительством домов под ключ по проектам Альфаплан. «Фото построенных домов» – более 450 фотогалерей строительства домов по нашим проектам.

#загородный дом #одноэтажный дом #проект под ключ #планировка #проект одноэтажного дома #строительство домов #проекты домов #архитектура #проектирование #строим дом