Найти в Дзене

Дом с эффектным экстерьером и грамотной планировкой. Проект для тех кто ищет уютный дом для небольшой семьи

Добрый день! Представляем вашему вниманию проект N-133, выполненный в современном фермерском стиле. Начнем с того, что крыша двухскатная, из гибкой кровли. Стропила деревянные, перекрытия из монолитных блоков. Стены и фундамент укреплены железной арматурой и построены из бетонных блоков. Внешние стены покрыты гладкой белой штукатуркой. Несущие колонны и фундамент облицованы декоративным кирпичом, покрашенного, как и стены в белый цвет. Терраса и ступени из серых бетонных плит. Окна и двери из пластика, цвета орех. Окна в основном панорамные. Гараж выстроен в дом, имеет автоматические двери. Планировочные решения проекта N-133 А теперь зайдемте в дом. Заходим в маленькую прихожую площадью в 1,01 кв.м., по правую сторону туалет равной. Идем дальше и опять направо открывается дверь в прачечную с двумя большими стиральной и сушилкой. Выходим в коридор, и сразу же заходим в огромную гостиную. Первое, что мы видим, это большой стол посередине с шестью стульями. Дальше за ней зона отдыха, сос
Оглавление

Добрый день! Представляем вашему вниманию проект N-133, выполненный в современном фермерском стиле.

Начнем с того, что крыша двухскатная, из гибкой кровли. Стропила деревянные, перекрытия из монолитных блоков. Стены и фундамент укреплены железной арматурой и построены из бетонных блоков. Внешние стены покрыты гладкой белой штукатуркой. Несущие колонны и фундамент облицованы декоративным кирпичом, покрашенного, как и стены в белый цвет. Терраса и ступени из серых бетонных плит. Окна и двери из пластика, цвета орех. Окна в основном панорамные. Гараж выстроен в дом, имеет автоматические двери.

Планировочные решения проекта N-133

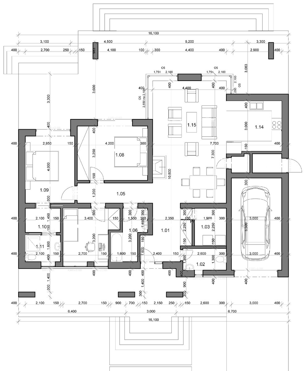
Планировка этажа - Проект дома - N-133
Планировка этажа - Проект дома - N-133

А теперь зайдемте в дом. Заходим в маленькую прихожую площадью в 1,01 кв.м., по правую сторону туалет равной. Идем дальше и опять направо открывается дверь в прачечную с двумя большими стиральной и сушилкой. Выходим в коридор, и сразу же заходим в огромную гостиную. Первое, что мы видим, это большой стол посередине с шестью стульями. Дальше за ней зона отдыха, состоящая из большого дивана и четырех кресел. Посередине, между ними стоит журнальный столик. За диваном начинается зона кухни. Она обустроена встроенной кухней и мраморными столешницами. В рабочей зоне кухни имеется дверь, ведущая в кладовку для хранения запаса пищи и ненужной кухонной утвари. Рядом с кладовкой имеется склад, он не имеет выхода во внутрь дома, а выходит на террасу позади гаража. Там хранятся различные хозяйственные принадлежности для работы в саду и с машинами.

Выйдем из гостиной в коридор и продолжим путешествие по дому. Направо по коридору заходим в гостевую спальню. За ней идет другая спальня. Она в отличие от гостевой спальни имеет свою гардеробную и ванную с санузлом комнаты. За ней идет детская спальня с раздвижным диваном, рабочим местом и спортинвентарем. Дальше ее продолжает вместительная ванная комната с шикарной душевой и санузел.

Ознакомится с ценой и комплектацией можно на сайте -->>

Если вам понравился проект, и вам нужна стоимость строительства или стоимость проекта, переходите на сайт, оставляйте заявку или связывайтесь с нашими менеджерами.

Наши проекты которые могут Вам понравится:

Роскошный проект дома в современном стиле. Дом с высоким уровнем функциональности и комфорта

Грамотный проект дома класса люкс. Проект для тех, кто ищет дом для большой семьи

Грамотный проект дома класса люкс 240 м2. Дом для загородной жизни со столичным комфортом

Понравился ли Вам проект? Ставьте палец вверх, пишите свои мысли в комментариях. Подписывайтесь на наш канал, у нас много интересных проектов!!!