Найти в Дзене

13-95 - Проект скандинавского двухэтажного дома, площадью 100м². Подойдёт в качестве летнего дачного дома.

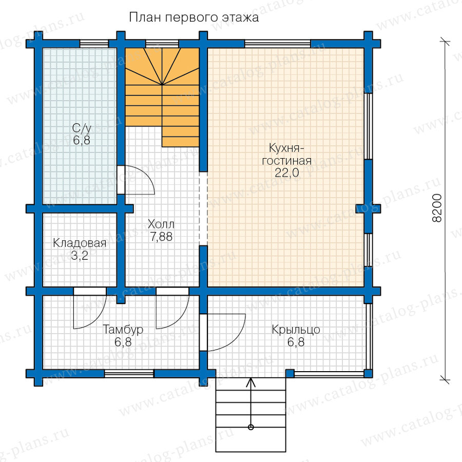
Общая площадь: 100 м² Террасы,балконы: 6,8 м² Габариты: 8.2x8.2 м Высота конька: 7.84 м Наружные стены: брус 200 Фундамент: свайно-ростверковый ж/б Перекрытия: по деревянным балкам Крыша: мансардная Кровля: металлочерепица Наружная отделка: окраска Цоколь: нет Архитектурный стиль: скандинавский Подробнее о проекте:
https://catalog-dom.ru/catalog/13-95

Общая площадь: 100 м²

Террасы,балконы: 6,8 м²

Габариты: 8.2x8.2 м

Высота конька: 7.84 м

Наружные стены: брус 200

Фундамент: свайно-ростверковый ж/б

Перекрытия: по деревянным балкам

Крыша: мансардная

Кровля: металлочерепица

Наружная отделка: окраска

Цоколь: нет

Архитектурный стиль: скандинавский

Подробнее о проекте:
https://catalog-dom.ru/catalog/13-95