Добавить в корзинуПозвонить
Найти в Дзене

Встречайте новый хит - проект дома 99 кв.м. "Веванта-Финхаус"!

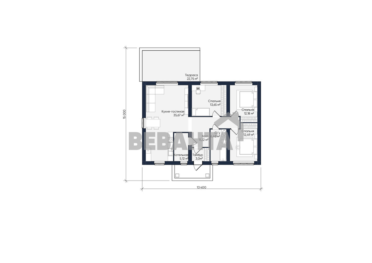
Представляем интересный проект одноэтажного загородного дома Веванта-Финхаус 99,81 м2. + терраса 22.75 м2. Компактный одноэтажный дом с очень комфортной планировкой выполнен в европейском стиле. Веванта-Финхаус выглядит достойно и дорого, привлекают внимание большие окна в пол, светлые фасады, выполненные фасадной штукатуркой в сочетании с декоративными деревянными панелями. Крыша дома выполнена гибкой черепицей. Внутри Финхауса вас ждет эргономичная планировка: просторная кухня-гостиная с выходом на летнюю террасу, три спальные комнаты, санузел, холл, котельная. Выбирая проект Веванта-Финхаус, вы приобретаете комфортную жизнь в стильном европейском доме. Смотреть проект одноэтажного дома 99 кв.м.! Подписывайтесь на наш канал, чтобы не пропустить новый интересный проект!

Представляем интересный проект одноэтажного загородного дома Веванта-Финхаус 99,81 м2. + терраса 22.75 м2. Компактный одноэтажный дом с очень комфортной планировкой выполнен в европейском стиле.

Веванта-Финхаус выглядит достойно и дорого, привлекают внимание большие окна в пол, светлые фасады, выполненные фасадной штукатуркой в сочетании с декоративными деревянными панелями. Крыша дома выполнена гибкой черепицей. Внутри Финхауса вас ждет эргономичная планировка: просторная кухня-гостиная с выходом на летнюю террасу, три спальные комнаты, санузел, холл, котельная. Выбирая проект Веванта-Финхаус, вы приобретаете комфортную жизнь в стильном европейском доме.

-2

Смотреть проект одноэтажного дома 99 кв.м.!

Подписывайтесь на наш канал, чтобы не пропустить новый интересный проект!