Найти в Дзене
Teploluxe

Защитите свой дом от протечек без лишних затрат с Neptun Aquacontrol

Существует популярное мнение о том, что установка системы защиты от протечек – удовольствие дорогое, доступное не каждому. Конечно же, это не так, ведь на рынке есть множество предложений – существуют ценовые категории на любой кошелек! Например, в каталоге нашего магазина вы можете найти доступную модель системы контроля протечек – Neptun Aquacontrol. Именно о ней сегодня и расскажем. Бюджетная система защиты от протечек Как мы и говорили, данный вариант защиты от протечек воды является достаточно бюджетным. При этом в стандартную комплектацию входят сразу 2 крана с электроприводом – не только под холодную, но и под горячую воду. Оборудование марки Neptun используется для передачи сигналов об авариях на модуль управления. Система позволяет своевременно обнаружить и локализовать протечку, а также уведомляет пользователя звуковым и световым сигналами. Когда датчик начинает погружаться в воду, срабатывает оповещение об аварии. Затем краны с электроприводом перекрывают водоснабжение, чтоб
Оглавление

Существует популярное мнение о том, что установка системы защиты от протечек – удовольствие дорогое, доступное не каждому. Конечно же, это не так, ведь на рынке есть множество предложений – существуют ценовые категории на любой кошелек! Например, в каталоге нашего магазина вы можете найти доступную модель системы контроля протечек – Neptun Aquacontrol. Именно о ней сегодня и расскажем.

Бюджетная система защиты от протечек

Как мы и говорили, данный вариант защиты от протечек воды является достаточно бюджетным. При этом в стандартную комплектацию входят сразу 2 крана с электроприводом – не только под холодную, но и под горячую воду.

Оборудование марки Neptun используется для передачи сигналов об авариях на модуль управления. Система позволяет своевременно обнаружить и локализовать протечку, а также уведомляет пользователя звуковым и световым сигналами.

Когда датчик начинает погружаться в воду, срабатывает оповещение об аварии. Затем краны с электроприводом перекрывают водоснабжение, чтобы предотвратить потоп. Подача воды прекращается не сразу, а постепенно – в течение 1-2 секунд. Это сделано для того, чтобы уберечь трубы от возникновения гидроудара.

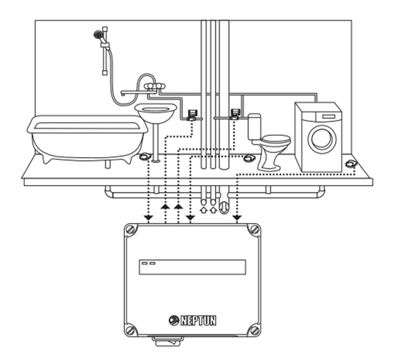
Пример размещения комплекта в стандартной квартире.
Пример размещения комплекта в стандартной квартире.

«А если ложная тревога?» – спросите вы? Исключено! Датчики не реагируют на брызги или случайное попадание воды. Они активируются только в том случае, если жидкость достигает установленного уровня (достаточно не более 1 мм).

Система защиты от протечек марки Neptun состоит из 3-х основных компонентов:

  • Модуля управления, который предназначен для обработки сигналов от датчиков и подачи команды шаровым кранам с электроприводом открыть/закрыть подачу водоснабжения.
  • Датчиков контроля протечки воды, фиксирующих аварии.
  • А также шарового крана с электроприводом. Именно он блокирует подачу воды при протечке.

Датчики размещаются в вероятных зонах образования протечек (например, под унитазом, раковиной, ванной, душевой кабиной или на кухне). Монтаж допустим на металлопластиковую, полипропиленовую, металлическую поверхность труб.

Подведем итоги

Итак, давайте резюмируем все достоинства и особенности модели Neptun Aquacontrol:

  • Надежная защита по доступной цене.
  • Два крана в комплекте – для холодной и для горячей воды.
  • Автоматическая блокировка водоснабжения при авариях.
  • Гибкая настройка и контроль: система поддерживает до 20 датчиков и до 6 кранов одновременно.
  • Монтаж не займет много времени: квалифицированному специалисту достаточно 30-40 минут, чтобы выполнить все необходимые манипуляции.
  • Подача напряжения только при перекрытии воды.
  • Гарантия: 4 года.

Neptun Aquacontrol – отличная система защиты от протечек за весьма невысокую цену. С Neptun Aquacontrol вы без лишних затрат обезопасите квартиру, дом или офис от потопа – систему можно устанавливать в помещениях любого типа, вне зависимости от ремонта.