Найти в Дзене
An Interesting Approach

С чего нужно начать ремонт, и с чем прийдется столкнуться.

Прежде чем приступить к ремонту, нужно определиться по двум направлениям — функционал пространства и дизайн интерьера. Сначала до деталей выясняются все «тонкости жизни» человека: количество детей, наличие животных, привычки. Например, готовит ли хозяин сам, в какое время суток больше времени проводит дома, любит ли собирать гостей, есть ли у него или членов семьи хобби, коллекционируют ли заказчики искусство, кто в семье первым начинает собираться на работу и многое другое. Исходя из совокупности сценариев продумывается дальнейший визуальный образ.
Следующий этап работы — выявить предпочтения в дизайне интерьера. После этого следует разработка и сдача поэтапно:
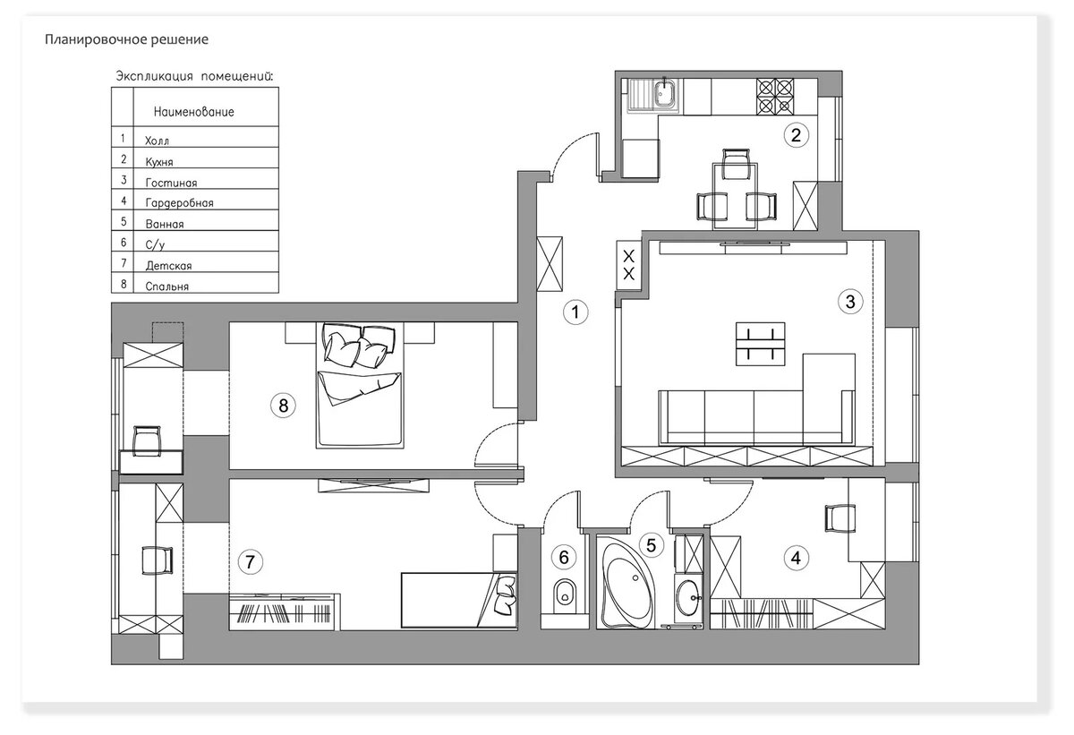
Планировочные решения.
Стилевые решения на основе референсов клиента. Важно помнить, что «подружить» абсолютно все невозможно. Поэтому дизайнеры берут в проект только ключевые приемы и цветовые решения.
Рабочая документация становится чертежом для строителей. Она включает в себя: планировочные решения; верхнюю, среднюю и

Прежде чем приступить к ремонту, нужно определиться по двум направлениям — функционал пространства и дизайн интерьера. Сначала до деталей выясняются все «тонкости жизни» человека: количество детей, наличие животных, привычки. Например, готовит ли хозяин сам, в какое время суток больше времени проводит дома, любит ли собирать гостей, есть ли у него или членов семьи хобби, коллекционируют ли заказчики искусство, кто в семье первым начинает собираться на работу и многое другое. Исходя из совокупности сценариев продумывается дальнейший визуальный образ.

Следующий этап работы — выявить предпочтения в дизайне интерьера. После этого следует разработка и сдача поэтапно:

Пример.
Пример.


Планировочные решения.

Стилевые решения на основе референсов клиента. Важно помнить, что «подружить» абсолютно все невозможно. Поэтому дизайнеры берут в проект только ключевые приемы и цветовые решения.

Рабочая документация становится чертежом для строителей. Она включает в себя: планировочные решения; верхнюю, среднюю и нижнюю электрику; напольное покрытие с высотными отметками и стыковками; потолок с узлами и разрезами; водоснабжение и канализацию; мебель с основными габаритными размерами; перечень помещений в квадратных метрах; развертки по стенам с указанием видов и типов нанесения отделочных материалов.


Дизайн-проект.
Документ передается заказчику и строителям, что упрощает общение между всеми сторонами и значительно экономит бюджет. Утвержденный дизайн-проект позволяет клиенту контролировать расходы, а строителям труднее запутать заказчика, так как все работы рассчитаны. Одновременно дизайн-проект является бизнес-планом для клиента: он понимает, за что заплатил и как происходит закрытие этапов.

Также дизайн-проект позволяет составить смету по стоимости материалов и изготовлению мебели. У нас в студии даже есть специальная услуга, благодаря которой можно прогнозировать расходы на месяц, на полгода. В любом интерьере есть фоновые вещи, на которых можно сэкономить, например отделочные материалы (обои, краска). Но акцентные элементы — люстры, мебель, ручки — придают интерьеру индивидуальность, делают его уникальным, поэтому мы всегда объясняем клиенту, что высокое качество оправдывает высокую стоимость.

Если хотите, чтобы интерьер полностью соответствовал дизайн-проекту, обязательно воспользуйтесь услугой авторского надзора. Только в этом случае гарантирована качественная реализация проекта. Все, кто работает на объекте — архитекторы, дизайнеры, проектировщики, инженеры и электрики, — решают только свою задачу. Никто из них не обращает внимания на связи и детали, которые возникают при решении рабочих вопросов в процессе стройки. И только архитектор обладает полным представлением о том, как должен выглядеть интерьер. Для того чтобы проект получился, нужно разбираться в нюансах, за которые отвечает сам автор.