Добавить в корзинуПозвонить
Найти в Дзене
Филдс

Как дизайнер оформила уютную евродвушку 44 м² в неоклассическом стиле, которая понравится абсолютно всем

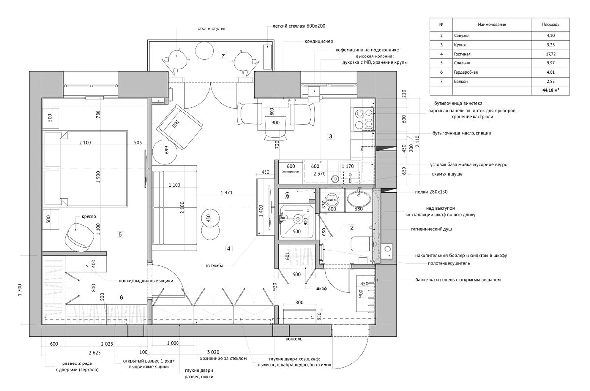
Дизайнер Наталья Сорокина оформила евродвушку площадью 44 м² для семейной пары. Квартира находится в старом фонде недалеко от метро. Интерьер создавали с опорой на неоклассический стиль. Планировка Гостиная Стены в гостиной покрасили краской светлого оттенка и декорировали молдингами, на пол положили паркет. Яркими акцентами стали изумрудный диван и картины за ним. Полотна подсвечиваются трековыми светильниками, которые держатся на магнитах: их легко переставлять и менять местами. Кухня По стилистике кухня схожа с гостиной. Гарнитур построили Г-образно. Габаритную технику — холодильник и духовку с функцией СВЧ — встроили в пеналы. В нижней секции у окна находится винный холодильник шириной всего 15 см — одно из пожеланий заказчиков. Чтобы увеличить объём мест для хранения, стандартный цоколь заменили на выдвижные ящики. Латунные ручки на фасадах добавляют нотку благородства, в тон им подобрали смеситель для мойки и встроенный дозатор для мыла. Спальня В спальню можно попасть через
Оглавление

Дизайнер Наталья Сорокина оформила евродвушку площадью 44 м² для семейной пары. Квартира находится в старом фонде недалеко от метро. Интерьер создавали с опорой на неоклассический стиль.

  • Общая площадь: 44 м²
  • Место: Москва
  • Количество комнат: евродвушка
  • Высота потолка: 2,4 м
  • Бюджет: 4,3 млн рублей
  • Кто здесь живет: семейная пара

Планировка

Квартира находилась в «убитом» состоянии, предстоял большой фронт черновых работ. Ненесущие перегородки демонтировали и возвели заново, оконно-дверной блок заменили на французское остекление. Чтобы объединить кухню с гостиной, вместо газовой плиты установили электрическую.
Квартира находилась в «убитом» состоянии, предстоял большой фронт черновых работ. Ненесущие перегородки демонтировали и возвели заново, оконно-дверной блок заменили на французское остекление. Чтобы объединить кухню с гостиной, вместо газовой плиты установили электрическую.

Гостиная

Стены в гостиной покрасили краской светлого оттенка и декорировали молдингами, на пол положили паркет. Яркими акцентами стали изумрудный диван и картины за ним. Полотна подсвечиваются трековыми светильниками, которые держатся на магнитах: их легко переставлять и менять местами.

Кухня

По стилистике кухня схожа с гостиной. Гарнитур построили Г-образно. Габаритную технику — холодильник и духовку с функцией СВЧ — встроили в пеналы. В нижней секции у окна находится винный холодильник шириной всего 15 см — одно из пожеланий заказчиков. Чтобы увеличить объём мест для хранения, стандартный цоколь заменили на выдвижные ящики. Латунные ручки на фасадах добавляют нотку благородства, в тон им подобрали смеситель для мойки и встроенный дозатор для мыла.

Спальня

В спальню можно попасть через гардеробную. Для отделки комнаты использовали те же материалы, что и в гостиной, чтобы эстетически не дробить пространство. Кровать оснащена подъёмным механизмом, внутри можно хранить постельные принадлежности.

Прихожая

Пол в прихожей выделили плиткой, её укладка имитирует ковёр. Стена с крючками скрывает необычную систему хранения глубиной всего 10 см. За одной из дверец находится электрический щиток. Зеркальные фасады шкафа в нише работают на визуальное увеличение пространства.

Санузел

Основной материал отделки в санузле — крупноформатный керамогранит. Он отлично сочетается с деревянным шпоном в фасадах шкафа над инсталляцией, в котором скрыли коммуникации.

Подпишись на канал Филдс, чтобы первым видеть новые публикации. Интересные мнения в комментариях приветствуются. Если материал понравился — ставь лайк!

Facebook, Instagram, Вконтакте