Найти в Дзене

Гостевой дом ручной рубки из бревна 400-450 мм

Проект деревянного дома из массивного бревна и навес пост энд бим для автомобиля рядом с домом На заметку: Почему жалко лес большого диаметра, миф и правда!
Всем заблудившимся в понятиях)
Не стоит путать секвои и наши смешанные, сосновые, еловые леса и тайгу!
Что добывается на делянке у нас таких диаметров, как бы это не звучало глупо, дает вздохнуть лесам)
Это не единичное 500 мм дерево в Подмосковье, его сохранят еще двести лет....другое, в выделенных лесных делянках, будет гнить на корню, не давать развиваться другим молоднякам
Целая эпопея и подмены понятий)...про горящие леса, браконьерами и реальными ЗАГОТОВИТЕЛЯМИ на срубы! Для сметного расчета строительства A-36: -общая площадь по экспликации - 98 кв. м
-объем бревна 420 мм - 95 куб. м из 6-6.5 м
-пог. длина заготовок бревна - 690 м
-пог. фундамента - 54 м
-балки - 100 х 200 мм
-стропила - 50 х 200 мм
-площадь кровли и периметр - 180 кв. м и - 120 пог. м
-угол кровли - 20-46 гр.
-высота 1-го этажа - 2.85 м
-высота 2-го эта

Проект деревянного дома из массивного бревна и навес пост энд бим для автомобиля рядом с домом

проект дома из бревна с пост энд бим
проект дома из бревна с пост энд бим
На заметку:
Почему жалко лес большого диаметра, миф и правда!

Всем заблудившимся в понятиях)

Не стоит путать секвои и наши смешанные, сосновые, еловые леса и тайгу!

Что добывается на делянке у нас таких диаметров, как бы это не звучало глупо, дает вздохнуть лесам)

Это не единичное 500 мм дерево в Подмосковье, его сохранят еще двести лет....другое, в выделенных лесных делянках, будет гнить на корню, не давать развиваться другим молоднякам

Целая эпопея и подмены понятий)...про горящие леса, браконьерами и реальными ЗАГОТОВИТЕЛЯМИ на срубы!
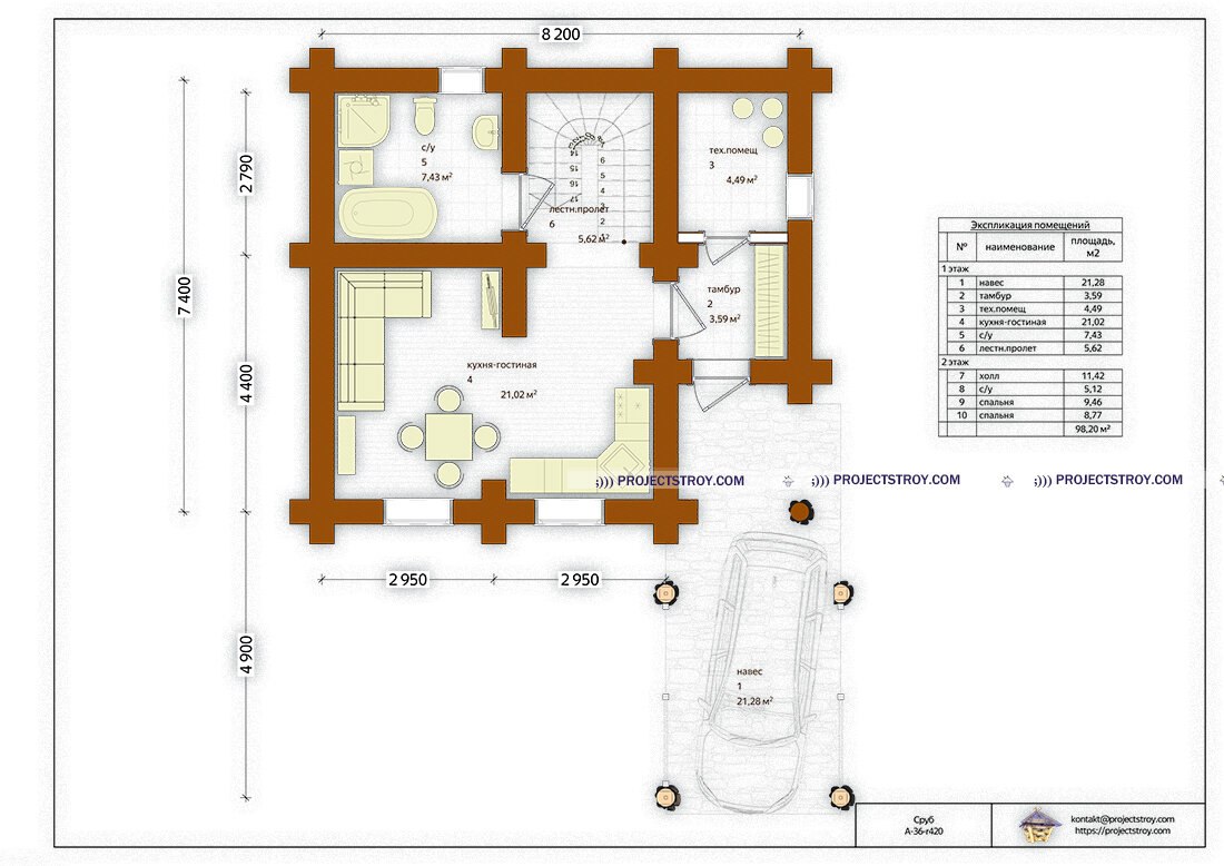
планировка деревянного дома
планировка деревянного дома
план второго этажа сруба
план второго этажа сруба

Для сметного расчета строительства A-36:

-общая площадь по экспликации - 98 кв. м
-объем бревна 420 мм - 95 куб. м из 6-6.5 м
-пог. длина заготовок бревна - 690 м
-пог. фундамента - 54 м
-балки - 100 х 200 мм
-стропила - 50 х 200 мм
-площадь кровли и периметр - 180 кв. м и - 120 пог. м
-угол кровли - 20-46 гр.
-высота 1-го этажа - 2.85 м
-высота 2-го этажа - от 1.4 м
-высота строения - 7.7 м

проекты срубов
проекты срубов