Найти в Дзене
Проектная мастерская №16

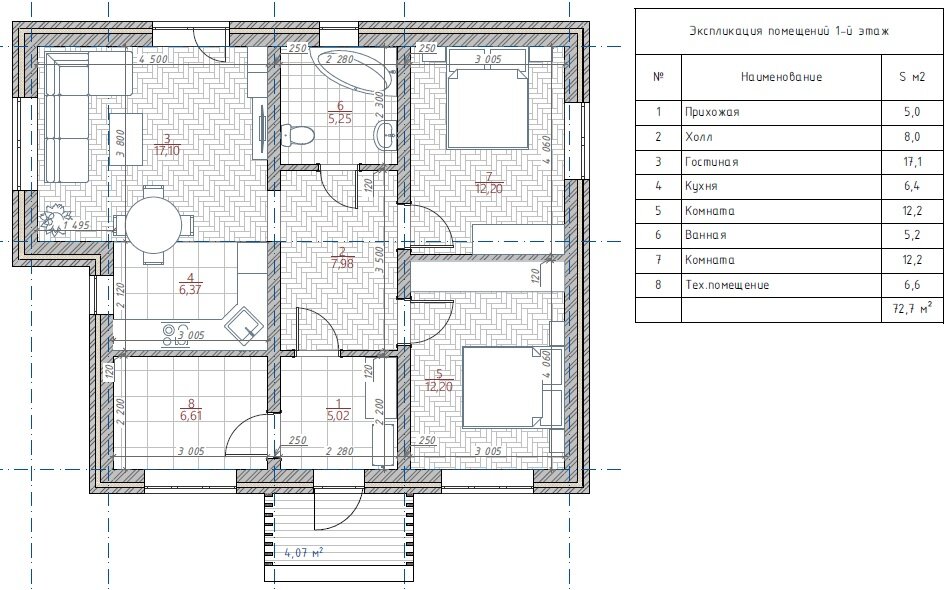
Планировка дома плоащдью 73кв.м. - 2 спальни и выделенная котельная

Доброго дня! Вы на канале проектной мастерской №16. Сегодня вашему вниманию простой и экономичный одноэтажный дом на 73кв.м. На плане дома: прихожая смежная с котельной, просторный холл, где справа находятся 2 спальни, прямо - ванная комната, а слева - гостиная-кухня на 23-24кв.м. Хотите посмотреть другие планировки? Переходите в наш каталог проектов или сайт.

Доброго дня! Вы на канале проектной мастерской №16.

Сегодня вашему вниманию простой и экономичный одноэтажный дом на 73кв.м.

На плане дома: прихожая смежная с котельной, просторный холл, где справа находятся 2 спальни, прямо - ванная комната, а слева - гостиная-кухня на 23-24кв.м.

-2

Хотите посмотреть другие планировки?

Переходите в наш каталог проектов или сайт.