Найти в Дзене

Внутренняя отделка домов в Bulatovo: на выбор 4 варианта

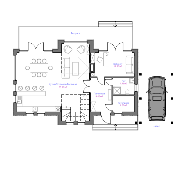
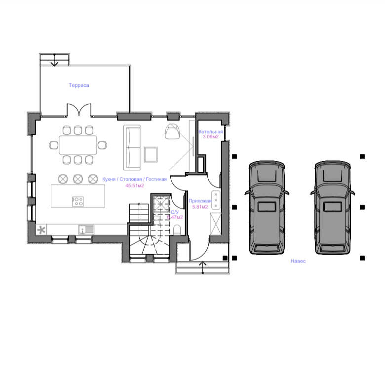
Решились на приобретение загородного коттеджа? Осталось определиться, с какой отделкой покупать дом. В отличие от Европы, где все застройщики сдают объекты в готовом к переезду состоянии, в России у покупателей есть выбор. В «Резиденции Булатово» предлагаются дома в нескольких вариантах отделки: от чернового варианта до полной комплектации. Это удобно, потому что дает потенциальным владельцам недвижимости больше свободы, не загоняет их в рамки, позволяет экономить как деньги, так и время. Без отделки Те, кто выбирают коттедж без отделки, так называемый black box, получают готовую коробку с подключенными коммуникациями, установленными входными дверями и окнами. Планировка этажей остается свободной – можно самостоятельно решить, где будет кухня, гостиная и спальни. Этот вариант подойдет опытным покупателям недвижимости, которые знают, чего они хотят от своего дома и уже заранее понимают, что стандартные решения – это не про них. Если вы всегда мечтали о ванной комнате с окном, готовы тра
Оглавление

Решились на приобретение загородного коттеджа? Осталось определиться, с какой отделкой покупать дом. В отличие от Европы, где все застройщики сдают объекты в готовом к переезду состоянии, в России у покупателей есть выбор. В «Резиденции Булатово» предлагаются дома в нескольких вариантах отделки: от чернового варианта до полной комплектации. Это удобно, потому что дает потенциальным владельцам недвижимости больше свободы, не загоняет их в рамки, позволяет экономить как деньги, так и время.

Без отделки

Те, кто выбирают коттедж без отделки, так называемый black box, получают готовую коробку с подключенными коммуникациями, установленными входными дверями и окнами. Планировка этажей остается свободной – можно самостоятельно решить, где будет кухня, гостиная и спальни. Этот вариант подойдет опытным покупателям недвижимости, которые знают, чего они хотят от своего дома и уже заранее понимают, что стандартные решения – это не про них. Если вы всегда мечтали о ванной комнате с окном, готовы тратить время и силы на ремонт, контролировать работу бригады, имеете поддержку грамотного дизайнера-проектировщика, то black box вам действительно подойдет.

Вариант приобретения дома без отделки будет интересен и тем, кто планирует делать ремонт поэтапно, разделяя траты. С этим могут возникнуть сложности, ремонт имеет свойство затягиваться и «съедать» больше денег, чем планировалось. Рассчитать, во сколько обойдется отделка коттеджа бывает достаточно проблематично даже при наличии проекта. Это и расходы на материалы, которые имеют свойство дорожать, и оплата труда рабочих, и непредвиденные расходы. По средним подсчетам, все это в конечном итоге выливается в сумму, примерно равную разнице в стоимости «голого» дома и отделанного «под ключ». Получается, что дело тут больше не в деньгах, а в сроках и конечном результате.

Если вы параллельно с ремонтом арендуете жилье, то этот момент нужно непременно учесть – быстро переехать, скорее всего, не получится.

С чистовой отделкой

Коттедж с чистовой отделкой – white box – сдается с оштукатуренными и шпаклёванными стенами, и полом, готовым к укладке финишного покрытия. В таком доме установлены не только оконные конструкции, но и подоконники. Все работы с коммуникациями завершены, поэтому остается только заняться интерьером. Коттеджи в «Резиденции Булатово» — это продуманные относительно комфорта и эстетики планировки, над которыми работали эксперты в области проектирования. Делать ремонт с такими исходными данными будет сплошным удовольствием, особенно, если вы найдете проверенную бригаду и дизайнера, который сможет воплотить в интерьере ваше видение дома.

Чистовая отделка – наиболее подходящее решение еще и в том случае, если вы рассматриваете коттедж как инвестицию. Такое жилье является ликвидным на рынке загородной недвижимости, так как покупатели с большой неохотой переплачивают за чужой ремонт. У дома в состоянии white box больше шансов быстро найти нового владельца, а значит и принести вам дивиденды.

С отделкой

Для тех, кто вообще не хочется касаться темы ремонта, есть вариант покупки дома с отделкой «под ключ». Обойдется это в большую сумму, но вы получите завершенную отделку по дизайн-проекту. Останутся только самые приятные хлопоты: выбрать цвет дивана и кресел, определиться, за каким столом будет завтракать вся семья в просторной кухне-столовой, заказать самую удобную кровать и справить новоселье в новых стенах! Никакой бетонной пыли, бесконечных созвонов с подрядчиками и поездок в строительные гипермаркеты за очередной порцией того, что внезапно закончилось.

Если все, что вы хотите – это перевезти свои вещи, а не изучать каталоги мебельных магазинов и актуальные модели светильников, то вам подойдет полностью укомплектованный коттедж. Full Box предполагает полную готовность к переезду владельцев, что многим покажется идеальным вариантом. Конечно, не исключен сценарий, при котором вас что-то не устроит в предложенном дизайне дома, но, в любом случае, поменять цвет стен или люстры гораздо проще, чем делать ремонт с нуля.

И не стоит забывать о том, что при покупке дома с отделкой вы можете включить все расходы на ремонт в ипотеку. Это позволит переехать как можно быстрее, поможет правильно рассчитать деньги, сэкономить время, и избавит вас от ремонтного стресса.

Продажи коттеджей в «Резиденции Булатово» уже открыты. Переходите на сайт, чтобы увидеть варианты домов и планировок, забронировать понравившийся коттедж по стартовой цене.

Чтобы узнать больше о коттеджном посёлке и инфраструктуре “Резиденции Булатово” и посмотреть проекты домов переходите на наш сайт.