Найти в Дзене
Z500 Архитектурное бюро

Новый проект Zz2 PK Вариант проекта Zz2 с плитами перекрытия!

Zz2 PK представляет собой вариант проекта Zz2 с плитами перекрытия. Достоинства проекта Zz2 PK: • Строение такого характера придется по вкусу не только почитателям классической архитектуры, но и сторонникам современного стиля. • Сложная конструкция строения и кровли, а также использование натурального камня для отделки фасов делают дом респектабельным и стильным. • Первый этаж отведен под помещениями дневной зоны, помещения хозяйственно-бытового характера и гараж. Отведено место и для рабочего кабинета, который при необходимости удобно использовать как спальню для гостей или комнату для постоянного проживания членов семьи. • На втором этаже спроектированы 3 просторные и хорошо освещенные спальни. В главной спальне предусмотрен большой индивидуальный гардероб, просторная ванная комната. Предусмотрена и отдельная терраса. Проект Zz2 PK позволяет построить функциональный, надежный коттедж с впечатляющим интерьером. Проект дома Zz2 PK  Общая площадь 218,8 м² Смотрите детальнее о проекте на

Zz2 PK представляет собой вариант проекта Zz2 с плитами перекрытия.

Достоинства проекта Zz2 PK:

• Строение такого характера придется по вкусу не только почитателям классической архитектуры, но и сторонникам современного стиля.

• Сложная конструкция строения и кровли, а также использование натурального камня для отделки фасов делают дом респектабельным и стильным.

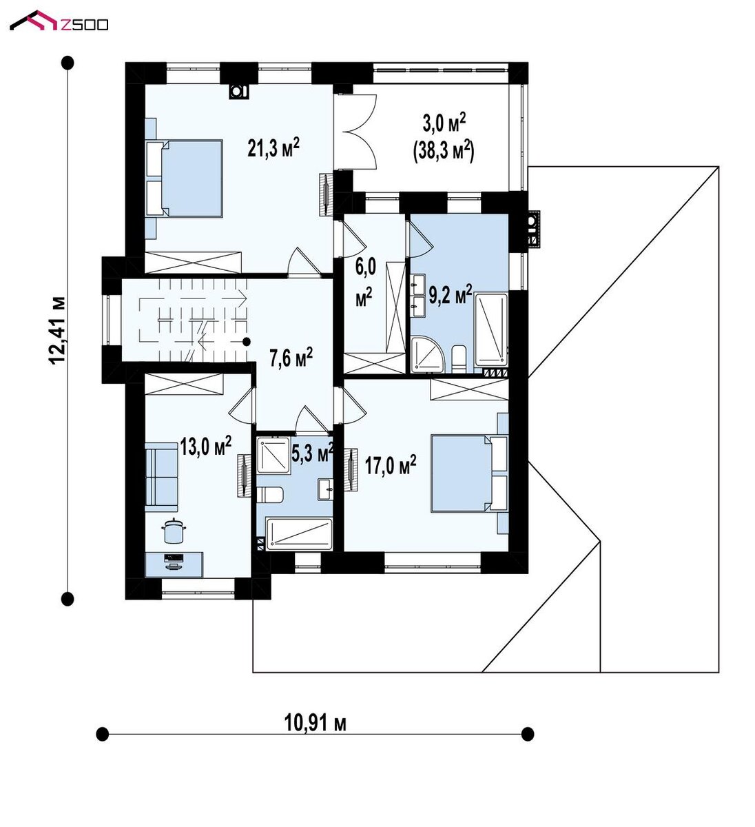
• Первый этаж отведен под помещениями дневной зоны, помещения хозяйственно-бытового характера и гараж. Отведено место и для рабочего кабинета, который при необходимости удобно использовать как спальню для гостей или комнату для постоянного проживания членов семьи.

• На втором этаже спроектированы 3 просторные и хорошо освещенные спальни. В главной спальне предусмотрен большой индивидуальный гардероб, просторная ванная комната. Предусмотрена и отдельная терраса.

Проект Zz2 PK позволяет построить функциональный, надежный коттедж с впечатляющим интерьером.

Проект дома Zz2 PK  Общая площадь 218,8 м²

Смотрите детальнее о проекте на сайте 👈

Понравился ли Вам проект? Ставьте 👍 вверх, пишите свои мысли в комментариях.

👉 Подписывайтесь на наш канал, у нас много интересных проектов!!!

Будем благодарны за обратную связь!

Удачи в выборе и строительстве дома вашей мечты!

👉 Приглашаем вас на сайт, где вы среди множества современных проектов домов, найдете подходящий именно вам проект!

Наш каталог проектов 👉 КАТАЛОГ 👈

Если вы не найдете подходящий проект дома — наши архитекторы всегда готовы создать его для вас!

По вопросам приобретения проекта дома и его доработок под ваши потребности обращайтесь 👉 Наши контакты 👈