Добавить в корзинуПозвонить
Найти в Дзене
Филдс

Дизайнер оформила шикарную трёшку 70 м² за 2,35 млн руб на продажу: за счёт чего удалось так сэкономить

Дизайнер Анна Просвирнова оформила трехкомнатную квартиру 70 м² для последующей продажи. Ремонт завершили всего за два месяца. Бюджет на реализацию проекта закладывали небольшой, поэтому старались экономить по максимуму. Планировка Гостиная Светлые стены в гостиной стали фоном для акцентной мебели — синего дивана и кресла с чёрно-белой геометричной обивкой. ТВ-зону обозначили объёмными гипсовыми панелями. В качестве напольного покрытия использовали ламинат, имитирующий паркет. Особое настроение задают осветительные приборы — торшер с чешуйчатой перфорацией и люстра в стилистике ар-деко. Кухня Кухонный гарнитур интегрировали в нишу. Чтобы сэкономить, холодильник и посудомоечную машину выбрали не встраиваемые. Навесные шкафы дополнили глубокими антресолями, это помогло увеличить объём мест для хранения. Необычным элементом отделки стала золотая мозаика на фартуке, она перекликается с ручками на шкафах и светильниками. Рядом разместили барную стойку. Она играет роль дополнительной рабо
Оглавление

Дизайнер Анна Просвирнова оформила трехкомнатную квартиру 70 м² для последующей продажи. Ремонт завершили всего за два месяца. Бюджет на реализацию проекта закладывали небольшой, поэтому старались экономить по максимуму.

  • Общая площадь: 70 м²
  • Место: Санкт-Петербург
  • Количество комнат: 3
  • Высота потолка: 2,7 м
  • Бюджет: 2,35 млн рублей
  • Кто здесь живет: для продажи
  • Фото: Андрей Шишов

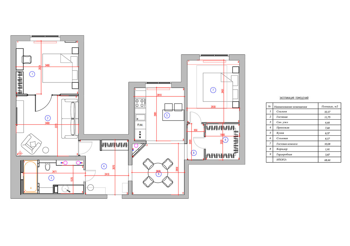
Планировка

Заказчики получили квартиру от застройщика в бетоне. В ходе перепланировки гардеробную перенесли из одной части квартиры в другую, а также убрали кладовую в коридоре. Одну из комнат поделили на две при помощи лофт-перегородки.
Заказчики получили квартиру от застройщика в бетоне. В ходе перепланировки гардеробную перенесли из одной части квартиры в другую, а также убрали кладовую в коридоре. Одну из комнат поделили на две при помощи лофт-перегородки.

Гостиная

Светлые стены в гостиной стали фоном для акцентной мебели — синего дивана и кресла с чёрно-белой геометричной обивкой. ТВ-зону обозначили объёмными гипсовыми панелями. В качестве напольного покрытия использовали ламинат, имитирующий паркет. Особое настроение задают осветительные приборы — торшер с чешуйчатой перфорацией и люстра в стилистике ар-деко.

Кухня

Кухонный гарнитур интегрировали в нишу. Чтобы сэкономить, холодильник и посудомоечную машину выбрали не встраиваемые. Навесные шкафы дополнили глубокими антресолями, это помогло увеличить объём мест для хранения. Необычным элементом отделки стала золотая мозаика на фартуке, она перекликается с ручками на шкафах и светильниками. Рядом разместили барную стойку. Она играет роль дополнительной рабочей поверхности — плита на четыре конфорки и раковина занимают почти всю площадь столешницы гарнитура.

Спальня

Проём в первой спальне дополнили стеклянной перегородкой, чтобы сохранить доступ естественного света в гостиную. Стену в изголовье кровати оформили краской двух бежевых оттенков, место стыка декорировали молдингами. Помимо спального места здесь разместили туалетный столик и неглубокий шкаф.

Вторая спальня

В отделке стен во второй спальне также задействовали два оттенка краски. Кроме того, участок в изголовье оформили фреской с тропическими мотивами. С ними связывают и подвесы с обезьянками. Рядом со спальней находится гардеробная.

Прихожая

Благодаря размеру прихожую можно назвать полноценным холлом. На пол здесь положили плитку с орнаментом, а некоторые участки стен декорировали теми же гипсовыми панелями, которые использовали в гостиной. Голубая сидушка банкетки и пуф созвучны вставкам на плитке.

Санузел

Для отделки санузла задействовали два вида плитки и коричневый керамогранит. Розовая мозаика на стене за раковиной, в нише в ванной и за инсталляцией унитаза не требовала затирки швов, что значительно облегчило работу. Вместо стандартных шторок или стекла чашу ванны обрамляют перегородки из цветных стеклоблоков.

Подпишись на канал Филдс, чтобы первым видеть новые публикации. Интересные мнения в комментариях приветствуются. Если материал понравился — ставь лайк!

Facebook, Instagram, Вконтакте