Добавить в корзинуПозвонить
Найти в Дзене
Z500 Архитектурное бюро

Z330 Современный дом с двускатной крышей на узком участке

Z330 - современный дом с двускатной крышей на узком участке. Преимущества проекта Z330: Проект Z330 – отличное решение комфортабельного дома в необычном современном стиле для большой семьи с просторным гаражом. Проект дома Z330  Общая площадь 167,3 м² Смотрите детальнее о проекте на сайте 👈 Понравился ли Вам проект? Ставьте 👍 вверх, пишите свои мысли в комментариях. 👉 Подписывайтесь на наш канал, у нас много интересных проектов!!! Будем благодарны за обратную связь! Удачи в выборе и строительстве дома вашей мечты! 👉 Приглашаем вас на сайт, где вы среди множества современных проектов домов, найдете подходящий именно вам проект! Наш каталог проектов 👉 КАТАЛОГ 👈 Если вы не найдете подходящий проект дома — наши архитекторы всегда готовы создать его для вас! По вопросам приобретения проекта дома и его доработок под ваши потребности обращайтесь 👉 Наши контакты 👈

Z330 - современный дом с двускатной крышей на узком участке.

Преимущества проекта Z330:

  • Проект приглянется застройщикам разного возраста за счет традиционной формы и современного решения оформления экстерьера. Такой дом гармонично вольется практически в любой пейзаж.
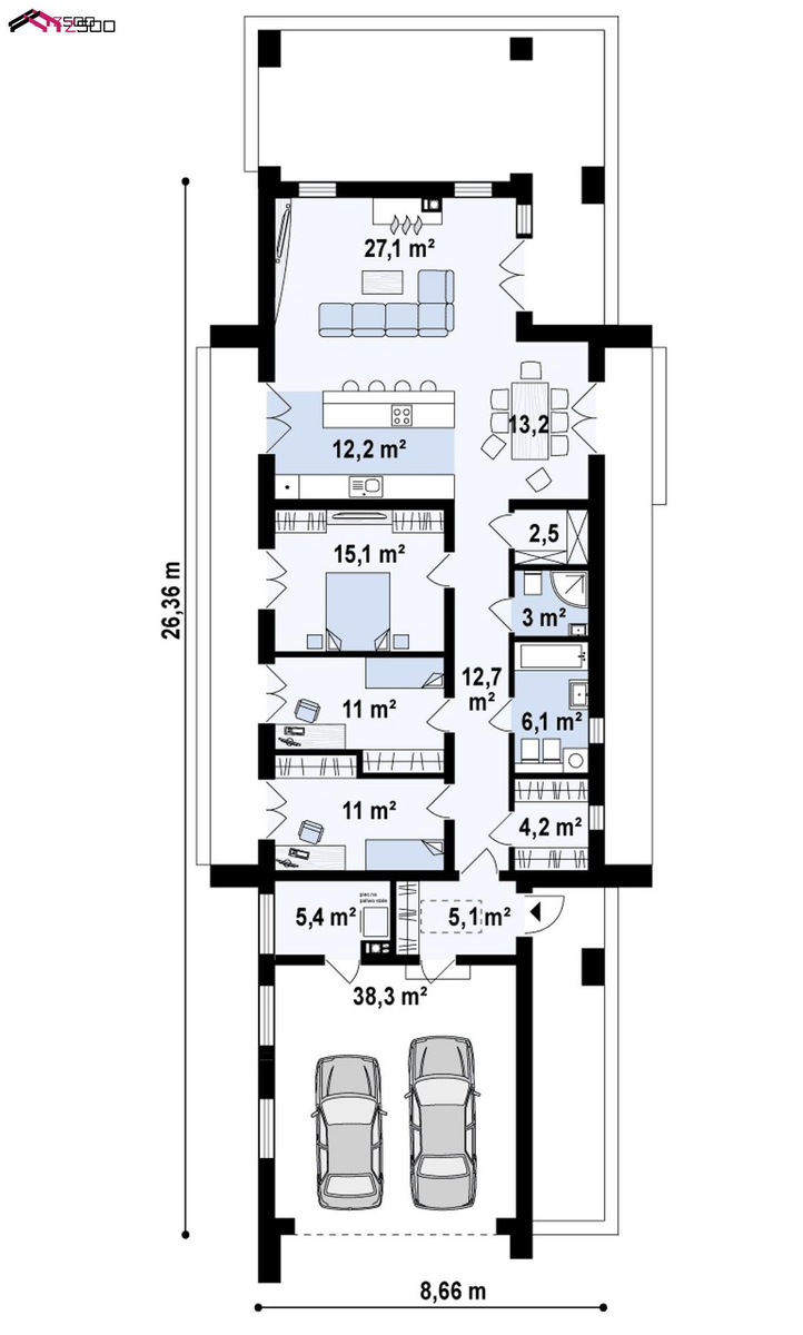
  • Одноуровневая грамотная планировка делает дом удобным для проживания семьи с маленькими детьми и людьми преклонного возраста с трудностями передвижения. Отсутствие лестницы делает дом не травмоопасным.
  • Сохранять порядок в доме поможет просторная гардеробная справа от прихожей.
  • В ночной части дома предусмотрено три комфортабельные спальни с выходом на улицу.
  • Дневная просторная часть дома спроектирована в дальней части дома и характеризуется открытым интерьером и большими площадями остекления.
  • Особую атмосферу тепла и уюта создает большой камин в центре гостиной.

Проект Z330 – отличное решение комфортабельного дома в необычном современном стиле для большой семьи с просторным гаражом.

Проект дома Z330  Общая площадь 167,3 м²

Смотрите детальнее о проекте на сайте 👈

-2

Понравился ли Вам проект? Ставьте 👍 вверх, пишите свои мысли в комментариях.

👉 Подписывайтесь на наш канал, у нас много интересных проектов!!!

Будем благодарны за обратную связь!

Удачи в выборе и строительстве дома вашей мечты!

👉 Приглашаем вас на сайт, где вы среди множества современных проектов домов, найдете подходящий именно вам проект!

Наш каталог проектов 👉 КАТАЛОГ 👈

Если вы не найдете подходящий проект дома — наши архитекторы всегда готовы создать его для вас!

По вопросам приобретения проекта дома и его доработок под ваши потребности обращайтесь 👉 Наши контакты 👈