Добавить в корзинуПозвонить
Найти в Дзене

Почему двухэтажный дом - это плохо.

Сейчас мы переживаем активную эпоху загородного строительства. Многие люди просто мечтают переехать из душной квартиры в просторный загородный дом. Или просто в кусочек загородного рая. Но как построить идеальный дом? Что должен включать в себя "правильный" загородный особняк? Планировка. Не существует идеальной планировки. Для кого-то необходима огромная гостинная, кому-то подавай большой санузел. Поэтому сама планировка не так важна для правильной организации жизни, как бы это забавно не казалось. Важно то, как вы себя чувствуете в этой самой планировке. Если вам некомфортно находиться в доме, то, скорее всего, вы просто не угадали с планировкой. Стоит очень внимательно продумать зонирование и расположение различных мест в доме: Кухонного гарнитура, санузлов, гардеробных, диванов и зон отдыха и , конечно, спален. В спальнях мы проводим времени много, но обычно осознанное время все же проводят на кухне или в гостинной, реже в кабинете, если работа удаленная и требует уединения. Поэт
Оглавление

Сейчас мы переживаем активную эпоху загородного строительства. Многие люди просто мечтают переехать из душной квартиры в просторный загородный дом. Или просто в кусочек загородного рая.

Но как построить идеальный дом? Что должен включать в себя "правильный" загородный особняк?

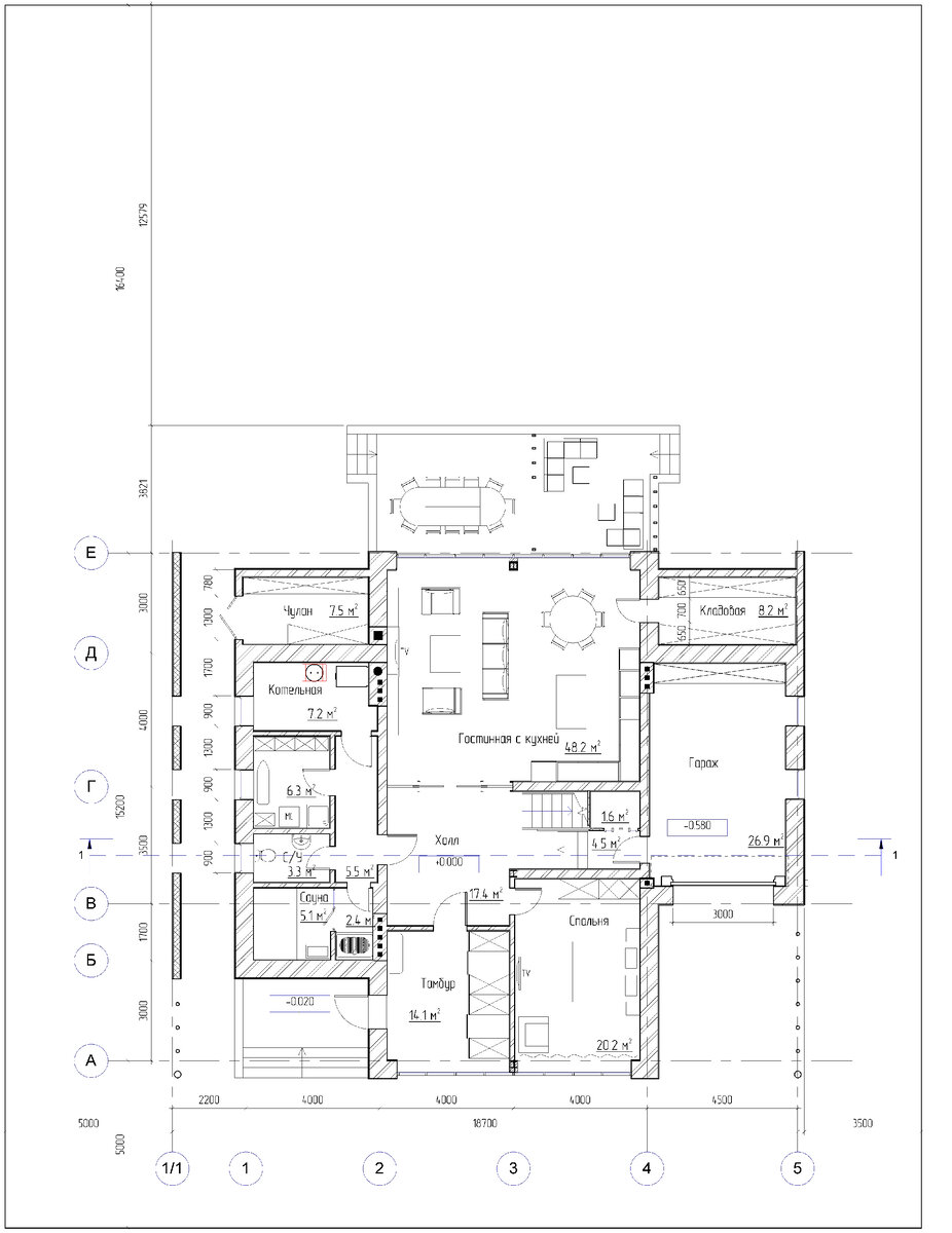
Пример хорошего одноэтажного дома.
Пример хорошего одноэтажного дома.

Планировка.

Не существует идеальной планировки. Для кого-то необходима огромная гостинная, кому-то подавай большой санузел. Поэтому сама планировка не так важна для правильной организации жизни, как бы это забавно не казалось. Важно то, как вы себя чувствуете в этой самой планировке.

Если вам некомфортно находиться в доме, то, скорее всего, вы просто не угадали с планировкой. Стоит очень внимательно продумать зонирование и расположение различных мест в доме: Кухонного гарнитура, санузлов, гардеробных, диванов и зон отдыха и , конечно, спален.

В спальнях мы проводим времени много, но обычно осознанное время все же проводят на кухне или в гостинной, реже в кабинете, если работа удаленная и требует уединения.

Пример планировки первого этажа 2х этажного дома
Пример планировки первого этажа 2х этажного дома

Поэтому спальни уводят на второй этаж или в дальнюю, тихую часть дома, если дом одноэтажный.

Коммуникации

В современном строении нельзя забывать о правильном освещении, комфортном отоплении, выверенной вентиляции и прочих приятных мелочах типо автоматизации, стабильном интернете, видеонаблюдении и т.д.

Термоголовка на радиаторе отопления
Термоголовка на радиаторе отопления

Если у вас все это расположено в одной плоскости, то проблем явно меньше, чем при разнесении в разные концы дома и увеличении сложности систем жизнеобеспечения. Особенно большие проблемы возникают с растаскиванием канализации и организации вентилирования/кондиционирования дома большого объема и высоты.

Дизайн и жизненное пространство.

Чаще всего частный дом ограничен рядом факторов:

  • Цена возведения
  • Нормативные акты (вы не можете построится слишком близко к соседям или слишком высоко, затенив их участок)
  • Внешний вид и ваши вкусы.
-4

Как показала практика сейчас намного проще, быстрее и приятнее вписать дом в один этаж, чем 2-х этажные. Одноэтажное строение с высокими потолками будет смотреться выигрышнее, чем дом аналогичной площади в той же местности. Очень тяжело современными стилистическим приемами и в разумный бюджет сделать 2-х этажный дом таким же эргономичным и симпатичным как и одноэтажный.

Стоимость возведения более высокого дома почти всегда выше за счет следующих усложнений

  • Лестница (она сьедает место и крадет бюджет)
  • Фундамент - при строительстве каменного дома фундамент будет нести большую нагрузку, а значит сложнее и дороже в производстве.
  • кровля и остекление - чаще всего дороже на доме в 2 этажа просто из-за конфигурации и трудоемкости работ.
-5

Расскажите вы за одноэтажный дом или больше любите забраться повыше в своем родовом гнездышке? Поведайте о плюсах и минусах из своего опыта строительства дома или опыта ваших друзей/знакомых.