Добавить в корзину
Позвонить
Найти в Дзене
Войти
Михаил Петухов
3 подписчика
Подписаться
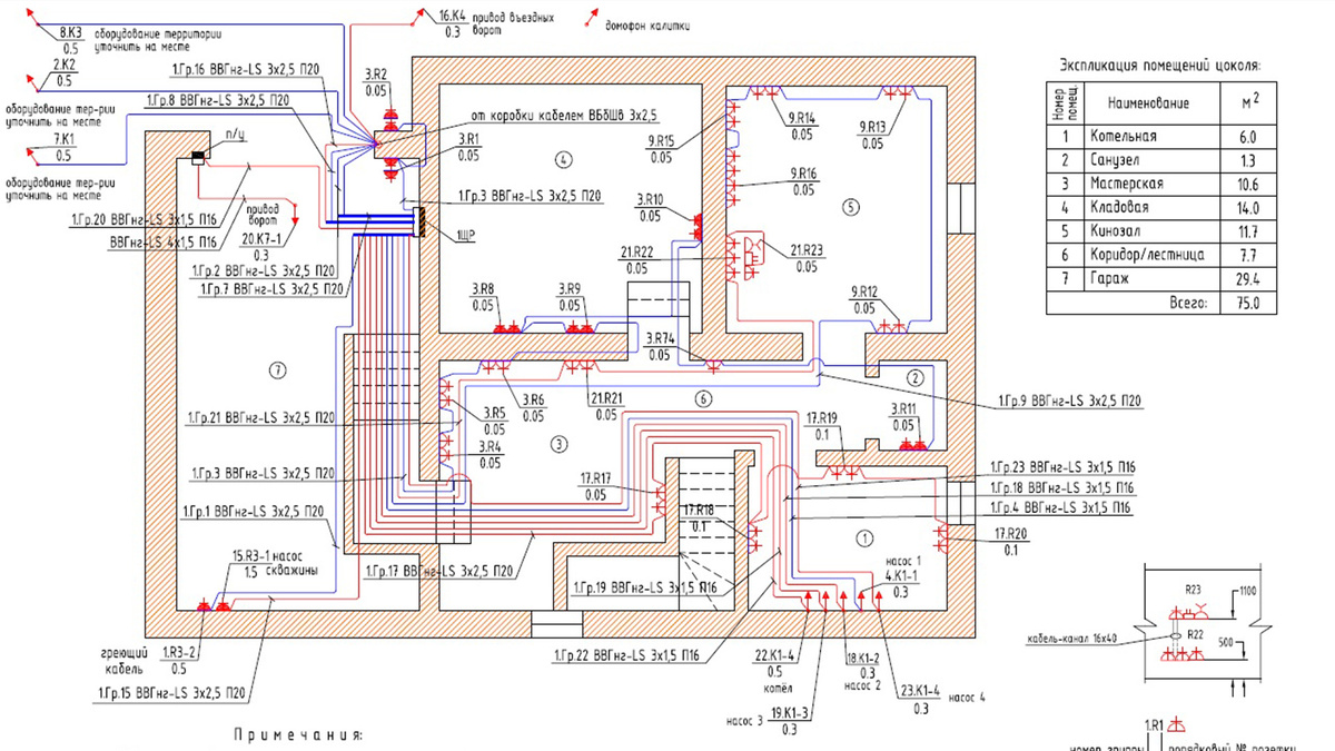
Провода и кабели для реализации электропроекта индивидуального жилого дома
30 ноября 2021
30 ноя 2021
1
...
Читать далее
1347242300.939.1779823166119.56102