Добавить в корзинуПозвонить
Найти в Дзене
Дизайн легко!

Интерьер без дизайнера! Несколько мини советов как создать красоту и функциональность самостоятельно.

Каждый из нас мечтает о своём прекрасном жильё: красивым удобным комфортном, где всё будет так как нам хочется, где будет всё так как нам нравится. И очень много семей сейчас находятся на стадии либо получения квартиры либо их ожидания. Но, к сожалению, реальность такова, что не все из них могут позволить себе услуги профессионального дизайнера, который сможет воплотить все их мечты в реальность. Так что же делать - пустить всё на самотёк и сделать так как у всех или всё-таки попытаться как-то реализовать задуманное? Я приведу несколько советов которые помогут хозяевам обустроить своё жильё. Итак, в первую очередь определитесь со своим бюджетом. Вы должны четко понимать сколько денег вы готовы потратить на ремонт. После этого определитесь, будете ли вы нанимать строительную бригаду или ремонт будет производиться собственными силами. В первом варианте просчитать сумму легче: строители зачастую указывают цену за 1 квадратный метр площади. У многих даже есть готовые решения с фиксированн

Каждый из нас мечтает о своём прекрасном жильё: красивым удобным комфортном, где всё будет так как нам хочется, где будет всё так как нам нравится. И очень много семей сейчас находятся на стадии либо получения квартиры либо их ожидания. Но, к сожалению, реальность такова, что не все из них могут позволить себе услуги профессионального дизайнера, который сможет воплотить все их мечты в реальность. Так что же делать - пустить всё на самотёк и сделать так как у всех или всё-таки попытаться как-то реализовать задуманное? Я приведу несколько советов которые помогут хозяевам обустроить своё жильё.

Фото из  Google
Фото из Google

Итак, в первую очередь определитесь со своим бюджетом. Вы должны четко понимать сколько денег вы готовы потратить на ремонт. После этого определитесь, будете ли вы нанимать строительную бригаду или ремонт будет производиться собственными силами. В первом варианте просчитать сумму легче: строители зачастую указывают цену за 1 квадратный метр площади. У многих даже есть готовые решения с фиксированной ценой.

Если же необходимо будет использовать только собственный труд, очень важно все материалы рассчитать максимально тщательно. На просторах интернета есть различные калькуляторы на отделочные покрытия и формулы для расчёта всех составляющих и компонентов. Не стесняйтесь смотреть мастер классы от строителей перед началом работ, чтобы минимизировать ошибки и как следствие доп. затраты.

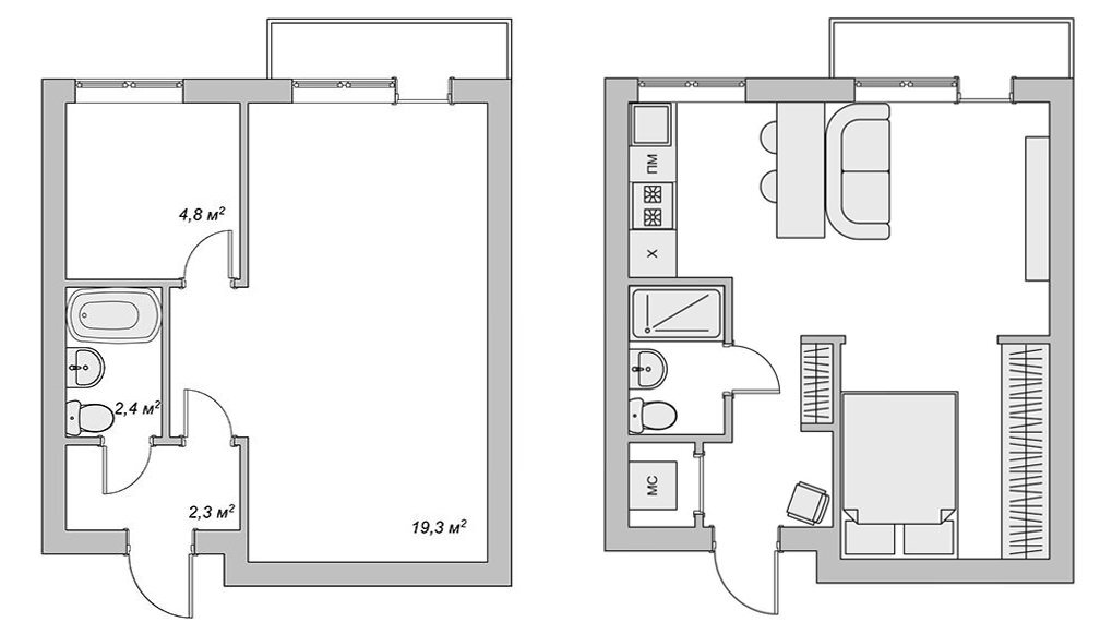
Исходя из бюджета определите, будете ли вы делать перепланировку или нет, так как ее узаконивание так же необходимо включить в смету.

Если принято решение в пользу перепланировки, тщательно изучите перед началом все правила. Благо в интернете тонна видео, где дизайнеры и архитекторы рассказывают обо всем очень доступно.

Любую перепланировку рисуйте только по реальным размерам и в масштабе. Можно использовать либо миллиметровку либо доступные сайты и программы для этого. Вы должны прорисовать каждый реальный элемент, который собираетесь закупать.

О краткой инструкции по перепланировке читайте в следующем посте!

Фото из  Google
Фото из Google

При начале выбора стиля для интерьера помните, что не все те красивые картинки из интернета возможно вписать в ваше пространство.

При подборе отделочных материалов всегда попробуйте их сочетание в миниатюре. Можете прямо в строительном магазине оторвать кусочек обоев или взять выбранную краску и сопоставить их с напольным покрытием, мебелью и тд.. Так вы точно сможете избежать сюрпризов.

Избегайте огромных частых узоров, лучше стены сделать нейтральными однотонными, так у вас будет отличное поле для декора, текстиля и других предметов интерьера. Более того, вы сможете его менять без особого труда при желании.

В случае если вы совсем запутались с выбором стиля, есть простые формулы хорошего интерьера. Напольное покрытие с текстурой натуральное дерева, белые высокие плинтуса и карнизы, белые двери с черными ручками и стены сложных оттенков. Сложные оттенки не значит темные. Смотря на них ваши глаза не должны уставать и перенапрягаться.

Мебель тоже берите нейтральных оттенков. Избегайте рыжих текстур дерева, цвета Венге. Лучше подобрать мебель базовых цветов - белый, серый, черный. А вот диван, кресло или кушетка при входе могут быть яркими. Главное чтобы их цвета сочетались между собой.

Фото из  Google
Фото из Google

Если хочется внести кирпичную кладку, делайте это только в функционально необходимых местах, которые действительно требуют дополнительной защиты - в месте открытых вешалок, на проходных стенах, возле обеденной группы или в местах для домашних животных. И он должен быть акцентным. Важно, чтобы один тип материала начинался и заканчивался на внутренних углах комнаты. Так не будет ощущения, что он сюда попал случайно. И да, берите кирпич красный или белый, старайтесь чтобы он был максимально натуральным по виду. Пластиковый точно использовать не нужно, как и фотообои, пленки и прочее.

Фото из  Google
Фото из Google

Помните о текстиле. Он способен добавить отличной изюминки интерьеру. Декоративные подушки, шторы, пледы и ковры. Если они будут дополнять друг друга, может сложиться очень удачный интерьер.

И не бойтесь экспериментировать! Если очень захочется красную раковину или стены цвета вина - вперед! Просто поищите заранее какие цвета из вам понравившихся с какими сочетаются и в каких пропорция (да храни Господь интернет!)

Была ли полезной статья? Пишите. И подписывайтесь на канал, ведь впереди много полезного!

#советы от дизайнера #интерьер квартиры #дизайн интерьеров #ремонт своими руками #дизайн своими руками