Добавить в корзинуПозвонить
Найти в Дзене
Черничный домик

Гостиная, две спальни, коридор. Ищу проект

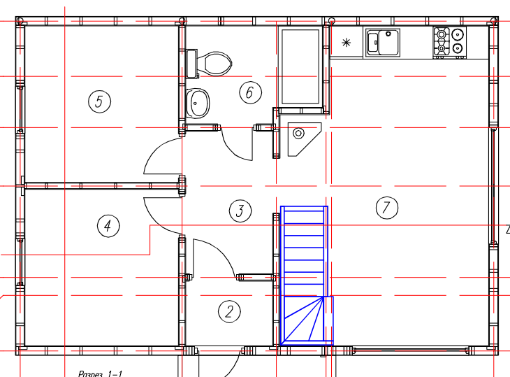
Любое строительство начинается с замысла. Как будет выглядеть ваш новый дом, сколько этажей, комнат, примерное расположение мебели, где и какие окна, общее расположение на территории и так далее. В основном дачное строительство сводится к постройке двухэтажных зданий, с мансардным этажом. Оно и понятно, чем меньше будет площадь основания дома, тем больше останется места для посадок. Именно такой и есть наш старый дачный дом. Классический дачный вариант нас все-таки не устроил. Хотелось чего-то нового, светлого. Тут то и начался мучительный период выбора варианта нового дома. Изначально выбор пал на найденный в сети проект «Дарина». Но там по большому счету понравилось только расположение комнат. Кухня-гостиная, две небольшие спальни, туалет. Именно расположение комнат и стало отправной точкой в проектировании. Не понравился микро коридор напичканный дверями (3) и прихожая, в которой почти не развернуться (2). Решение отказаться от мансарды пришло не сразу. Вещи, которые жалко выкидыват

Любое строительство начинается с замысла. Как будет выглядеть ваш новый дом, сколько этажей, комнат, примерное расположение мебели, где и какие окна, общее расположение на территории и так далее.

В основном дачное строительство сводится к постройке двухэтажных зданий, с мансардным этажом. Оно и понятно, чем меньше будет площадь основания дома, тем больше останется места для посадок. Именно такой и есть наш старый дачный дом. Классический дачный вариант нас все-таки не устроил. Хотелось чего-то нового, светлого. Тут то и начался мучительный период выбора варианта нового дома.

Рисунок дома из проекта Дарина
Рисунок дома из проекта Дарина

Изначально выбор пал на найденный в сети проект «Дарина». Но там по большому счету понравилось только расположение комнат. Кухня-гостиная, две небольшие спальни, туалет. Именно расположение комнат и стало отправной точкой в проектировании. Не понравился микро коридор напичканный дверями (3) и прихожая, в которой почти не развернуться (2).

Первоначально выбранное расположение комнат
Первоначально выбранное расположение комнат

Решение отказаться от мансарды пришло не сразу. Вещи, которые жалко выкидывать, очень часто перевозятся на дачу. Но поскольку каких либо складских помещений обычно нет, то вещи попросту закидываются на второй этаж и захламляют жизненное пространство. Так что, меня таки убедили отказаться от второго этажа и был сделан набросок того что хочется увидеть.

  • Каркасный одноэтажный дом.
  • Холодный чердак.
  • Крыша 30-45 градусов.
  • Две спальни.
  • Кухня - гостиная.
  • Совмещенный санузел.
  • Без коридора.
  • Расположение комнат примерно как в «Дарине»

Интернет пестрит картинками и фото, но увы, чертежей такого, ну или хотя бы похожего домика, к сожалению найти не удалось.

Казалось бы, решение простое - надо обратиться к проектировщикам. Но и тут засада. Те кто делает дешево, проектируют реальную туфту. Примеров в интернете много. А в серьезную проектную организацию обращаться, это однозначно расстаться с достаточно крупной суммой. Да и честно признаться, тратиться на проект для простого дачного домика, при ограниченном бюджете, просто жаба душила.

И снова принято категоричное решение.

БУДУ ПРОЕКТИРОВАТЬ САМ!

Если вы дочитали до конца, ставьте лайк! Вам ничего не стоит, а мне приятно (>_<)

#строительство #загородный дом #новостройки #проектирование #каркасный дом