Добавить в корзинуПозвонить
Найти в Дзене

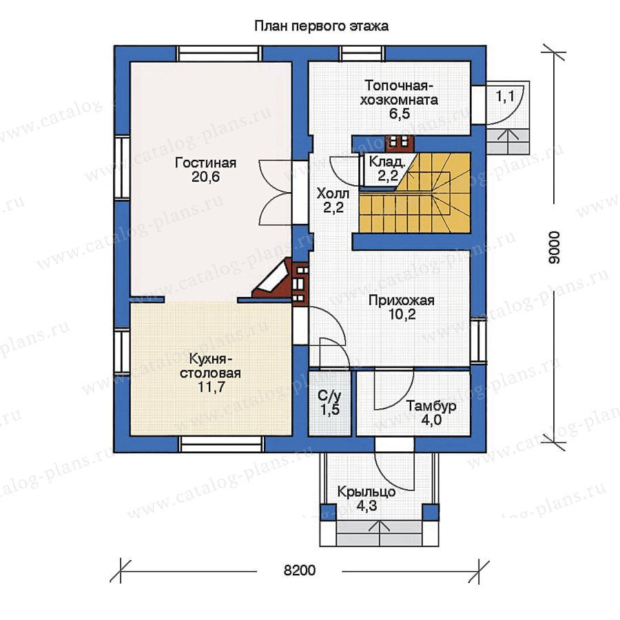
53-98 - Проект классического двухэтажного дома из газобетона, площадью 119м². Недорогой и удачный вариант для дачи.

Общая площадь: 119 м² Габариты: 9x8.2 м Наружные стены: газобетонные блоки 400 Фундамент: монолитная ж/б плита Перекрытия: по деревянным балкам Крыша: мансардная Кровля: битумная черепица Наружная отделка: штукатурка Цоколь: нет Архитектурный стиль: европейский Подробнее о проекте:
https://catalog-dom.ru/catalog/53-98

Общая площадь: 119 м²

Габариты: 9x8.2 м

Наружные стены: газобетонные блоки 400

Фундамент: монолитная ж/б плита

Перекрытия: по деревянным балкам

Крыша: мансардная

Кровля: битумная черепица

Наружная отделка: штукатурка

Цоколь: нет

Архитектурный стиль: европейский

Подробнее о проекте:
https://catalog-dom.ru/catalog/53-98