Добавить в корзинуПозвонить
Найти в Дзене
Алекса Пан

🤪 КАК СЧИТАТЬ ПЛОЩАДЬ ДОМА?🥵

Я не только и не столько парфюмерный блогер, прежде всего я - профессиональный архитектор с 12-летним стажем и архитектурной магистратурой за плечами. И это будет САМАЯ ВАЖНАЯ информация для тех, кто планирует сходить в строительную фирму и заказать проект и строительство дома. Сразу попрошу читателей высказаться,стоит ли мне вести архитектурный канал на Дзен, ибо опыт огромен и штырит от некоторых ситуаций не по-детски. Нужна ли вам такая инфа? Хочется писать КАПСОМ и орать, но буду сдерживаться. Много лет, абсолютно везде, где бы я не работала, повторяется одна и та же ситуация, когда клиент не понимает, сколько ему будет стоит его дом. Не понимает он по очень простой причине, он - не строитель и не архитектор. Причина первая и основная - клиенту не объясняют, ЧТО ТАКОЕ ПЛОЩАДЬ ДОМА? Которую потом умножат на ставку за квадратный метр и выставят счёт за дом. ‼️ВАЖНОЕ‼️... и было бы смешно, покуда не было так грустно! Сегодня я снова столкнулась с самым ГЛОБАЛЬНЫМ НЕДОРАЗУМЕНИЕМ, ко

Я не только и не столько парфюмерный блогер, прежде всего я - профессиональный архитектор с 12-летним стажем и архитектурной магистратурой за плечами. И это будет САМАЯ ВАЖНАЯ информация для тех, кто планирует сходить в строительную фирму и заказать проект и строительство дома.

Сразу попрошу читателей высказаться,стоит ли мне вести архитектурный канал на Дзен, ибо опыт огромен и штырит от некоторых ситуаций не по-детски. Нужна ли вам такая инфа?

Хочется писать КАПСОМ и орать, но буду сдерживаться. Много лет, абсолютно везде, где бы я не работала, повторяется одна и та же ситуация, когда клиент не понимает, сколько ему будет стоит его дом.

Не понимает он по очень простой причине, он - не строитель и не архитектор. Причина первая и основная - клиенту не объясняют, ЧТО ТАКОЕ ПЛОЩАДЬ ДОМА? Которую потом умножат на ставку за квадратный метр и выставят счёт за дом.

‼️ВАЖНОЕ‼️... и было бы смешно, покуда не было так грустно!

Сегодня я снова столкнулась с самым ГЛОБАЛЬНЫМ НЕДОРАЗУМЕНИЕМ, которое происходит пугающе регулярно... И это вопрос о том, КАК СЧИТАТЬ ПЛОЩАДь ДОМА? 😰😱 Идут годы, и стандарт по прежнему не сформирован, поскольку дома для вас строят частные компании... Хотя все нормативы есть в документе,который называется СП - строительные правила. Рассмотрим видение площадей разными людьми. Вот как они отвечают на вопрос, ЧТО ТАКОЕ ПЛОЩАДЬ ДОМА?

❓Клиент : - Площадь дома - это сумма площадей помещений в нём! Если я хочу дом 100 м.кв, то это означает ,что если я сложу все помещения, то получится 100 м.кв.

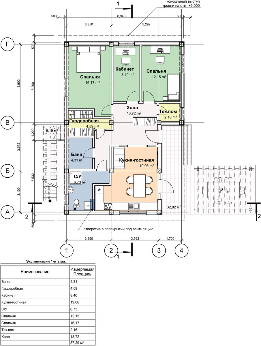
В экспликации помещений - внизу 87.29 - сумма площадей помещений
В экспликации помещений - внизу 87.29 - сумма площадей помещений

Этот параметр называется общая площадь дома - она же "сумма помещений". Сюда включается сумма всех помещений без вентшахт и каминов, а площадь занимаемая лестницей, считается понижающим коэффициентом. Террасы и балконы тоже включаются с понижающим коэффициентом. Так считают только "динозавры", и обычно это просто сумма помещений. Правила никто не чтит и не соблюдает. В фирмах сумму помещений считают без балконов и террас, лестницу включают полностью. Так считают и кадастровые инженеры.


❓Строитель: - Площадь дома - это сумма площадей, которая считается по внешнему контуру здания на каждом этаже + площадь крылец и террас. Дом 100 м.кв, который хочет клиент, это фактически дом гораздо больших размеров для строителя. В среднем перегородки и внешние стены занимают около 20-30% площади 😬То есть дом с суммой площадей 100 м.кв - это дом 130 м.кв.

Серая зона - строительная площадь. Зелёная - площадь террасы. Их сумма - площадь застройки.
Серая зона - строительная площадь. Зелёная - площадь террасы. Их сумма - площадь застройки.

По сути понятие строительной площади возникло для того,чтобы считать смету на строительство - цену дома. Именно ОНА определяет СТОИМОСТЬ ДОМА. Именно СТРОИТЕЛЬНУЮ ПЛОЩАДЬ путают с ОБЩЕЙ ПЛОЩАДЬЮ ДОМА! Некоторые умудряются спутать её с площадью застройки (площадь по контуру дома в уровне цоколя, в которую включаются крыльца и террасы )


❓Архитекторы и инженеры: - Площадь дома для разработки документации рассчитывается так же, как ее считает Строитель. Она умножается на ставку за квадратный метр. В среднем проектирование стоит 200-300 рублей за квадратный метр.
А есть ещё площадь застройки, строительный объем и много всего интересного,что влияет на стоимость строительства.
😜
Будьте максимально внимательны, когда договариваетесь о стройке дома! Просто спросите сначала,что означает эта многострадальная ПЛОЩАДЬ ДОМА, которую вам вписали в договор! 😏
🙂🙂🙂
Ваш архитектор - Панченко Александра!
#фибропеноблок #домизфибропеноблокакрым #заказатьпроекткоттеджа #архитекторпанченко #чтонужнодляпроектадома #архитектураКрыма #архитекторсевастополь #средиземноморскийстиль #архитектурныеуслуги #неоклассика #красивыедомаЮБК #домвстиленеоклассика #домюбк #роскошнаявилла #проектыкоттеджейчертежи #бесплатныепроектыкоттеджей #готовыйдомпроект #проектыдомовикоттеджей