Найти в Дзене
ДОМ ОТ ПРОФИ

Стоимость и комплектация шикарного проекта 27-246

Оглавление
3D визуализация дома по проекту 27-246
3D визуализация дома по проекту 27-246

Создание проекта с нуля в среднем занимает около 45 дней💪

Сейчас самое время приступать к проектированию и размеренно не торопясь все продумать и спланировать⏰
Пока идет зима и подготовка к строительному сезону.
Еще не все места заняты в очереди на строительство.

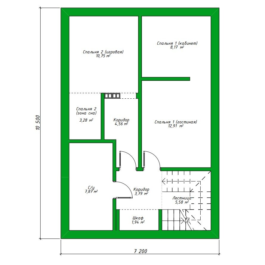
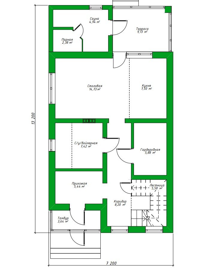
ПАРАМЕТРЫ ДОМА:

  • Общая площадь - 246 м²
  • Площадь помещений - 187 м²
  • Высота 1-го этажа - 3 м
  • Высота 2-го этажа - 3 м
  • Габариты - 9,2 х 7,2 м

КОМПЛЕКТАЦИЯ ДОМА:

  • Фундамент УРФ лайт;
  • Перекрытия монолитные железобетонные;
  • Несущие стены - газобетонный блок 375, 250 мм;
  • Ненесущие стены - блок 150 мм;
  • Балочное чердачное перекрытие с утеплением 200 мм;
  • Кровля - стропильная кровля с пароизоляцией, гидроизоляцией и покрытием цементно-песчаной черепицей со снегозадержанием.
Дом, построенный нами по проекту 27-246, в г. Домодедово, в 2019 го
Дом, построенный нами по проекту 27-246, в г. Домодедово, в 2019 го

Как вы можете получить проект 27-246 :

1. БЕСПЛАТНО! При заключении с нами договора на строительство🎁

2. Купить готовый 27-246 – 61 500 рублей. По нашим чертежам вы сможете построить дом сами.

⚠️Изучите наш каталог проектов.
Из 360+ вариантов Вы точно подберете дом по своим потребностям и бюджету.

3. Разработать новый проект, взяв за основу 27-246 – 147 600 рублей.

Наши архитекторы учтут все ваши пожелания.

4. Индивидуальный проект - 600 руб/кв.м

5. Посетить БЕСПЛАТНОЕ ПРОЕКТИРОВАНИЕ в нашем выставочном доме.

Архитектор за 2-часовую встречу с Вами разработает планировки и 3D-модель Вашего будущего дома с учетом всех Ваших пожеланий.

Вы получите точную стоимость строительства Вашего дома.

Наш выставочный дом, построенный нами по проекту 22-151, в Пушкинском р-не в 2018 г
Наш выставочный дом, построенный нами по проекту 22-151, в Пушкинском р-не в 2018 г

А еще это отличная возможность посетить наш выставочный дом со вторым светом, 4-мя спальнями и террасой, в котором и будет проходить встреча.

У Вас уже есть эскизы, картинки или планировки дома мечты?

Наша команда архитекторов во главе с инженером-конструктором разработает для вас индивидуальный проект🏡

Пишите нам в наш телеграмм бот «каталог» и получите полный каталог проектов💌