Добавить в корзинуПозвонить
Найти в Дзене
ЭТО ВАШ ИНТЕРЬЕР

Дизайнер выжал максимум из крохотной "однушки" площадью 28 кв метров, где будет жить семья с ребенком

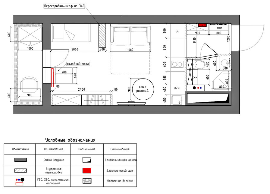
Для наших героев эта квартира является первым самостоятельным жильем. Хоть квартира и имеет крошечную площадь, всего лишь 28 кв. метров, здесь удалось уместить всё самое необходимое для жизни. Получилось скромно, бюджетно, но для такой площади довольно функционально. Проект Прихожая Прихожую, как и всю квартиру, оформили в светлой цветовой гамме. Стены покрашены белой краской, а на полу уложена контрастная плитка. Справа от входной двери разместили открытую вешалку для одежды, небольшую лавочку и калошницу. Комната Комнату пришлось разбить на три функциональные зоны: кухню, гостиную и детскую. При входе расположилась кухонная зона с линейным белым гарнитуром. Фартук выложен белой плиткой "кабанчик". Стены с двух сторон от гарнитура покрасили графитовой краской, на которой можно писать и оставлять заметки. Зона гостиной расположилась в центре комнаты. На полу уложили ламинат. С одной стороны поставили раскладной диван, который является спальным местом для хозяев, а на противоположной ст
Оглавление

Для наших героев эта квартира является первым самостоятельным жильем. Хоть квартира и имеет крошечную площадь, всего лишь 28 кв. метров, здесь удалось уместить всё самое необходимое для жизни. Получилось скромно, бюджетно, но для такой площади довольно функционально.

Проект

  • Местонахождение: г. Санкт-Петербург
  • Площадь квартиры: 28 кв. метров
  • Владельцы: молодая семья

Прихожая

Прихожую, как и всю квартиру, оформили в светлой цветовой гамме. Стены покрашены белой краской, а на полу уложена контрастная плитка. Справа от входной двери разместили открытую вешалку для одежды, небольшую лавочку и калошницу.

-2

Комната

Комнату пришлось разбить на три функциональные зоны: кухню, гостиную и детскую. При входе расположилась кухонная зона с линейным белым гарнитуром. Фартук выложен белой плиткой "кабанчик". Стены с двух сторон от гарнитура покрасили графитовой краской, на которой можно писать и оставлять заметки.

Зона гостиной расположилась в центре комнаты. На полу уложили ламинат. С одной стороны поставили раскладной диван, который является спальным местом для хозяев, а на противоположной стороне появилась столовая группа с телевизором.

Зону у окна отдали под детскую. Здесь разместили полноценное спальное место в виде кровати. У окна организовали рабочее место со складным столиком. Слева от стола встал большой шкаф.

Балкон

Балкон полностью утеплили. На полу плитка, а стены покрасили краской. С правой стороны встал стеллаж для книг, а с левой стороны организовали рабочее место для хозяина квартиры.

Ванная комната

Стены в санузле облицевали классической белой плиткой, а вот пол выложен контрастной плиткой с узорами. Вместо ванны установлен душ. Слева от унитаза встала стиральная машина, часть которой утопили в стену.

Если вам понравилась статья, то не забудьте поставить лайк и подписаться, чтобы не пропустить новый материал!

Так же пишите в комментариях, что вам понравилось в этом проекте, а что вызывает сомнения.

Если вам будет интересно, то заходите на мой второй новый канал)