Найти в Дзене

Простой каркасный дом 6х10 с подсчётом материалов.

Друзья, привет! В этом посте покажу проект каркасного дома, размером 10 х 6 метров. Площадь дома составляет 52 кв.м. В доме расположены 2 спальни, санузел, кухня-гостиная и тамбур. У входа в дом небольшое крытое крыльцо. Фундамент дома - винтовые сваи диам. 108 мм. Несущий каркас дома выполнен из пиломатериалов сечением 50х100, 50х150 и 50х200 мм. Подсчёт материалов для строительства дома 6х10 Подробный проект для сборки этого дома по ссылке https://www.karkasproekt.com/kd-51 Каталог готовых проектов https://www.karkasproekt.com/Проекты Группа ВКонтакте https://vk.com/karkas_dom_proekt С уважением, Дмитрий.

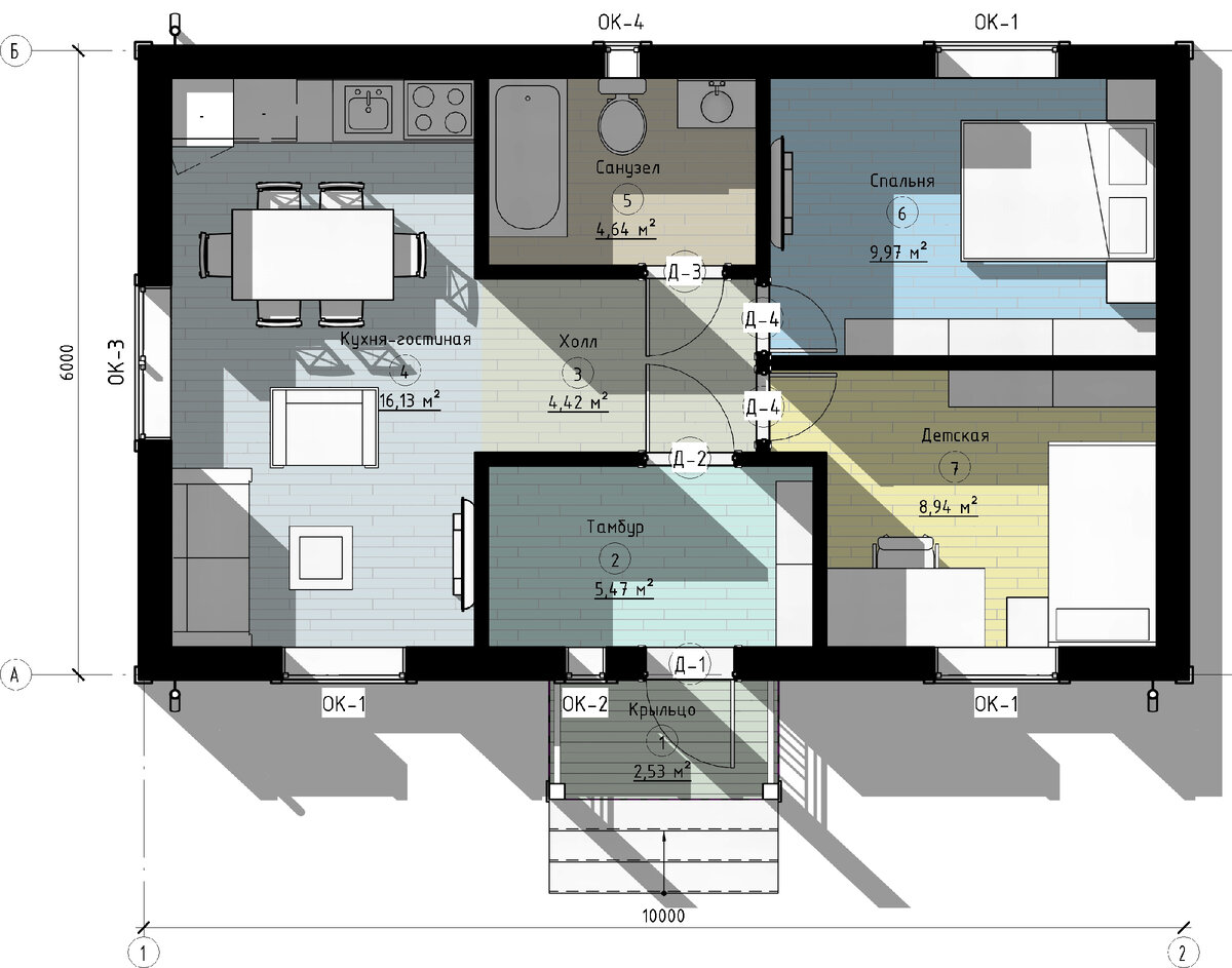
Друзья, привет!

В этом посте покажу проект каркасного дома, размером 10 х 6 метров. Площадь дома составляет 52 кв.м.

-2

В доме расположены 2 спальни, санузел, кухня-гостиная и тамбур. У входа в дом небольшое крытое крыльцо.

-3

Фундамент дома - винтовые сваи диам. 108 мм. Несущий каркас дома выполнен из пиломатериалов сечением 50х100, 50х150 и 50х200 мм.

-4

Подсчёт материалов для строительства дома 6х10

-5

Подробный проект для сборки этого дома по ссылке https://www.karkasproekt.com/kd-51

Каталог готовых проектов https://www.karkasproekt.com/Проекты

Группа ВКонтакте https://vk.com/karkas_dom_proekt

С уважением, Дмитрий.