Найти в Дзене

Считаем он-лайн штукатурку стен. Работы+материал.

Когда в вашем ремонте уже точно определены все помещения, и межкомнатные перегородки стоят на своих местах, можно приступить к следующему этапу ремонта - выравнивание стен. Выравнивание стен может производиться как штукатурной смесью, так и листами гипсокартона. Если имеющиеся стены имеют очень большие отклонения по плоскости, то такие стены следует снести, и построить заново и ровно! Это обойдется дешевле и соответственно качество выравнивания будет намного лучше, чем если выравнивать большие отклонения стен.
Итак, переходим на сайт сметар.ру, выбираем в разделе "калькуляторы" интересующий нас под названием "выравнивание стен (штукатурка)" и приступаем считать работы и материал. Шаг 1. Сперва отвечаем на вопрос, знаем ли мы всю площадь наших стен или нет?! Если да, то ставим выбор на "я знаю площадь стен" и указываем это в соответствующем поле. Для примера укажем площадь стен 152 м2. Высота потолка в нашей квартире 2,8 м. 👇 Если вы не знаете площадь всех стен и тем более не вычитал

Когда в вашем ремонте уже точно определены все помещения, и межкомнатные перегородки стоят на своих местах, можно приступить к следующему этапу ремонта - выравнивание стен. Выравнивание стен может производиться как штукатурной смесью, так и листами гипсокартона. Если имеющиеся стены имеют очень большие отклонения по плоскости, то такие стены следует снести, и построить заново и ровно! Это обойдется дешевле и соответственно качество выравнивания будет намного лучше, чем если выравнивать большие отклонения стен.

Итак, переходим на сайт сметар.ру, выбираем в разделе "калькуляторы" интересующий нас под названием "выравнивание стен (штукатурка)" и приступаем считать работы и материал.

Шаг 1. Сперва отвечаем на вопрос, знаем ли мы всю площадь наших стен или нет?! Если да, то ставим выбор на "я знаю площадь стен" и указываем это в соответствующем поле. Для примера укажем площадь стен 152 м2.

Высота потолка в нашей квартире 2,8 м. 👇

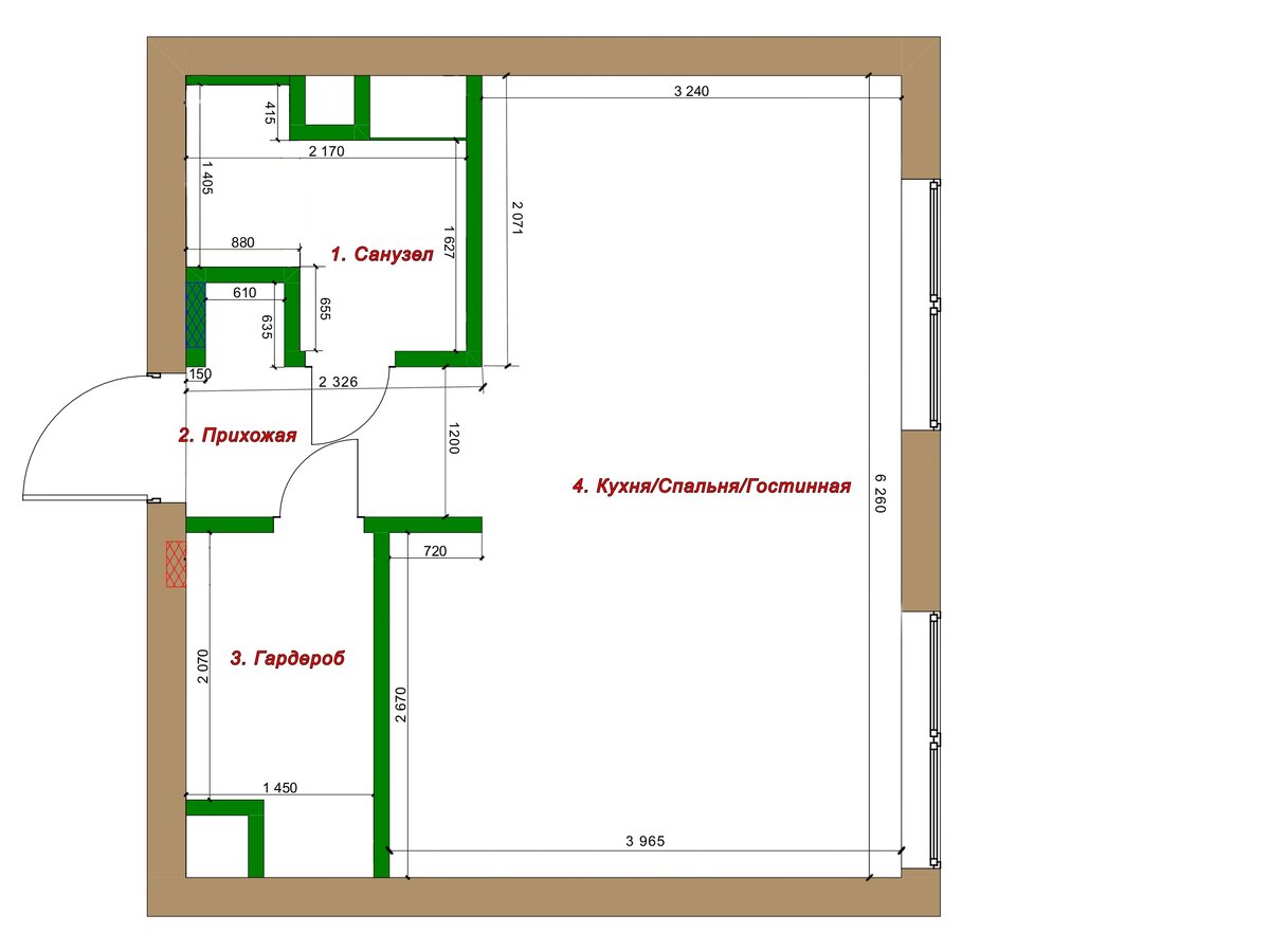
Если вы не знаете площадь всех стен и тем более не вычитали площадь проемов окон и дверей, то нажимаем на "всю квартиру по комнатам" и видим, что калькулятор предлагает выбрать, в каких помещениях вашей квартиры будете выравнивать стены. Я покажу на примере проекта квартиры, который выглядит так: 👇

-2

Имеем 4 помещения:

1. Санузел;

2. Прихожая;

3. Гардероб;

4. Кухня/Спальня/Гостиная.

Теперь в калькуляторе выбираем эти помещения и указываем их длину и ширину или периметр. У нас получилась следующая картина: для санузла , прихожки и гостиной указали периметры, а для гардероба указали длину и ширину. 👇

-3

Таким образом мы обозначили длину всех стен внутри каждого помещения, и зная высоту потолка легко можем получить общую площадь выравнивания. Но, чтобы не оставалось лишнего материала после штукатурки стен, мы должны вычесть площадь всех проемов. А это проемы для дверей и оконные проемы.

Шаг 2. Для того чтобы указать габариты проемов дверей, надо понимать, какие двери будем устанавливать. В калькуляторе на картинке для примера изображены 3 проема с разной шириной, но с одинаковой высотой 240 см. Посмотрим, какие размеры дверей у нас в проекте: 👇

-4

В проекте у нас входная стандартная дверь 1м на 2м, и две одинаковых двери в санузел и гардероб. Заносим эти данные в калькулятор и должны получить такую картину: 👇

-5

Шаг 3. Абсолютно аналогично мы указываем в калькуляторе размеры оконных проемов, высоту и ширину. Опять смотрим в проект и видим, что ширина каждого окна = 2 м, а высота = 2,7м. 👇

-6

Итак, мы имеем следующие данные в калькуляторе: 👇

-7

Шаг 4. Следующим шагом в калькуляторе нужно указать число, соответствующее количеству внешних углов, которые есть в нашей квартире. Посчитаем такие углы в нашем проекте. Обращаю внимание, что внешние углы оконных откосов и углы откосов входной двери считать не нужно, калькулятор уже на шаге 2 и шаге 3 эти данные получил.

-8

Итак, я посчитал все внешние углы, их получилось 6 штук. Напишите в комментариях, кто догадался, почему углы под цифрой 7 нам не нужны? Подсказка - углы под цифрой 7 находятся в санузле.

Указываем 6 внешних углов в калькуляторе 👇

-9

Шаг 5. Здесь калькулятор спрашивает, будем ли мы выравнивать оконные откосы штукатуркой? Можно еще выравнять гипсокартоном, но так как штукатурки у нас полно на все стены, можно еще рассчитать несколько мешков и на откосы. Я поставлю "да, будем выравнивать". В результатах расчетов мы увидим, для чего нужен этот шаг. 👇

-10

Шаг 6. Для выравнивания свежепостроенных стен, особенно в новостройках, люди часто сталкиваются с таким явлением, как усадка дома. Другими словами стены могут треснуть. Поэтому, калькулятор узнает у нас, дополнить ли выравнивающий слой штукатурки армирующей сеткой? Да, трещина может появиться, но будет не такого большого размера, а в некоторых случаях трещина вообще не проявится. Я укажу для примера расчета "да, посчитать с сеткой". 👇

-11

Шаг 7. На этом завершающем шаге мы указываем в калькуляторе, нужен ли нам помост для проведения работ? Обычно, такой помост делают на стадии возведения стен. Но если у вас такого нет, вы можете поставить галочку "включить материал для туры в список".

Итак, основной путь пройден, теперь мы готовы нажать на кнопку "к расчетам" и переходим на страницу с расчетом стоимости работ, то есть то, что заказчик оплачивает мастерам.

-12

Как видим, штукатурка почти 100 м2 стен по маякам стоит 58 тыс. рублей, но с выравниванием оконных откосов, формированием внешних углов и армированием стен сеткой общая стоимость данного этапа ремонта обойдется заказчику аж в 100 000 рублей.

Ну что, нажимаем на кнопку перейти "к списку материалов" 👇

-13

Какой можно сделать вывод? На штукатурку почти 100 м2 стен и откосов двух окон нам потребуется 53 мешка штукатурки. Расчет не подразумевает большие отклонения стен, поэтому при каждом завале стены хотя бы на 1 см это может добавить лишний мешок штукатурки.

Остальной материал понадобится, если у вас вообще нет ничего для этапа выравнивания. Если что-то имеется, сверяйте со списком и корректируйте количество.

На этом расчет этапа выравнивания стен завершен, и мы получили реальные цифры как по стоимости работ для оплаты мастерам, а также узнали необходимое количество чернового материала.

Если у вас возникли вопросы или предложения, напишите здесь в комментариях или оставьте обратную связь на нашем сайте. Мы всегда будем рады помочь вам в расчетах, проконсультировать вас по телефону, а также произвести замер непосредственно на вашем объекте ремонта.

С уважением, команда СМЕТАР.РУ