Найти в Дзене
DESIGNER

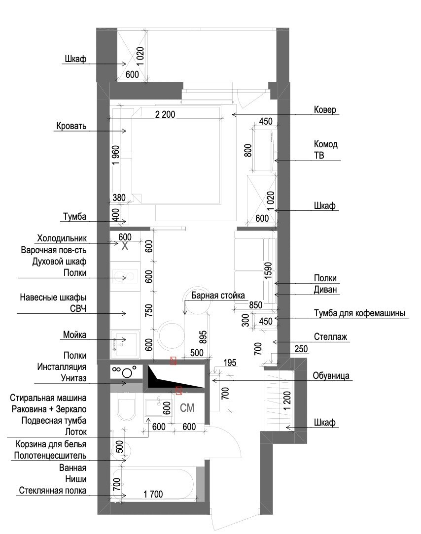
Милейшая и крайне очаровательная студия на 28м² для молодой девушки.

Здравствуйте и добро пожаловать на канал DESIGNER. Подписывайтесь и ставьте лайки - это очень помогает развитию канала. Квартира – это место отдыха, досуга и проживания в целом. Поэтому жильё должно соответствовать всем критериям хозяина. Но как грамотно организовать пространство, если общая площадь квартиры еле достигает 30м²? Сегодня мы рассмотрим качественный и очень нежный проект студии на 28м². Помимо крайне приятного внешнего вида, квартира обладает качественной отделкой и неплохим функционалом. Начнём с прихожей зоны. Итак, стены и потолок были покрашены в белый без использования плинтусов. В качестве напольного покрытия выложен светлый кафель. Если говорить о наполненности прихожей, то мебель удалось установиться только через метр от самого входа, что довольно неудобно. Здесь мы видим обувницу белого цвета и шкаф-купе с зеркальными дверцами. Переходим в ванную комнату. Она визуально ничем не отличается от прихожей, разве что, в ней используется больше элементов из дерева. Справ
Оглавление

Здравствуйте и добро пожаловать на канал DESIGNER. Подписывайтесь и ставьте лайки - это очень помогает развитию канала.

Квартира – это место отдыха, досуга и проживания в целом. Поэтому жильё должно соответствовать всем критериям хозяина. Но как грамотно организовать пространство, если общая площадь квартиры еле достигает 30м²?

Сегодня мы рассмотрим качественный и очень нежный проект студии на 28м². Помимо крайне приятного внешнего вида, квартира обладает качественной отделкой и неплохим функционалом.

Взято из: https://vk.com/kvartirastudio
Взято из: https://vk.com/kvartirastudio

Начнём с прихожей зоны. Итак, стены и потолок были покрашены в белый без использования плинтусов. В качестве напольного покрытия выложен светлый кафель.

Взято из: https://vk.com/kvartirastudio
Взято из: https://vk.com/kvartirastudio

Если говорить о наполненности прихожей, то мебель удалось установиться только через метр от самого входа, что довольно неудобно. Здесь мы видим обувницу белого цвета и шкаф-купе с зеркальными дверцами.

Взято из: https://vk.com/kvartirastudio
Взято из: https://vk.com/kvartirastudio

Переходим в ванную комнату. Она визуально ничем не отличается от прихожей, разве что, в ней используется больше элементов из дерева.

Справа от входа установлена подвесная тумба белого цвета с накладной раковиной, широкой столешницей и местом под стиральную машинку.

Взято из: https://vk.com/kvartirastudio
Взято из: https://vk.com/kvartirastudio

Чуть далее расположен подвесной унитаз с инсталляцией и ряд полочек под различную утварь.

Слева же от входа установлена ванна со стеклянной ширмой.

Взято из: https://vk.com/kvartirastudio
Взято из: https://vk.com/kvartirastudio

Далее мы переходим в основную комнату. Стены визуально никак не отличаются от ранее виденного дизайна, а в качестве напольного покрытия используется светлый ламинат.

Практически сходу нас встречает розовый диван, небольшой белый стеллаж и ряд полочек. Смотрится очень аккуратно и нежно.

Взято из: https://vk.com/kvartirastudio
Взято из: https://vk.com/kvartirastudio

Напротив дивана располагается кухня. Гарнитур был подобран в белом цвете с некоторым количеством светлой древесины.

Кухня получилась небольшой, но вполне функциональной. В наличии имеется вся нужная техника, небольшое пространство для готовки и совсем малое количество места для хранения.

Взято из: https://vk.com/kvartirastudio
Взято из: https://vk.com/kvartirastudio

Обеденная зона представлена мини-подобием барной стойки с двумя высокими стульями в розовом оформлении.

Взято из: https://vk.com/kvartirastudio
Взято из: https://vk.com/kvartirastudio

Далее, за стеклянной ширмой, расположена спальня. В центре комнаты установлена кровать светло-серого цвета и пара прикроватных тумб.

Взято из: https://vk.com/kvartirastudio
Взято из: https://vk.com/kvartirastudio

Напротив же кровати установлен белый комод и шкаф.

Взято из: https://vk.com/kvartirastudio
Взято из: https://vk.com/kvartirastudio

Что в итоге?

Интерьер получился довольно простым, но симпатичным и крайне нежным. Отдельно хочется выделить качество организации пространства.

На этом у меня всё, не забывайте подписываться на канал и ставить лайки. До новых встреч.