Добавить в корзинуПозвонить
Найти в Дзене
ЭТО ВАШ ИНТЕРЬЕР

Женщина купила "однушку" в соседнем подъезде для своей мамы и полностью её обустроила

Наша героиня давно хотела переселить свою маму поближе к себе, и вот подвернулся хороший вариант в соседнем подъезде. Новый интерьер небольшой квартиры должен был быть красивым и функциональным, так как мама переезжает сюда из частного дома. Проект Прихожая Входную группу выполнили в светлых тонах. Напольное покрытие выложено ламинатом. Стену с левой стороны от входной двери оформили зеркальными панелями. Ближе к санузлу разместили шкаф для одежды. Кухня Кухонный гарнитур установили буквой Г. Нижний ярус выполнен в зеленом цвете, а верхний имеет молочный оттенок. Раковину установили возле окна. Фартук выложен плиткой с узорами. Напротив газовой плиты расположилась компактная столовая группа. Комната Стены в комнате оклеили светлыми обоями с орнаментом. В центре расположился большой раскладной диван с креслом. Диван так же выполняет роль спального места (это было пожелание мамы). Вдоль дальней стены от входа в комнату установили большую систему хранения с книжными полками. Остекление ба
Оглавление

Наша героиня давно хотела переселить свою маму поближе к себе, и вот подвернулся хороший вариант в соседнем подъезде. Новый интерьер небольшой квартиры должен был быть красивым и функциональным, так как мама переезжает сюда из частного дома.

Проект

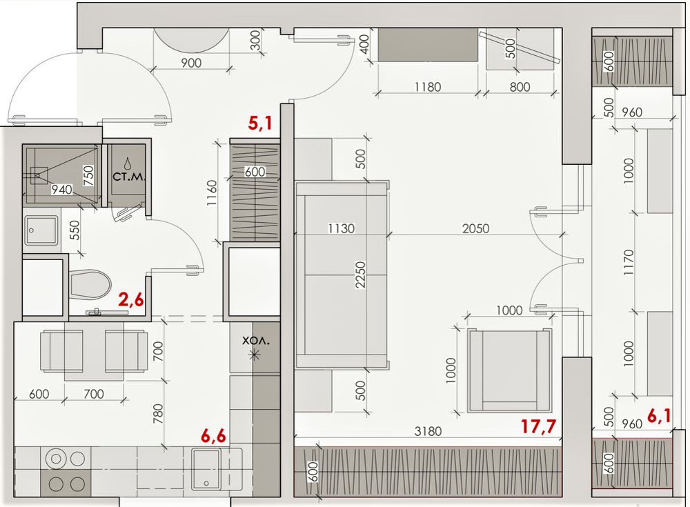
  • Местонахождение: г. Москва
  • Площадь квартиры: 38,1 кв. метров
  • Владельцы: мама заказчицы

Прихожая

Входную группу выполнили в светлых тонах. Напольное покрытие выложено ламинатом. Стену с левой стороны от входной двери оформили зеркальными панелями. Ближе к санузлу разместили шкаф для одежды.

Кухня

Кухонный гарнитур установили буквой Г. Нижний ярус выполнен в зеленом цвете, а верхний имеет молочный оттенок. Раковину установили возле окна. Фартук выложен плиткой с узорами. Напротив газовой плиты расположилась компактная столовая группа.

Комната

Стены в комнате оклеили светлыми обоями с орнаментом. В центре расположился большой раскладной диван с креслом. Диван так же выполняет роль спального места (это было пожелание мамы). Вдоль дальней стены от входа в комнату установили большую систему хранения с книжными полками.

Остекление балкона полностью заменили на новое. На полу уложили плитку. С двух сторон поставили шкафы для всего необходимого.

-5

Ванная комната

Стены в санузле покрасили влагостойкой краской. Напольное покрытие — плитка. Вместо ванны установили душевую кабину. В зоне душевой стены выложены белой плиткой. Справа от душа появилась полноразмерная стиральная машина.

-6

Если вам понравилась статья, то не забудьте поставить лайк и подписаться, чтобы не пропустить новый материал!

Так же пишите в комментариях, что вам понравилось в этом проекте, а что вызывает сомнения.

Если вам будет интересно, то заходите на мой второй новый канал)