Найти в Дзене
Денис Шибанов

Какой площади должен быть дом при строительстве на продажу?

Добрый день! Меня зовут Денис Шибанов, я архитектор и руководитель архитектурного бюро SHIBANOV ARCHITECTS. Поделюсь своим опытом - какой оптимально площади должен быть дом, который вы строите для продажи. Начнем с общего вопроса: какой площади дом будет действительно комфортен? К этому вопросу нужно добавить еще вопросы - Комфортен для кого? Сколько членов семьи? А какого возраста жильцы? А кроме дома у них есть квартира? Определите целевую аудиторию Для людей среднего достатка обычно дом 200-300 м2 является комфортным. Но если в семье 4 ребенка, то состав помещений будет один, а если - 0, то совсем иной, при той же площади. Когда вы задумываете построить высоколиквидный дом, очень важно понять кто ваш покупатель - то есть кого на рынке больше или кто охотнее купит дом. Заметьте, что это абсолютно разные категории людей - многие не готовы переплачивать за готовый дом, но есть те, кто ни за что не начнет строительство своего дома - ему проще купить готовый. Семья с 2-мя детьми Но все-т
Оглавление

Добрый день! Меня зовут Денис Шибанов, я архитектор и руководитель архитектурного бюро SHIBANOV ARCHITECTS. Поделюсь своим опытом - какой оптимально площади должен быть дом, который вы строите для продажи.

Начнем с общего вопроса: какой площади дом будет действительно комфортен?

К этому вопросу нужно добавить еще вопросы - Комфортен для кого? Сколько членов семьи? А какого возраста жильцы? А кроме дома у них есть квартира?

Определите целевую аудиторию

Для людей среднего достатка обычно дом 200-300 м2 является комфортным. Но если в семье 4 ребенка, то состав помещений будет один, а если - 0, то совсем иной, при той же площади.

Когда вы задумываете построить высоколиквидный дом, очень важно понять кто ваш покупатель - то есть кого на рынке больше или кто охотнее купит дом. Заметьте, что это абсолютно разные категории людей - многие не готовы переплачивать за готовый дом, но есть те, кто ни за что не начнет строительство своего дома - ему проще купить готовый.

Семья с 2-мя детьми

Но все-таки правила комфортной площади есть. Сейчас разберем разные ценовые сегменты на примере среднестатистической семьи, где есть муж, жена и 2 ребенка. У них нет домашних животных, бабушки/дедушки не живут с ними.

Эконом

Главное правило этого сегмента - чем больше комнат, тем лучше. Людям не так важна высота потолков, площадь помещений - главное функция и чтобы не дорого. Площадь такого дома должна быть от 80 до 120 м2.

В таком доме разместится 2-3 спальни, 1 санузел, будет общая небольшая кухня-гостиная, а вход в эти помещения должен быть прямо из общей зоны - то есть без коридоров, для экономии площади. Не стоит забывать о помещении котельной, небольшой нише для гардероба и о месте для стиральной машины в санузле или котельной.

Желательно также предусмотреть выход на террасу - я бы не стал делать ее с навесом, лучше сделать стоимость дома более привлекательной, но конструктивно оставить возможность новым жильцам добавить навес над террасой и навес для авто.

Планировка небольшого дома на продажу 80 м2, который мы разработали для КП Горское Парк
Планировка небольшого дома на продажу 80 м2, который мы разработали для КП Горское Парк

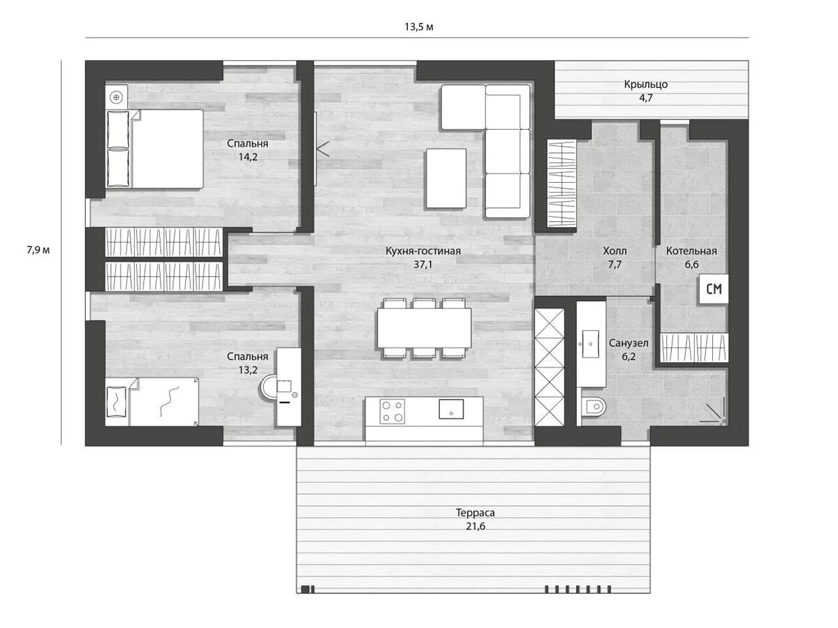
Комфорт

В этом сегменте у людей появляется запрос на комфорт. Появляется необходимость в полноценных гардеробах, более просторных комнатах. Площадь таких домов может быть от 100 до 160 м2.

В таком доме также лучше разместить 3 основных спальни и 2 санузла - можно сделать один гостевой при входе, где есть только унитаз и раковина и один полноценный, ближе к спальням, либо 1 с/у для детских спален, а второй - для родителей. Сами комнаты должны иметь места для хранения одежды и должны иметь площадь не менее 14 м2.

Здесь также можно предусмотреть террасу с навесом или без. Как вариант - использовать выдвижную маркизу, это недорого и довольно удобно.

Планировка дома комфорт-класса на продажу 115 м2, который мы разработали для КП Горское Парк
Планировка дома комфорт-класса на продажу 115 м2, который мы разработали для КП Горское Парк

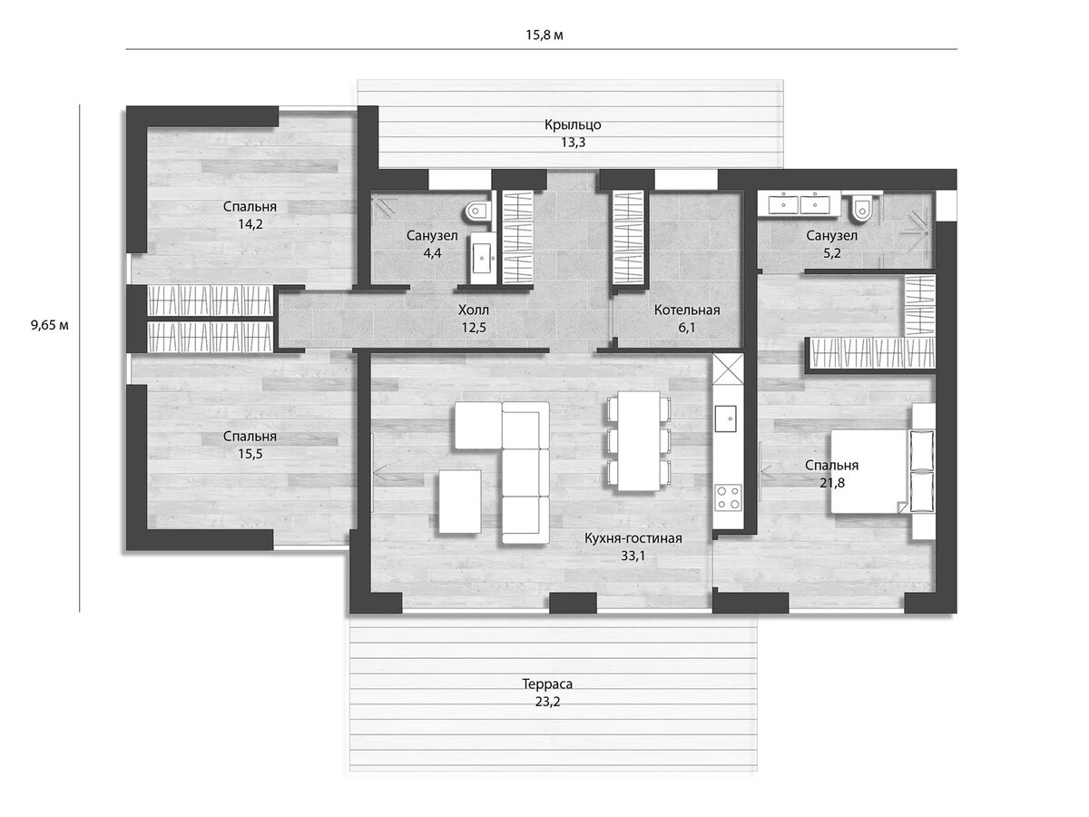
Комфорт+

Здесь важно за небольшой бюджет добавить в дом не просто "полезные" помещения, а то, что для души. Я говорю о небольшой сауне или хамам, кабинете, мастерской или гостевой спальне. На террасе будет здорово предусмотреть место для стационарной летней кухни с барбекю. Здесь можно сразу предусмотреть и небольшой навес для авто.

Площадь дома в этом сегменте от 140 до 200 м2

Планировка дома класса комфорт+ на продажу 140 м2, который мы разработали для КП Горское Парк
Планировка дома класса комфорт+ на продажу 140 м2, который мы разработали для КП Горское Парк

Бизнес

В этом сегменте важно создать статус, не только комфорт. В самом внешнем виде дома уже должно читаться, что человек добился чего-то в жизни. На фасадах лучше использовать кирпич или подобный долговечный материал, ассоциирующийся с надежностью.

Предусмотрите в таком доме отдельную кладовую для кухни, чтобы дома всегда был запас продуктов. Обязательно должен быть рабочий кабинет и отдельная гостевая спальня. Хорошо, если сразу будет предусмотрен гараж, пристроенный к дому, а также отдельная постирочная. Площадь таких домов от 180 м2.

Планировка дома бизнес класса на продажу 180 м2, который мы разработали для КП Горское Парк
Планировка дома бизнес класса на продажу 180 м2, который мы разработали для КП Горское Парк

Также популярностью пользуются дома премиум и люкс класса. Но здесь совсем другие законы - если будет интересно, пишите комментарии - расскажу как мы создавали загородной виллы 1680 м2.

Важно всегда строить соответствующего класса на правильном земельном участке и думать - кто ваш потенциальный клиент.

В следующих статьях расскажу:

  • Какой площади должен быть дом на продажу?
  • Делать дом с внутренней отделкой? А инженерные коммуникации все нужны?
  • Что должно быть в проекте?
  • Дома из каких материалов быстрее продаются?

Не забудьте подписаться, чтобы не пропустить!

О нас

Если Вы хотите доверить проектирование и сопровождение строительства дома нам, свяжитесь со мной в Telegram или WhatsApp

Мы создали более 90 объектов в 16 регионах России. Из флагманских проектов:

- Сайт архитектурного бюро
-
Instagram
-
Рассчитать стоимость вашего объекта