Добавить в корзинуПозвонить
Найти в Дзене
АиФ Ростов

В Ростове семь дорог в микрорайоне построят с участием инвесторов

В ростовском микрорайоне Левенцовка собираются построить семь участков дорог с участием средств инвесторов. Об этом сообщил сити-менеджер Алексей Логвиненко. Проект закажут частные компании, а сам город построит дороги. Не исключено, что инвесторами станут строительные компании, возводящие жильё в микрорайоне По словам Алексея Логвиненко, по такой схеме с 2019 по 2022 годы уже построили девять дорог в городе. Теперь в Левенцовке займутся дорогой по улице Жданова на участке от Еременко до Солженицына в 4-м микрорайоне. Также в рамках государственно-астного партнерства завершается подготовка проектной документации на строительство участков по улицам Ткачева, Еляна, Назарьков, Курсантов, 9-мая и Сталинградской. Ещё по одному участку дороги на улице Жданова уже есть положительное заключение экспертизы. Одна из новых дорог будет в Александровке. Она свяжет улицу Вересаева с бассейном и спортивным центром. Актуальные новости Ростова и области можно читать в нашем Telegram-канале и на страниц
   В Ростове семь дорог в микрорайоне построят с участием инвесторов
В Ростове семь дорог в микрорайоне построят с участием инвесторов

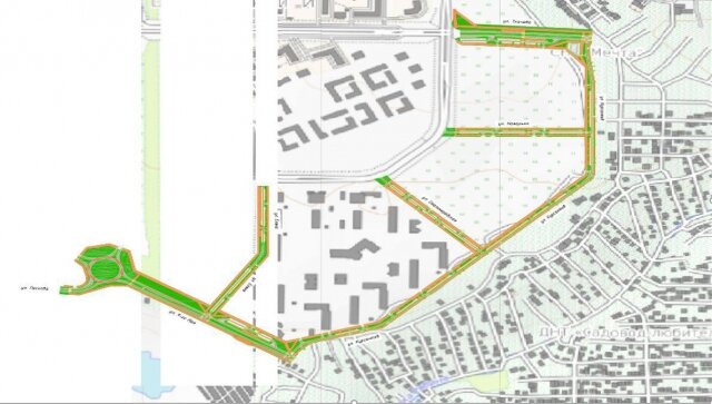
В ростовском микрорайоне Левенцовка собираются построить семь участков дорог с участием средств инвесторов. Об этом сообщил сити-менеджер Алексей Логвиненко.

Проект закажут частные компании, а сам город построит дороги. Не исключено, что инвесторами станут строительные компании, возводящие жильё в микрорайоне

По словам Алексея Логвиненко, по такой схеме с 2019 по 2022 годы уже построили девять дорог в городе. Теперь в Левенцовке займутся дорогой по улице Жданова на участке от Еременко до Солженицына в 4-м микрорайоне. Также в рамках государственно-астного партнерства завершается подготовка проектной документации на строительство участков по улицам Ткачева, Еляна, Назарьков, Курсантов, 9-мая и Сталинградской. Ещё по одному участку дороги на улице Жданова уже есть положительное заключение экспертизы.

Одна из новых дорог будет в Александровке. Она свяжет улицу Вересаева с бассейном и спортивным центром.

   Фото: администрация Ростова-на-Дону
Фото: администрация Ростова-на-Дону

Актуальные новости Ростова и области можно читать в нашем Telegram-канале и на странице ВКонтакте.