Добавить в корзинуПозвонить
Найти в Дзене

Как уместить 4 спальни и кухню-гостиную на 77 м²?

История клиентов LetWood Group, которые наконец нашли то, что давно искали! Будущее за индивидуальными планировками? Часто даже ЖК бизнес-класса предлагают довольно скудный выбор планировок — не всегда можно найти подходящую, особенно для большой семьи. Поэтому многие задумываются о строительстве собственного дома, где точно можно спроектировать просторную гостиную и отдельные комнаты для всех членов семьи. Однако и на рынке модульных домов бывает непросто найти желаемую планировку: •компании строят дома «под дачу или бизнес», не задумываясь об удобстве планировок для постоянного продвижения •или со скрипом идут на любые изменения, так как хотят изготавливать дома по готовым проектам, быстро и без долгих согласований. Поэтому в LetWood Group так часто приходят те, кому отказали в реализации уже в нескольких компаниях. Мы беремся за индивидуальные планировки и верим, что за ними будущее. Ведь такой подход дает людям возможность почувствовать: «Наконец-то я могу сделать по-своему, а не в
Оглавление

История клиентов LetWood Group, которые наконец нашли то, что давно искали!

Мы в LetWood Group всегда с азартом беремся за случаи, когда клиенты приходят со словами: «Нам отказали в трех компаниях…».
Мы в LetWood Group всегда с азартом беремся за случаи, когда клиенты приходят со словами: «Нам отказали в трех компаниях…».

Будущее за индивидуальными планировками?

Часто даже ЖК бизнес-класса предлагают довольно скудный выбор планировок — не всегда можно найти подходящую, особенно для большой семьи. Поэтому многие задумываются о строительстве собственного дома, где точно можно спроектировать просторную гостиную и отдельные комнаты для всех членов семьи.

Однако и на рынке модульных домов бывает непросто найти желаемую планировку:

•компании строят дома «под дачу или бизнес», не задумываясь об удобстве планировок для постоянного продвижения

•или со скрипом идут на любые изменения, так как хотят изготавливать дома по готовым проектам, быстро и без долгих согласований.

Поэтому в LetWood Group так часто приходят те, кому отказали в реализации уже в нескольких компаниях. Мы беремся за индивидуальные планировки и верим, что за ними будущее. Ведь такой подход дает людям возможность почувствовать: «Наконец-то я могу сделать по-своему, а не в очередной раз пойти на компромисс».

В чем особенность дома Dacar 77?

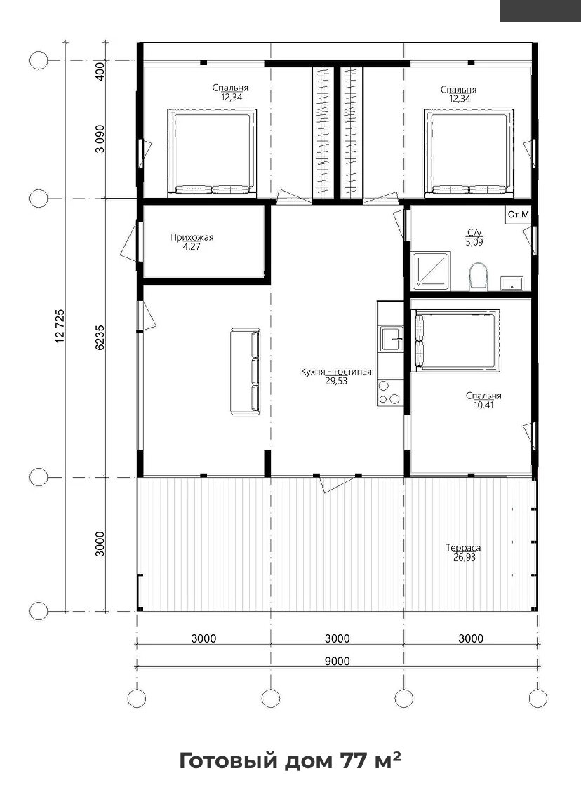
Dacar 77 — популярная модель модульного дома в LetWood Group. В нем продумано все для комфортной жизни, поэтому его часто выбирают те, кто хочет переехать за город.

На готовом плане проекта вы видите просторную кухню-гостиную, которая будет залита светом по утрам, три отдельные комнаты (одна размещена в отдалении от других, идеально для родительской спальни), прихожую и уютную террасу 26м2.

-2

Dacar 77 представлен с одной доступной планировкой, однако мы не лишаем наших клиентов главной радости переезда в загородный дом — возможности переделать все под свои потребности.

Что мы изменили в планировке Dacar 77?

Семья, которая к нам обратилась, искала дом примерно 80м2 с 4-мя отдельными спальнями. Клиентам не хотелось довольствоваться предложениями других компаний организовать 4-е спальное место в гостиной.

Поэтому мы решились доработать наш стандартный проект. Что именно мы сделали?

•Уменьшили пространство гостиной

Но за счет панорамных окон она осталась довольно светлой. И получилась вовсе не маленькая кухня, на которой едва умещается стол, а довольно-таки просторная обеденная зона.

-3

На фото — рабочий процесс, однако уже можно увидеть, что гостиная получилась светлой и просторной несмотря на уменьшение площади.

•Спроектировали еще одну спальню

Теперь в доме на 77м2 каждый член семьи стал обладателем собственной комнаты. 12м2 — это комфортный минимум для спальни, на него мы и ориентировались по просьбе клиента (но вообще площадь спальни мы можем увеличить, если это необходимо).
Теперь в доме на 77м2 каждый член семьи стал обладателем собственной комнаты. 12м2 — это комфортный минимум для спальни, на него мы и ориентировались по просьбе клиента (но вообще площадь спальни мы можем увеличить, если это необходимо).

Панорамные окна расширяют пространство небольшой спальни.

•Увеличили площадь террасы

Одну из террас было решено приспособить под обеденную зону на свежем воздухе, а вторую сделать проходной. Все по желанию заказчика!

-5

Дверь на террасу

Что еще можно изменить в наших планировках?

Мы позволяем клиентам почувствовать себя настоящими творцами — свободно мечтать о планировке собственного дома. Потому что мы всегда готовы взяться даже за сложный индивидуальный проект:

•Добавить/убрать окна

Панорамное окно делает пространство больше, светлее и современнее. Мы не стремимся к футуристичным домам из стекла, но рекомендуем не бояться панорамных окон в гостиной и даже спальне — это очень красиво.

-6

•Добавить прихожую

Это то, что нужно учесть в планировке дома, если вы покупаете его для постоянного проживания.

В LetWood Group есть проекты, не предусматривающие прихожих — они, как правило, рассчитаны для покупки под бизнес или под дачу. Но в индивидуальном порядке мы готовы добавить прихожую даже в дома с небольшим метражом.

•Оборудовать сауну

Новый уровень комфорта загородной жизни — это собственный дом с сауной. Мы готовы обсудить размещение электросауны в доме с любым метражом.

-7

•Добавить тех. помещение

По нормам газовый котел должен быть в отдельном помещении. Плюс это просто очень удобно — иметь кладовую или прачечную, чтобы не захламлять общее пространство бытовыми вещами вроде сушилок с бельем или лыж.

-8

•Сделать дом «растущим»

Идеальное решение для тех, кто мечтает о большом доме, но не готов долго копить или брать ипотеку. С LetWood Group вы можете купить дом с небольшим метражом и заложить в нем возможность для пристройки новых модулей в будущем. Идет время, меняется состав семьи — вместе с вами будет «расти» и ваш дом.

-9

У вас большая семья и вы мечтаете о 5-ти отдельных комнатах? Работаете дома и хотите просторный кабинет с библиотекой? Не понимаете, как можно уместить в выбранный вами дом сауну?

Обратитесь к нашим менеджерам, они расскажут, как LetWood Group может воплотить ваши мечты в жизнь:

Москва:

📞 8 (495) 740-09-69

Сайт: https://moscow.letwood.ru

Санкт-Петербург:

📞 8 (812) 900-00-47

Сайт: https://letwood.ru

НАШИ СОЦСЕТИ:

ВК: https://vk.com/letwoodru

Instagram: https://instagram.com/letwood.dom

Telegram: https://t.me/letwood