Найти в Дзене
ДОМОСБОР

Компактный дом 70 м2 площадью с «двушку», в котором продумано все — одноэтажный дом из клееного бруса My House 74

Добрый день! Каждую неделю мы рассматриваем проекты вдохновляющих домов на любой вкус и кошелек, среди которых множество компактных решений для комфортного побега из городских джунглей в оазис спокойствия и гармонии с природой. Сегодня мы хотим вас познакомить с проектом My House 74 (общая площадь: 74 м2) Деревянный дом — это экологичная, здоровая и устойчивая альтернатива квартире. Внутренний воздух в деревянном доме имеет очень высокое качество и отличные акустические свойства. В компактном доме My House 74 очень удобное месторасположение помещений, для того, чтобы перейти из одной зоны в другую нужно сделать всего несколько шагов, в то время как в других коттеджах для этого нужно буквально преодолевать широкие коридоры и холлы. Эффективное месторасположение помещений в сочетании с универсальными вариантами модификации открывают множество возможностей для реализации круглогодичного дома или дачного дома вашей мечты. Характеристики: Планировка: My House 74 (B) В доме предусмотрено
Оглавление

Добрый день! Каждую неделю мы рассматриваем проекты вдохновляющих домов на любой вкус и кошелек, среди которых множество компактных решений для комфортного побега из городских джунглей в оазис спокойствия и гармонии с природой.

Сегодня мы хотим вас познакомить с проектом My House 74 (общая площадь: 74 м2)

Деревянный дом — это экологичная, здоровая и устойчивая альтернатива квартире. Внутренний воздух в деревянном доме имеет очень высокое качество и отличные акустические свойства.

В компактном доме My House 74 очень удобное месторасположение помещений, для того, чтобы перейти из одной зоны в другую нужно сделать всего несколько шагов, в то время как в других коттеджах для этого нужно буквально преодолевать широкие коридоры и холлы.

Эффективное месторасположение помещений в сочетании с универсальными вариантами модификации открывают множество возможностей для реализации круглогодичного дома или дачного дома вашей мечты.

Характеристики:

  • Общая площадь: 74 м2
  • Жилая площадь: 67 м2
  • Количество спален: 2
  • Количество санузлов: 1
  • Технология строительства: Клееный брус

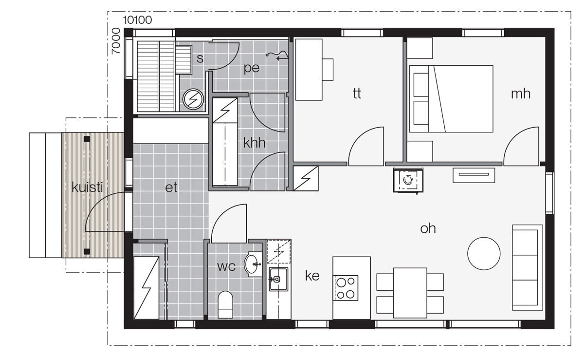
Планировка:

My House 74 (B)

В доме предусмотрено небольшое крыльцо, коридор, санузел, просторная кухня-гостиная, две спальни — одна из которых может трансформироваться в рабочий кабинет, прачечная, душевая и финская сауна.

-2

Требуется другая планировка или внешний вид? Сообщите, что вам бы хотелось изменить и мы рассмотрим такую возможность.

Заинтересовал проект My House 74?

Свяжитесь с нами, и мы обсудим все нюансы фундамента, инженерии и всей конструкции, мы обязательно примем во внимание все ваши пожелания и реализуем проект вашей мечты.

Вы можете написать нам в ВКонтакте или Telegram, оставить комментарий или воспользоваться нашими прямыми контактами:

  • 8 (800) 301-50-51
  • info@domosbor.ru

Также подписывайтесь на наши социальные сети, чтобы не пропустить ничего интересного:

Наш канал в TelegramВКонтактеОдноклассникиYouTube